Lot T609 Woodlea Estate by Simonds Homes - Aintree

Weaves family-centric spaces with privacy, perfect for a stylish, comfortable future.

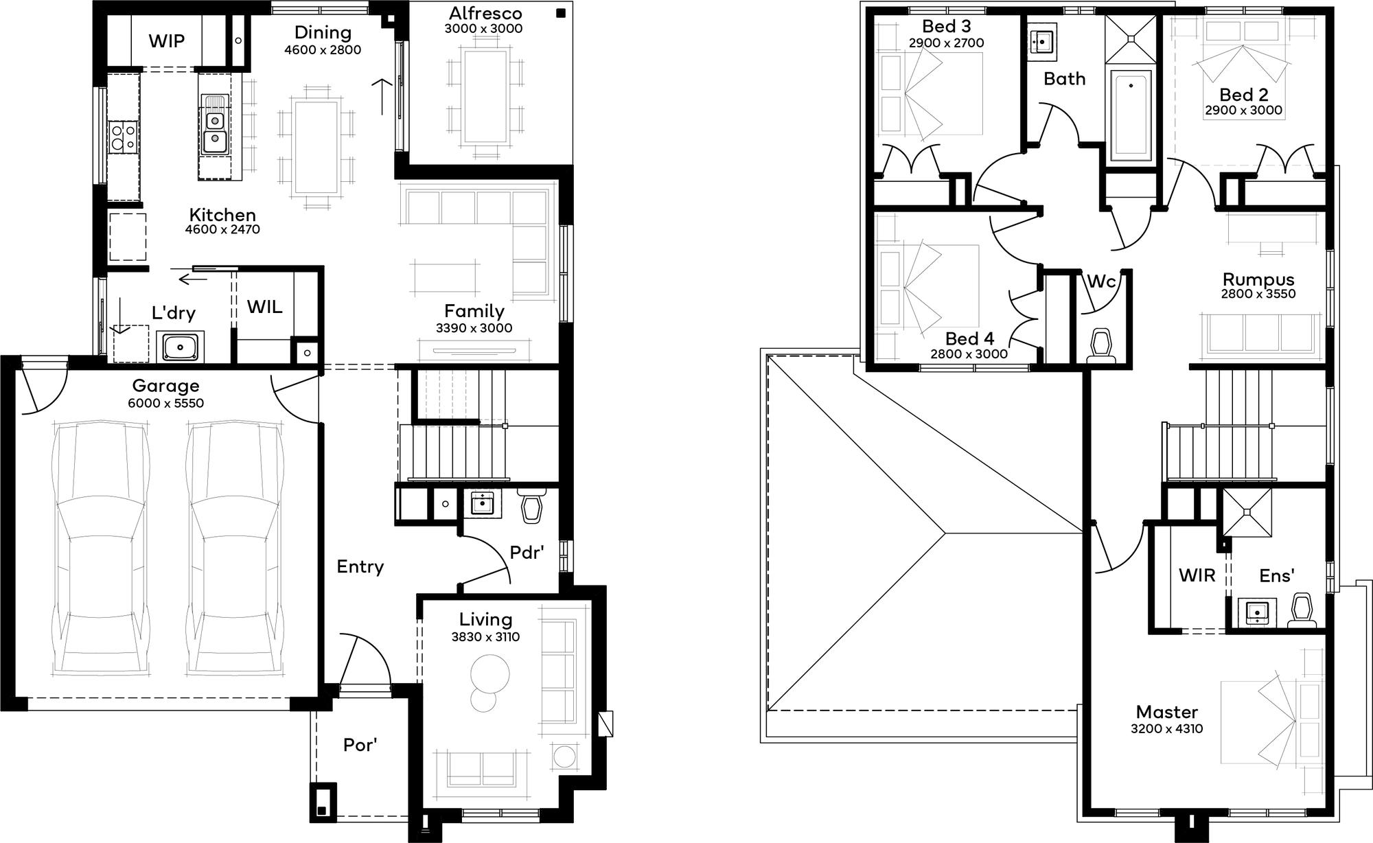
Designed for a 12.5m+ block, the Rockpool 24 offers 4 bedrooms, 2 bathrooms, and a 2-car garage. At the heart of this double-storey home is a generous living area with an expansive kitchen and alfresco. A living room at the front offers a parental retreat, while upstairs, a media hub adjacent to three bedrooms, creates a space for kids. The master suite is a spacious sanctuary privately located upstairs - the perfect home for your family to grow into.
Simonds Homes
Lot T609 Woodlea Estate, Aintree VIC 3336 Available
Bed  4 Bath  2 Car  2
Land Size: 321.00m²
Frontage: 12.84m
Depth: 25m
Floor Area: 24.61sq
Price: $819,701

Floor-plan for Lot T609: by Simonds Homes


Location & Map of Aintree

Loading...

Visit Display Villages near Aintree VIC 3336


More House and Land Packages by Simonds Homes (Home Builder)

Bed  4 Bath  2 Car  2
Land Size: 475.00m²
Frontage: 15m
Depth: 32m
Floor Area: 28.82sq
The Ekati blends flexible layouts and smart living features into one stylish family home.
Flexible Living with Lasting Appeal
The Ekati is all about intelligent design and timeless charm. With four spacious bedrooms and an adaptable layout that puts comfort first, it suits both growing families and empty nesters alike. Whether you want a front lounge for entertaining or a peaceful master suite up front, the Ekati offers flexibility without compromise.

Simonds Fixed Price Home & Land Package

Simonds have been Building Homes Since 1949, and every year, help thousands of Australian's realise their dream of owning a brand new home.

In choosing a builder, we believe that each buyer is looking for the best quality, the best service, and the best price.
Whilst it is impossible to have all three, Simonds have built our Fixed Price reputation on great quality and service, for what is often the largest investment in our clients lives.
As a National Builder with large buying power, our homes are very competitively priced, and most importantly, fantastic value for money.

With the transparency of an itemised quotation, a refundable initial deposit, and a Fixed Price contract at the end of the journey, why not enquire with one of the Simonds Sales team today!

This Attractive House and Land Package Includes:

Fixed price Site Costs
Developer & council requirements
Photovoltaic panels with inverter
Feature front entry door
Colorbond Sectional garage door & remote controls
Floor coverings to entire house
20mm Stone benchtops to kitchen
Quality stainless steel cooktop & oven
Towel Rails & Toilet Roll Holders
800mm Laundry Cabinet
Ducted Heating
Plus much more!


All Fixed Price Home and Land packages are subject to Developer and Council approval and is based on Simonds standard floor plan with preferred siting (without alterations). Package Price does not include stamp duty, government, legal or bank charges. Community Infrastructure Levy and Asset Protection Permit are not included in pricing and is to be arranged by the client directly with the Developer (if applicable). Any alterations may incur additional charges. Confirm land price and availability prior to purchase. Simonds reserves the right to withdraw or amend pricing, inclusions and promotion at any time without notice. Please refer to the terms and conditions at www.simonds.com.au/terms-and-conditions. This package applies to VIC - Aspirations range only. Please speak with your sales consultant for further details. Pricing is current at 20/03/2026.

Facade & Internal images are taken from a similar Simonds display home and are for illustration purposes only. Please talk to your sales consultant for more details
Price: $877,191

Land Price Trend in Aintree VIC 3336

  • In Oct - Dec 24, the median price for vacant land in Aintree VIC 3336 was $379,000. *
  • From Oct - Dec 17 to Oct - Dec 24, the median price for vacant land in Aintree VIC 3336 has increased 34.59%. *
  • From 2010 to 2024, the median price for vacant land in Aintree VIC 3336 has increased 105.05%. *
* Price data comes from Valuer-General Victoria on 05/06/25

Vacancy Rate in Aintree VIC 3336

View full vacancy rate history in Aintree VIC 3336 via SQM Research.


Schools in Aintree VIC 3336

There are 3 schools registered in on ACARA 2025

Lot T609 Woodlea Estate by Simonds Homes
Woodlea Estate, Aintree VIC 3336
House & Land: 4 Bed | 2 Bath | 2 Car @ $819,701