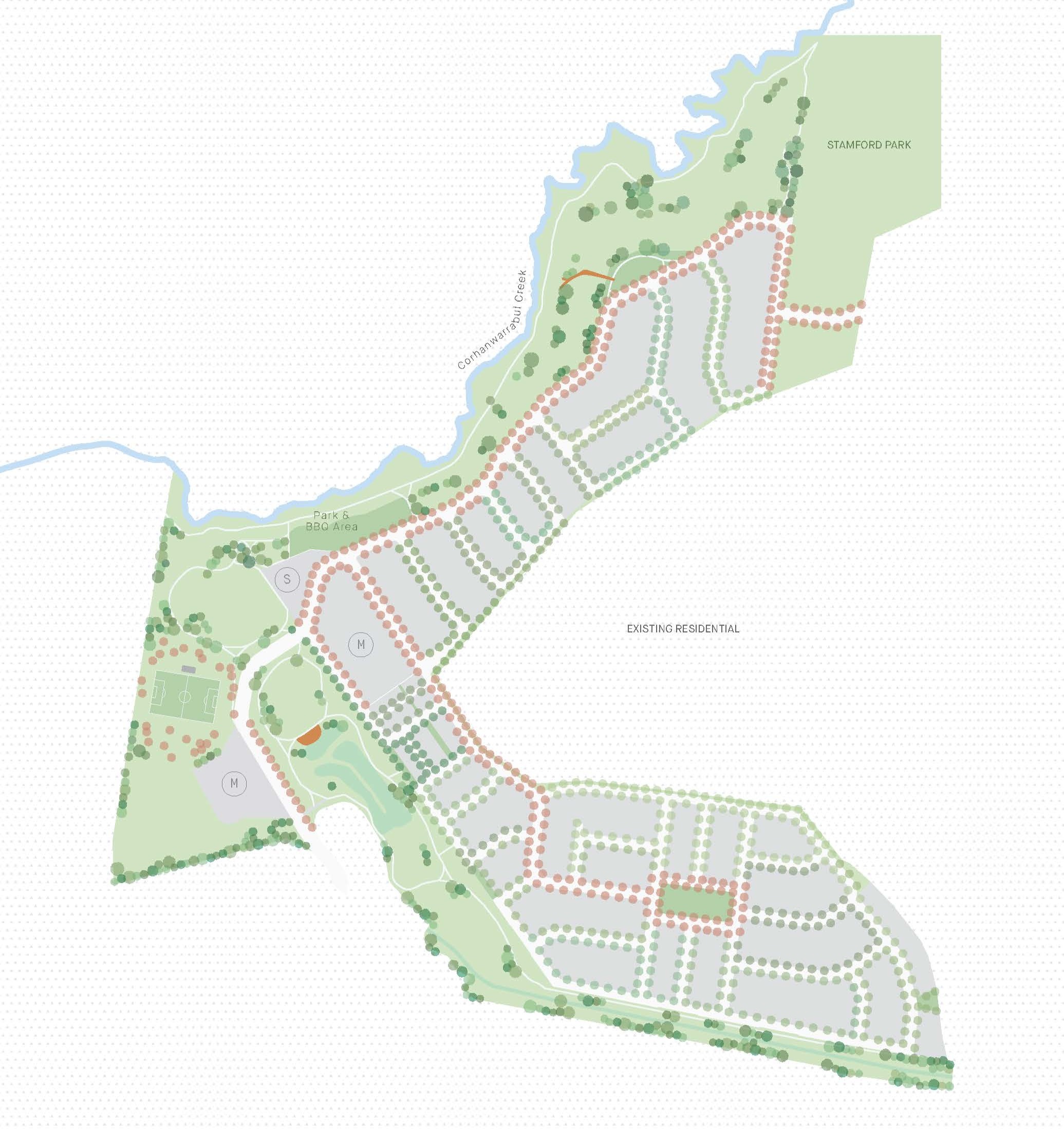
Bankside Estate - Rowville 3 AVAILABLE
- 68-hectare site in Rowville along the Corhanwarrabul Creek comprising of land, house & land, and townhome offerings.
- Almost 40% dedicated to wetlands and parks.
- Rowville’s Only Masterplanned Community - Surrounded by Parklands
- Stage 1 park construction commenced and featuring a custom play tower, swings, trampolines, bouldering wall, flying fox, climbing net, scooter/skate zone and sports courts, shaded BBQs and seating, landscaped surrounds and walking paths
- Proposed full-size soccer pitch and modern pavilion
- Display Home Village Now Open
- Located 35 minutes to the CBD & 40 minutes to the Mornington Peninsula (approx. drive times based on distance)
This information is estimated by the OpenLot research team. Let us know here to provide up-to-date information about this development.
| Total new homes | 800 |
| Area size | 65.00 hectares |
| Growth Region | Melbourne East |
| City council | Knox City Council |
| Developer | Pask |
| Project marketer | Oliver Hume Real Estate Group |
| Creative agency | Nimbl |
| Other names | Kingston Links Golf Club, Edition Townhomes |
| Distance to | Melbourne CBD - 25 km south-east Melbourne Airport - 43 km south-east |
Land for Sale, Townhomes:
Land Lots in Bankside Estate - Rowville
Townhouses in Bankside Estate - Rowville
12 Display Homes in Bankside Estate Display Village - Rowville

4
2
2
2
4
2
3
2
5
3
3
2
4
4
3
2
4
3
3
2
5
4.5
3
2
5
5
3
2
4
4
3
2
5
5
4
2
4
4
3
2
5
3
3
2
4
2.5
2
2
4
4
3
2
5
4
3
2Popular Estates near Bankside Estate - Rowville
Updates for Bankside Estate - Rowville
Location & Map for Bankside Estate - Rowville
Land Price Trend in Rowville VIC 3178
- In Oct - Dec 24, the median price for vacant land in Rowville VIC 3178 was $767,700. *
- From Jan - Mar 23 to Oct - Dec 24, the median price for vacant land in Rowville VIC 3178 has decreased 8.06%. *
- From 2023 to 2024, the median price for vacant land in Rowville VIC 3178 has increased 14.85%. *
Vacancy Rate in Rowville VIC 3178
View full vacancy rate history in Rowville VIC 3178 via SQM Research.
Schools near Bankside Estate - Rowville
Here are 6 schools near Bankside Estate - Rowville:
7-12 Government Secondary School - School Head Campus
Prep-6 Government Primary School
Prep-6 Government Primary School
Prep-6 Catholic Primary School
Prep-6 Catholic Primary School
Prep-6 Government Primary School
Reviews & Comments on Bankside Estate - Rowville
Estate Brochure, Masterplan, Engineering Plan, Plan of Subdivision (POS), Design Guidelines
FAQs about Bankside Estate - Rowville
View all estates from Pask
View all estates marketed by Oliver Hume Real Estate Group
- Rowville Secondary College - 1.6km east
- Rowville Primary School - 1.7km east
- Mulgrave Primary School - 2.3km south-west
- St Simon's School - 2.4km east
- St Justin's School - 2.5km west
- Heany Park Primary School - 2.6km south-east
Popular Estates near Bankside Estate - Rowville
Latest New Home Articles for You
01/Dec/2025 | OpenLot.com.au
Display Homes at Bushmead: Modern Living in Bushmead
If you love the peace and tranquillity of the Australian bush, you’ll fee...
27/Nov/2025 | OpenLot.com.au
Display Homes at Eden Beach: Premium Coastal Living in Jindalee
26/Nov/2025 | OpenLot.com.au
Display Homes Near Me (VIC): Your Complete Guide to Display Villages Across Victoria
Finding the right display home in Victoria has never been easier, with do...
24/Nov/2025 | OpenLot.com.au
🏡 New Neighbourhoods Season 1 Recap
From the outset, New Neighbourhoods sets out to explore Australia’s dynam...
24/Nov/2025 | OpenLot.com.au
🏡 Suburb Profile: Moss Vale
Moss Vale is a suburb of approximately 79.56 square kilometres within the...
21/Nov/2025 | OpenLot.com.au
Display Homes at Averley: Elevated Living in Nar Nar Goon North
Imagine a place where native bushland complements timeless architecture, ...
18/Nov/2025 | OpenLot.com.au
Display Homes at Exford Waters: True Riverside Living in Weir Views
Discover a lifestyle shaped by nature and connection at Exford Waters, wh...
17/Nov/2025 | OpenLot.com.au
Display Homes at Crownlea: A Lifestyle of Space in Warragul
Embrace the good life and enjoy the very best views in Warragul at Warrag...
13/Nov/2025 | OpenLot.com.au
Display Homes at Bluestone: A Showcase of Style and Innovation in Tarneit
Get ready to immerse yourself in a world of inspiration and design excell...

















