Arise by ABM Homes

DISPLAY HOME

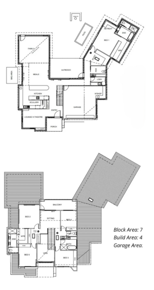
The Arise from ABM is a true marvel of suburban architecture. This outstanding home features more than 420m2 of covered space, it’s the dream home for families, large or small. With 5 bedrooms, 3.5 bathrooms and large, open communal areas, this is the epitome of luxury living in Whitlam.

 


Floor-plan options for Arise

Arise
Bed 5
Bath 3.5
Car 2
Builder: ABM Homes
Home Design: Arise
Building Type: Double Storey
Floor Area: 426m2

Display Homes & 3D Tours for Arise by ABM Homes

Loading...