Elizabeth by Beachwood Homes
DISPLAY HOME
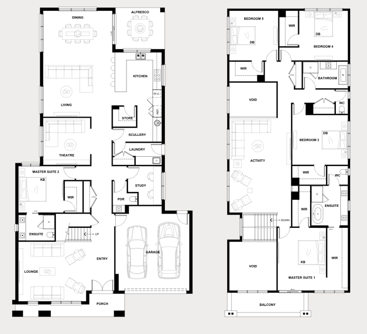
The Elizabeth’s ground floor begins with an open entry leading to a lounge with a fireplace and soaring double-height ceiling. This space flows into a spacious gallery, with access to a guest master suite, a study, and a theatre room, culminating in a large open-plan kitchen with a scullery and dry pantry, seamlessly connected to the family and meals area, with easy access to outdoor living spaces. Upstairs, the luxurious master bedroom sits at the front of the home with balcony access, dual walk-in robes, and an ensuite. It also features two additional bedrooms, each with their own ensuites and walk-in robes, and a generous rumpus area overlooking the lounge below.
Display Homes & 3D Tours for Elizabeth by Beachwood Homes
Loading...
More House and Land Packages by Beachwood Homes (Home Builder)
[Bloomfield Warragul Estate]
Stage 2 Halcyon Release: Lot 207 Ambience Way: Lonsdale 423
Available
4
2
2
Suburb: Nilma VIC 3821
Builder:
Land Size: 2,000.00m²
Floor Area: 45.57sq
Beautiful, low-maintenance homes from Beachwood Homes have arrived at Bloomfield. Discover premium packages packed full of inclusions:
‘H’ class waffle concrete slab
Double glazing throughout
‘Bristile’ Classic range concrete low profile roof tiles
Dimmable LED downlights throughout
Flooring throughout (tiles and premium carpet)
‘Quantum Zero’ benchtops with 20mm edge profile, to Kitchen
Fisher & Paykel 900mm wide Kitchen Appliances
Laminate overhead cupboards with concealed rangehood to Kitchen
‘Quantum Zero’ benchtops with 20mm edge profile, to Wet Areas
Flush finish tiled shower bases to Bathroom and Ensuite
Ducted gas heating
‘H’ class waffle concrete slab
Double glazing throughout
‘Bristile’ Classic range concrete low profile roof tiles
Dimmable LED downlights throughout
Flooring throughout (tiles and premium carpet)
‘Quantum Zero’ benchtops with 20mm edge profile, to Kitchen
Fisher & Paykel 900mm wide Kitchen Appliances
Laminate overhead cupboards with concealed rangehood to Kitchen
‘Quantum Zero’ benchtops with 20mm edge profile, to Wet Areas
Flush finish tiled shower bases to Bathroom and Ensuite
Ducted gas heating
Price:
From $1,249,700