Flinders by Beachwood Homes

DISPLAY HOME

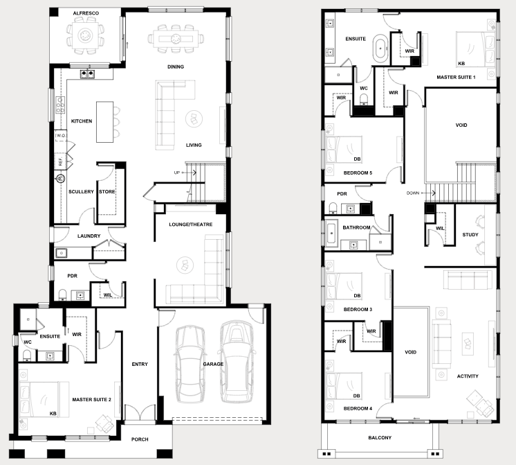
With expansive voids and open spaces, the Flinders creates an airy, connected feel perfect for modern family living. The ground floor features an expansive layout with a luxurious master suite at the front of the home, a gourmet kitchen with a scullery, open-plan living and dining areas, a theatre room, and seamless indoor-outdoor flow for entertaining. The upper level of this home offers three more bedrooms including additional master, a generous rumpus room and a dedicated study.


Floor-plan options for Flinders

Flinders 482
Bed 5
Bath 3
Car 2
Home Design: Flinders
Building Type: Double Storey
Floor Area: 482.4m2
House Width: 14m
House Length: 24.1m

Display Homes & 3D Tours for Flinders by Beachwood Homes

Loading...

More House and Land Packages by Beachwood Homes (Home Builder)

Flinders by Beachwood Homes