
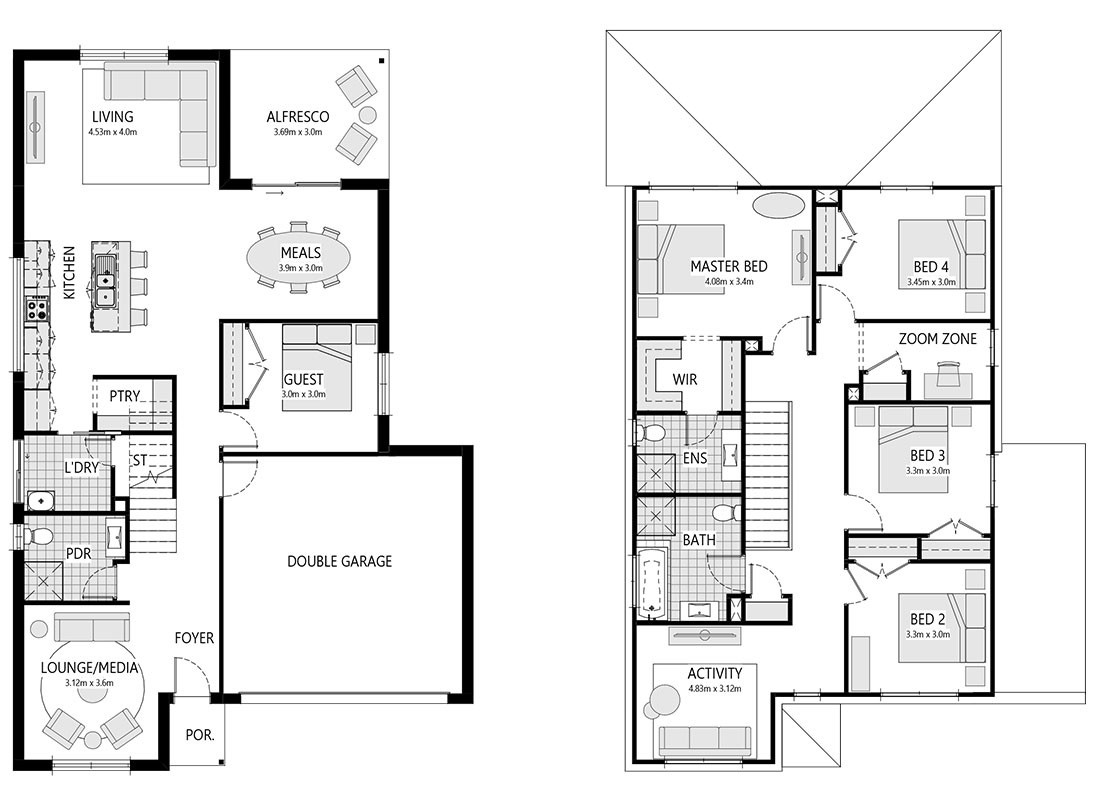
Bronte by Bellriver Homes
DISPLAY HOME
Exciting double storey designs to suit 12.5m wide allotments
This collection includes designs for zero side boundary allotments or standard boundary setbacks. They vary greatly from affordable family homes through to some of our architects most innovative pavilion style designs.
Most feature a downstairs guest suite and 4 upstairs bedrooms, and one even features a full attached extra generational “granny flat” style separated quarters. The Bronte is one of our most interesting and popular collections.
Display Homes & 3D Tours for Bronte by Bellriver Homes
Loading...
4
