Montpellier by Boutique Homes

DISPLAY HOME

Look to the Montpellier for a comfortable and timeless family home.

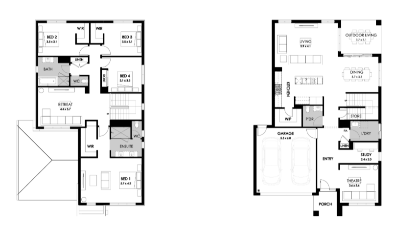
The Montpellier is a functional design, with four bedrooms and multiple living areas spread over two storeys. A lounge near the entry offers a secluded space to unwind away from more hectic entertaining activities, while a spacious home office encourages studying or working from home. The double garage opens to a convenient key-drop alcove.

Overlooking the undercover outdoor living area is a wrap-around open-plan living and dining space – take it all in from centrally located gourmet kitchen, whose impressive layout includes a large walk-in pantry and versatile island bench.

The expansive kids’ retreat is upstairs, along with the bedrooms – but you can escape to the tranquil master suite, which enjoys its own private balcony overlooking the entry. There’s also a lavish walk-in robe and ensuite with twin vanity.


Floor-plan options for Montpellier

Montpellier 39
Bed 4
Bath 2
Living 2
Car 2
Home Design: Montpellier
Building Type: Double Storey
Floor Area: 358.37m2
House Width: 11.74m
House Length: 19.79m
Min Block Width: 14m
Min Block Depth: 28m
Montpellier 35
Bed 4
Bath 3
Car 2
Home Design: Montpellier
Building Type: Double Storey
Floor Area: 326.4m2
House Width: 11.75m
House Length: 18.09m
Min Block Width: 14m
Min Block Depth: 27m

Display Homes & 3D Tours for Montpellier by Boutique Homes

Loading...
Montpellier by Boutique Homes