Rosewood by Firstyle Homes

DISPLAY HOME

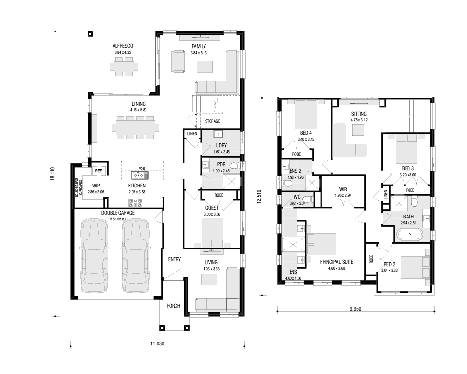
The Rosewood series combines traditional style with practical open-plan living which features 5 bedrooms, open-plan kitchen & family/dining area.


Floor-plan options for Rosewood

Rosewood 33.0 Distinct
Bed 5
Bath 4
Living 3
Car 2
Home Design: Rosewood
Building Type: Double Storey
Floor Area: 306.66m2
House Width: 11.03m
House Length: 18.11m

Display Homes & 3D Tours for Rosewood by Firstyle Homes

Loading...
Rosewood by Firstyle Homes