Empire by Homebuyers Centre VIC

DISPLAY HOME

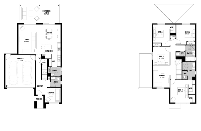
Expansive family living and designer style are compelling reasons to explore the Empire. This spacious double storey home offers four bedrooms, two bathrooms and a powder room. The entry boasts a dedicated home theatre room, while in the hub of the home is the central kitchen, featuring a walk-in pantry and plenty of bench space for easy entertaining.

Adjacent dining and living areas welcome natural light through sliding doors, while upstairs provides a tranquil retreat with the master bedroom, complete with built-in robe and ensuite with an oversized shower. The main bathroom sits nestled amongst the remaining three bedrooms. The Empire stands tall as a home that transports families to a better and more enjoyable lifestyle.

 


Floor-plan options for Empire

Empire 25
Bed 4
Bath 2.5
Living 2
Car 2
Home Design: Empire
Building Type: Double Storey
Floor Area: 231.6m2
Min Block Width: 12.5m
Min Block Depth: 21m
Empire 29
Bed 4
Bath 2.5
Living 2
Car 2
Home Design: Empire
Building Type: Double Storey
Floor Area: 269.1m2
Min Block Width: 12.5m
Min Block Depth: 28m

Display Homes & 3D Tours for Empire by Homebuyers Centre VIC

Loading...

More House and Land Packages by Homebuyers Centre VIC (Home Builder)

Bed  4 Bath  2 Car  2
Land Size: 395.00m²
Frontage: 11.9m
Depth: 20.8m
Floor Area: 213.68m²
Relax in the spacious open plan living area featuring an entertainers kitchen with island bench or the dedicated dining space and outdoor living zone. Escape to the master bedroom with its walk-in robe and oversized ensuite, or head to the rear of the home to discover three not-so-minor bedrooms that each feature built-in robes.
Your new home will come standard with quality inclusions, industry leading guarantees/warranties and brand names that you can trust:
Site costs allowance
Facade included
7 Star energy rating
Exposed aggregate driveway
Brick infills over windows
Quality floor coverings throughout
Low E double glazed windows and sliding doors
3.5kW solar PV system
Westinghouse stainless steel appliances
Choice of matt black or chrome tapware
12 month maintenance period
25 year structural guarantee

Act quickly! This package won't be around for long. For more info or to book an appointment, call or click 'Get in Touch' today!

**********************************************************************************
DISCLAIMER*Lower end of price range displayed is subject to your eligibility for the Victorian First Home Owner Grant (FHOG). Upper end of price range displayed does not take into account any government grants.

The First Home Owner Grant and Home Buyer Schemes Act generally requires applicants for the Grant to be an Australian citizen or permanent resident of at least 18 years of age. Applicants and their partner or spouse must not have previously owned a residential property, or received a first home owner's grant, in any state or territory in Australia. Applicants must occupy the home for a continuous period of at least 12 months, commencing within 12 months of settlement or completion of construction. Contract price for the home must be $750,000 or less. For further information on Grant eligibility, please click here. Information on this page is accurate as at August 2024.

All plans are protected by copyright and are owned by ABN Group (Vic) Pty Ltd. The building practitioner is ABN Group (Vic) Pty Ltd trading as Homebuyers Centre, registration number CDB-U 49215. Images are for illustrative purposes only and may depict items not supplied by Homebuyers Centre. Homebuyers Centre reserves the right to change home design measurements and design options without notice. For more information on pricing, facades or specifications, please contact your New Homes Consultant. All information contained within this document is accurate at time of printing (August 2023). #Inclusions listed in this document are not exhaustive. For a complete list of inclusions, please contact your New Homes Consultant and refer to your HIA New Homes Contract. ^Homebuyers Centre is responsible for providing the connection point only. It is the owner's responsibility to arrange for connection services (gas, NBN, water, etc.).
© The copyright in this house design (including the floorplan, façade, rooflines and elevations) is owned by Homebuyers Centre®. Homebuyers Centre specifically prohibits any reproduction, communication to the public, publication, or any other use of this house design or a substantial part of it for any purpose other than for the building of houses by Homebuyers Centre without its express written consent.Terms and conditions apply. The offer of the ‘Home Starter Range’ is limited to customers who sign a Preliminary Works Contract (PWC), between 8 October, 2025 to 31 December 2025. From price is based on the Homebuyers Centre Essence 17 floorplan with Hudson facade in Metro Melbourne. Images are for illustrative purposes only and may depict items not included in the price. This offer cannot be modified, substituted or redeemed for cash. Homebuyers Centre reserves the right to update, change or cease this offer. Not to be used in conjunction with any other offer (discounts, incentives or promotions). See vic.homebuyers.com.au for full terms and conditions. The building practitioner is ABN Group (Vic) Pty Ltd trading as Homebuyers Centre CDB-U49215.
Bed  4 Bath  2 Car  2
Land Size: 420.00m²
Floor Area: 176.52m²
The Harper captures the essence of contemporary design and space. The master bedroom, complete with walk-in robe and ensuite bathroom is toward the front, with the minor bedrooms, each with a built-in robe, toward the rear of the home.
Your new home will come standard with quality inclusions, industry leading guarantees/warranties and brand names that you can trust:
Facade included
Fixed site costs
7 Star energy rating
Exposed aggregate driveway
Brick infills over windows
Quality floor coverings throughout
Low E double glazed windows and sliding doors
3.5kW solar PV system
Westinghouse stainless steel appliances
Choice of matt black or chrome tapware
12 month maintenance period
25 year structural guarantee

Act quickly! This package won't be around for long. For more info or to book an appointment, call or click 'Get in Touch' today!

**********************************************************************************
DISCLAIMER*Lower end of price range displayed is subject to your eligibility for the Victorian First Home Owner Grant (FHOG). Upper end of price range displayed does not take into account any government grants.

The First Home Owner Grant and Home Buyer Schemes Act generally requires applicants for the Grant to be an Australian citizen or permanent resident of at least 18 years of age. Applicants and their partner or spouse must not have previously owned a residential property, or received a first home owner's grant, in any state or territory in Australia. Applicants must occupy the home for a continuous period of at least 12 months, commencing within 12 months of settlement or completion of construction. Contract price for the home must be $750,000 or less. For further information on Grant eligibility, please click here. Information on this page is accurate as at August 2024.

All plans are protected by copyright and are owned by ABN Group (Vic) Pty Ltd. The building practitioner is ABN Group (Vic) Pty Ltd trading as Homebuyers Centre, registration number CDB-U 49215. Images are for illustrative purposes only and may depict items not supplied by Homebuyers Centre. Homebuyers Centre reserves the right to change home design measurements and design options without notice. For more information on pricing, facades or specifications, please contact your New Homes Consultant. All information contained within this document is accurate at time of printing (August 2023). #Inclusions listed in this document are not exhaustive. For a complete list of inclusions, please contact your New Homes Consultant and refer to your HIA New Homes Contract. ^Homebuyers Centre is responsible for providing the connection point only. It is the owner's responsibility to arrange for connection services (gas, NBN, water, etc.).
© The copyright in this house design (including the floorplan, façade, rooflines and elevations) is owned by Homebuyers Centre®. Homebuyers Centre specifically prohibits any reproduction, communication to the public, publication, or any other use of this house design or a substantial part of it for any purpose other than for the building of houses by Homebuyers Centre without its express written consent.Terms and conditions apply. The offer of the ‘Home Starter Range’ is limited to customers who sign a Preliminary Works Contract (PWC), between 13 January, 2026 to 31 March 2026. From price is based on the Homebuyers Centre Essence 17 floorplan with Hudson facade in Metro Melbourne. Images are for illustrative purposes only and may depict items not included in the price. This offer cannot be modified, substituted or redeemed for cash. Homebuyers Centre reserves the right to update, change or cease this offer. Not to be used in conjunction with any other offer (discounts, incentives or promotions). See vic.homebuyers.com.au for full terms and conditions. The building practitioner is ABN Group (Vic) Pty Ltd trading as Homebuyers Centre CDB-U49215.
Land Size: 339.00m²
Floor Area: 18sq
Available in four- or three-bedroom variations, the single storey Levi floorplan is cleverly designed to maximise all the space on your block.

The main bedroom is positioned to the front of the home and features a sizeable ensuite and walk in robe, with three minor bedrooms and a centralised bathroom positioned further down the passage.

At the rear of the home, you’ll find an entertainers kitchen complete with walk in pantry and a large kitchen bench. The light filled dining and living areas look onto the backyard with an e-zone cleverly tucked away in the back corner.
Your new home will come standard with quality inclusions, industry leading guarantees/warranties and brand names that you can trust:
Facade included
Fixed site costs
7 Star energy rating
Exposed aggregate driveway
Brick infills over windows
Quality floor coverings throughout
Low E double glazed windows and sliding doors
3.5kW solar PV system
Westinghouse stainless steel appliances
Choice of matt black or chrome tapware
12 month maintenance period
25 year structural guarantee

Act quickly! This package won't be around for long. For more info or to book an appointment, call or click 'Get in Touch' today!

**********************************************************************************
DISCLAIMER*All plans are protected by copyright and are owned by ABN Group (Vic) Pty Ltd. The building practitioner is ABN Group (Vic) Pty Ltd trading as Homebuyers Centre, registration number CDB-U 49215. Images are for illustrative purposes only and may depict items not supplied by Homebuyers Centre. Homebuyers Centre reserves the right to change home design measurements and design options without notice. For more information on pricing, facades or specifications, please contact your New Homes Consultant. All information contained within this document is accurate at time of printing (August 2023). #Inclusions listed in this document are not exhaustive. For a complete list of inclusions, please contact your New Homes Consultant and refer to your HIA New Homes Contract. ^Homebuyers Centre is responsible for providing the connection point only. It is the owner's responsibility to arrange for connection services (gas, NBN, water, etc.).
Price: $647,300

More Townhouses by Homebuyers Centre VIC (Home Builder)

Bed  3 Bath  2 Car  2
Land Size: 150.00m²
Floor Area: 167.23m²
A blend of modern architectural elements and smart building materials defines the Octave 18 as an exceptional place to call home. This spacious three-bedroom layout includes a luxurious master bedroom with a walk-in robe and ensuite, while the additional bedrooms are conveniently located nearby.

The impressive open-plan living area extends to a private courtyard, providing an ideal retreat for relaxation. Experience the perfection of living in the Octave 18.

Townhouse Inclusions:
- Complete turnkey inclusions
- 100% fixed site costs and pricing
- Heating and cooling included
- Quality floor coverings throughout
- Westinghouse stainless steel appliances
- 20mm crystalline silica-free benchtops
- Smart control garage door with camera and
app security
- Front and rear landscaping
- Exposed aggregate driveway
- Opticomm connection
- 25 year structural guarantee
- 12 month service warrant

All plans are protected by copyright and are owned by ABN Group (Vic) Pty Ltd. The building practitioner is ABN Group (Vic) Pty Ltd trading as Homebuyers Centre, registration number CDB-U 49215. Images are for illustrative purposes only and may depict items not supplied by Homebuyers Centre. Homebuyers Centre reserves the right to change home design measurements and design options without notice. For more information on pricing, facades or specifications, please contact your New Homes Consultant. All information contained within this document is accurate at time of printing (August 2023). #Inclusions listed in this document are not exhaustive. For a complete list of inclusions, please contact your New Homes Consultant and refer to your HIA New Homes Contract. ^Homebuyers Centre is responsible for providing the connection point only. It is the owner's responsibility to arrange for connection services (gas, NBN, water, etc.).

The builder will provide and install connection points to underground power, water, sewer and gas (where available) within the property boundaries. The owner is responsible for the connection to the relevant infrastructure and all associated costs. For double-storey dwellings, insulation is installed exclusively in the ceiling space of the upper (second) floor. Insulation to the floor/ceiling space between the first and second floors is not provided. Please refer to your Preliminary Works Contract (PWC) New Home Contract (HIA form) for complete specifications.
Bed  3 Bath  2 Car  2
Land Size: 223.00m²
Floor Area: 167.23m²
"Our fixed price house and land packages, low deposit home loans and efficient build will help make your new home affordable and achievable today! We work with Victoria's Leading Land Developers to obtain the best blocks of land, in the best locations to create the most affordable house and land packages exclusive to Homebuyers Centre customers. Pay a deposit knowing you've seen upfront, fixed pricing on your house and land.

Your new home will come standard with quality inclusions, industry leading guarantees/warranties and brand names that you can trust:
Facade included
Fixed site costs
7 Star energy rating
Exposed aggregate driveway
Brick infills over windows
Quality floor coverings throughout
Low E double glazed windows and sliding doors
3.5kW solar PV system
Westinghouse stainless steel appliances
Choice of matt black or chrome tapware
12 month maintenance period
25 year structural guarantee

Act quickly! This package won't be around for long. For more info or to book an appointment, call or click 'Get in Touch' today!

**********************************************************************************
DISCLAIMER*All plans are protected by copyright and are owned by ABN Group (Vic) Pty Ltd. The building practitioner is ABN Group (Vic) Pty Ltd trading as Homebuyers Centre, registration number CDB-U 49215. Images are for illustrative purposes only and may depict items not supplied by Homebuyers Centre. Homebuyers Centre reserves the right to change home design measurements and design options without notice. For more information on pricing, facades or specifications, please contact your New Homes Consultant. All information contained within this document is accurate at time of printing (August 2023). #Inclusions listed in this document are not exhaustive. For a complete list of inclusions, please contact your New Homes Consultant and refer to your HIA New Homes Contract. ^Homebuyers Centre is responsible for providing the connection point only. It is the owner's responsibility to arrange for connection services (gas, NBN, water, etc.).
Price: $699,900
Bed  2 Bath  1 Car  1
Land Size: 100.00m²
Floor Area: 120.77m²
A blend of modern architectural elements and smart building materials defines the Octave as an exceptional place to call home.

Townhouse Inclusions:
- Complete turnkey inclusions
- 100% fixed site costs and pricing
- Heating and cooling included
- Quality floor coverings throughout
- Westinghouse stainless steel appliances
- 20mm crystalline silica-free benchtops
- Smart control garage door with camera and app security
- Front and rear landscaping
- Exposed aggregate driveway
- 25 year structural guarantee
- 12 month service warranty

**********************************************************************************
DISCLAIMER* All plans are protected by copyright and are owned by ABN Group (Vic) Pty Ltd. The building practitioner is ABN Group (Vic) Pty Ltd trading as Homebuyers Centre, registration number CDB-U 49215. Images are for illustrative purposes only and may depict items not supplied by Homebuyers Centre. Homebuyers Centre reserves the right to change home design measurements and design options without notice. For more information on pricing, facades or specifications, please contact your New Homes Consultant. All information contained within this document is accurate at time of printing (August 2023). #Inclusions listed in this document are not exhaustive. For a complete list of inclusions, please contact your New Homes Consultant and refer to your HIA New Homes Contract. ^Homebuyers Centre is responsible for providing the connection point only. It is the owner's responsibility to arrange for connection services (gas, NBN, water, etc.).

The builder will provide and install connection points to underground power, water, sewer and gas (where available) within the property boundaries. The owner is responsible for the connection to the relevant infrastructure and all associated costs. For double-storey dwellings, insulation is installed exclusively in the ceiling space of the upper (second) floor. Insulation to the floor/ceiling space between the first and second floors is not provided. Please refer to your Preliminary Works Contract (PWC) New Home Contract (HIA form) for complete specifications.
Empire by Homebuyers Centre VIC