Winton by McDonald Jones Homes

DISPLAY HOME

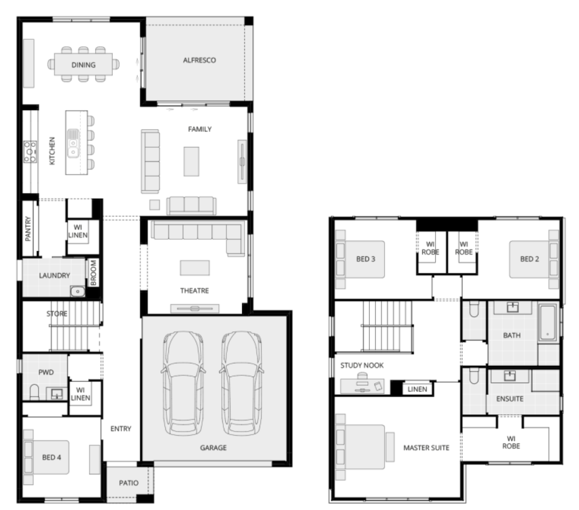
The Winton One Executive is a home that provides good design principles for great living outcomes. The brand new two-storey design delivers flexible living areas and bedroom/bathroom arrangements to accommodate a growing or integrated family. Form and function combine indoor and outdoor areas to enjoy energy conscious comforts that provide open plan living, economic benefits and desirable lifestyle.

 


Floor-plan options for Winton

Winton One
Bed 4
Bath 2
Car 2
Home Design: Winton
Building Type: Double Storey
House Width: 11.42m
House Length: 20.17m
Min Block Width: 14m

Display Homes & 3D Tours for Winton by McDonald Jones Homes

Loading...
Winton by McDonald Jones Homes