Balmoral by Simonds Homes

DISPLAY HOME

Bliss and Brilliance.

A masterpiece in double-storey home design, the Balmoral is available in four and five bedroom versions ranging from 38 to 50 squares. All bedrooms have walk-in robes while the master suite treats you to an oversized dressing room. Each of the eight floorplans features its own unique customisations, and you can complete your Balmoral build with one of thirteen facades to suit your décor and make your home beautiful. And with three living areas downstairs, it’s the home designed for every family.

 


Floor-plan options for Balmoral

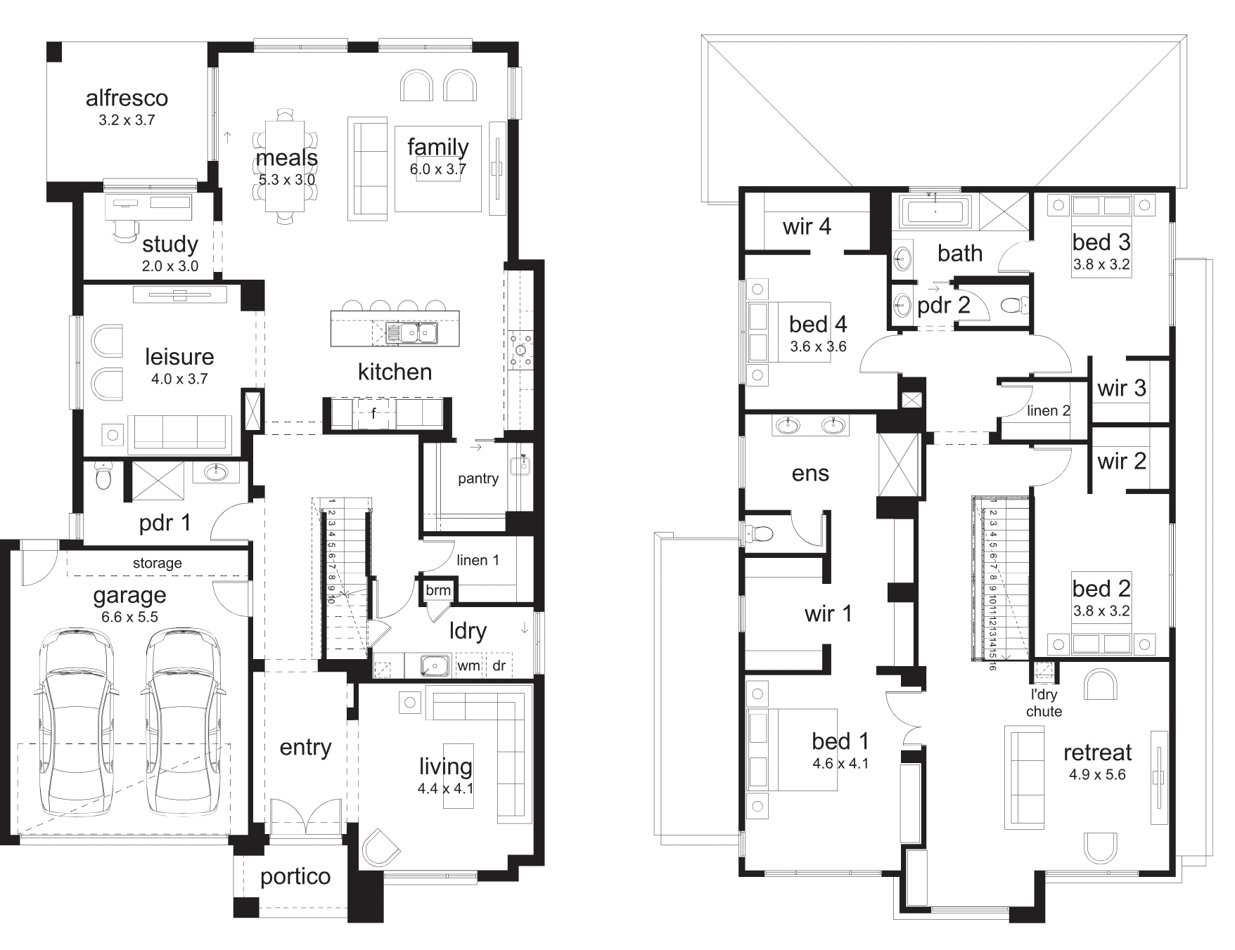
Balmoral 38
Bed 4
Bath 2
Living 4
Car 2
Home Design: Balmoral
Building Type: Double Storey
Floor Area: 353.68m2
House Width: 12.6m
House Length: 18.95m
Min Block Width: 14m
Min Block Depth: 28m
Balmoral 41
Bed 4
Bath 2
Living 4
Car 2
Home Design: Balmoral
Building Type: Double Storey
Floor Area: 384.90m2
House Width: 12.6m
House Length: 20.39m
Min Block Width: 14m
Min Block Depth: 28m
Balmoral 50
Bed 5
Bath 5
Living 4
Car 2
Home Design: Balmoral
Building Type: Double Storey
Floor Area: 464.42m2
House Width: 12.6m
House Length: 24.35m
Min Block Width: 14m
Min Block Depth: 32m
Balmoral 46
Bed 4
Bath 5
Living 4
Car 2
Home Design: Balmoral
Building Type: Double Storey
Floor Area: 422.17m2
House Width: 12.5m
House Length: 22.5m
Min Block Width: 14m
Min Block Depth: 30m

Display Homes & 3D Tours for Balmoral by Simonds Homes

Loading...

More House and Land Packages by Simonds Homes (Home Builder)

Bed  4 Bath  2 Car  2
Land Size: 512.00m²
Frontage: 16m
Depth: 32m
Floor Area: 26.97sq
The Ekati blends flexible layouts and smart living features into one stylish family home.
Simple, Stylish, Smart
With its clean lines and clever layout, the Ekati makes everyday living feel easy. Choose from a front master suite or living room to suit your family?s needs, with four well-sized bedrooms and a flowing open-plan zone at the heart of the home. Designed for maximum liveability, the Ekati proves that thoughtful design never goes out of fashion.

Simonds Fixed Price Home & Land Package

Simonds have been Building Homes Since 1949, and every year, help thousands of Australian's realise their dream of owning a brand new home.

In choosing a builder, we believe that each buyer is looking for the best quality, the best service, and the best price.
Whilst it is impossible to have all three, Simonds have built our Fixed Price reputation on great quality and service, for what is often the largest investment in our clients lives.
As a National Builder with large buying power, our homes are very competitively priced, and most importantly, fantastic value for money.

With the transparency of an itemised quotation, a refundable initial deposit, and a Fixed Price contract at the end of the journey, why not enquire with one of the Simonds Sales team today!

This Attractive House and Land Package Includes:

Fixed price Site Costs
Developer & council requirements
Photovoltaic panels with inverter
Feature front entry door
Colorbond Sectional garage door & remote controls
Floor coverings to entire house
20mm Stone benchtops to kitchen
Quality stainless steel cooktop & oven
Towel Rails & Toilet Roll Holders
800mm Laundry Cabinet
Ducted Heating
Plus much more!


All Fixed Price Home and Land packages are subject to Developer and Council approval and is based on Simonds standard floor plan with preferred siting (without alterations). Package Price does not include stamp duty, government, legal or bank charges. Community Infrastructure Levy and Asset Protection Permit are not included in pricing and is to be arranged by the client directly with the Developer (if applicable). Any alterations may incur additional charges. Confirm land price and availability prior to purchase. Simonds reserves the right to withdraw or amend pricing, inclusions and promotion at any time without notice. Please refer to the terms and conditions at www.simonds.com.au/terms-and-conditions. This package applies to VIC - Aspirations range only. Please speak with your sales consultant for further details. Pricing is current at 09/03/2026.

Facade & Internal images are taken from a similar Simonds display home and are for illustration purposes only. Please talk to your sales consultant for more details
Price: $804,919
Bed  3 Bath  2 Car  2
Land Size: 350.00m²
Frontage: 12.5m
Depth: 28m
Floor Area: 19.3sq
Thoughtfully designed for comfort, the Alberta offers modern open-plan family living.
Modern Family Living
From the moment you enter the Alberta, a long hallway guides you into a spacious open-plan living area that forms the heart of the home. With two bedrooms positioned around a central bathroom, a private master suite with an ensuite, and a double garage, the Alberta is thoughtfully designed for comfortable and contemporary family living.

Simonds Fixed Price Home & Land Package

Simonds have been Building Homes Since 1949, and every year, help thousands of Australian's realise their dream of owning a brand new home.

In choosing a builder, we believe that each buyer is looking for the best quality, the best service, and the best price.
Whilst it is impossible to have all three, Simonds have built our Fixed Price reputation on great quality and service, for what is often the largest investment in our clients lives.
As a National Builder with large buying power, our homes are very competitively priced, and most importantly, fantastic value for money.

With the transparency of an itemised quotation, a refundable initial deposit, and a Fixed Price contract at the end of the journey, why not enquire with one of the Simonds Sales team today!

This Attractive House and Land Package Includes:

Fixed price Site Costs
Developer & council requirements
Photovoltaic panels with inverter
Feature front entry door
Colorbond Sectional garage door & remote controls
Floor coverings to entire house
20mm Stone benchtops to kitchen
Quality stainless steel cooktop & oven
Towel Rails & Toilet Roll Holders
800mm Laundry Cabinet
Ducted Heating
Plus much more!


All Fixed Price Home and Land packages are subject to Developer and Council approval and is based on Simonds standard floor plan with preferred siting (without alterations). Package Price does not include stamp duty, government, legal or bank charges. Community Infrastructure Levy and Asset Protection Permit are not included in pricing and is to be arranged by the client directly with the Developer (if applicable). Any alterations may incur additional charges. Confirm land price and availability prior to purchase. Simonds reserves the right to withdraw or amend pricing, inclusions and promotion at any time without notice. Please refer to the terms and conditions at www.simonds.com.au/terms-and-conditions. This package applies to VIC - Aspirations range only. Please speak with your sales consultant for further details. Pricing is current at 09/03/2026.

Facade & Internal images are taken from a similar Simonds display home and are for illustration purposes only. Please talk to your sales consultant for more details
Price: $657,248
Balmoral by Simonds Homes