Lot 133 59 Cornforth Crescent by Wisdom Homes - Catherine Field
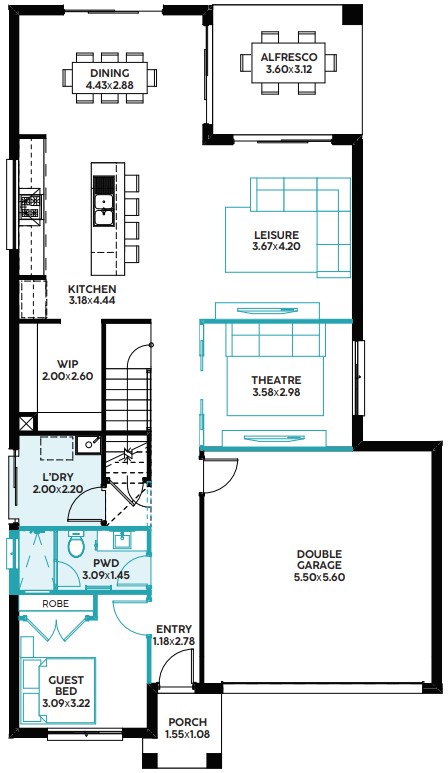
A home for the busy, thriving family, the Memphis is modern and versatile. A feeling of size, space, and connection start as soon as you walk into the generous living at the front of the home. Whether it’s a restful sanctuary or a TV and media room, it connects seamlessly to the main living area via the hallway.
Inspired Living Inclusions:
- Stainless Steel Appliances
- 20mm Caesarstone Kitchen Benchtop
- Soft Close Drawers to Kitchen Cabinetry
- Semi-Framed Shower Screens
- Freestanding Bath
- 1200mm High Wall Tiling to Bathroom, Ensuite & Powder Rooms
- Security Alarm System
- Ducted Reverse Cycle Air Conditioning
- Letterbox
- Clothesline
And much more!
Experience the quality and value of an award-winning builder. Named a finalist for HIA Most Professional Major Builder 2025, we take pride in delivering homes that exceed expectations. Contact our sales team today to discuss this House and Land Package and start your new home build journey with Wisdom Homes, The Wise Choice.
* The price is indicative only and is subject to change following confirmation of site conditions, inclusions, external costs and reports. A fixed price package may be created upon request and that fixed price may not match the advertised price. Changes or upgrades requested by the customer including but not limited to, floor plan changes and upgrades may change the price. Wisdom Homes reserves the right to change specifications, materials, products, and suppliers without notice. Images are to be used as a guide only and may show décor items and external finishes not included in the price. Please ask your Wisdom Homes representative for House Plans and Inclusions details. Pricing as of 19 December 2025, but subject to change without notice. Plans are subject to Approval by the Local Authorities and Principal Developer. Price is fixed only once both Contract for Sale of Land and Building Contracts are exchanged. E&OE. Wisdom Properties Group Pty Ltd trading as Wisdom Homes (ABN 82 089 425 829) Building Licence: 131951C.
4
3
2
Location & Map of Catherine Field
Visit Display Villages near Catherine Field NSW 2557
Vacancy Rate in Catherine Field NSW 2557
View full vacancy rate history in Catherine Field NSW 2557 via SQM Research.
Popular Estates near Lot 133 59 Cornforth Crescent by Wisdom Homes
Latest New Home Articles for You
09/Mar/2026 | OpenLot.com.au
Victoria: Top 30 Most Searched Housing Developments (February 2026)
If you’ve been exploring housing opportunities in Victoria, February 2026...
20/Feb/2026 | OpenLot.com.au
Display Homes at Drouin Fields Estate: A Thriving Community in Drouin
Welcome to Drouin Fields, a place where beauty, space, and modern luxury ...
19/Feb/2026 | OpenLot.com.au
Display Homes at Manor Lakes Esate: A Thriving Waterside Community in Manor Lakes
A place where you can settle in, rather than just settle down. Named for ...
13/Feb/2026 | OpenLot.com.au
🏠 Victoria: Top 30 Most Searched Townhouse Developments – January 2026
11/Feb/2026 | OpenLot.com.au
🏡 Top 30 Most Searched Estates by State - January 2026
10/Feb/2026 | OpenLot.com.au
Victoria: Top 30 Most Searched Housing Developments (January 2026)
If you’ve been considering making a move in Victoria, January 2026 offere...
10/Feb/2026 | OpenLot.com.au
Queensland: Top 30 Most Searched Housing Developments (January 2026)
If you’ve been considering making a move in Queensland, January 2026 offe...
09/Feb/2026 | OpenLot.com.au
Western Australia: Top 30 Most Searched Housing Developments (January 2026)
If you’ve been considering making a move in Western Australia, January 20...
06/Feb/2026 | OpenLot.com.au
South Australia: Top 30 Most Searched Housing Developments (January 2026)
If you’ve been considering making a move in South Australia, January 2026...