Lot 653 Willowstone Estate by Simonds Homes - Cobblebank

A luxurious double-storey house desig that balances family moments with private retreats.

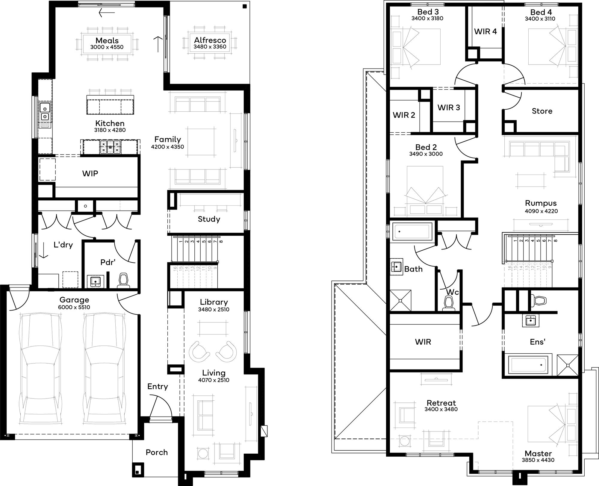
The Ironbark 37, a double-storey home ideal for 12.5m+ blocks, includes 4 bedrooms, 2 bathrooms, and a 2-car garage. The master suite features a vast walk-in robe and a luxury ensuite, while the remaining bedrooms also have their own walk-in robes. The kitchen overlooks the rear, and living and formal dining areas embrace the alfresco, ensuring a blend of communal interaction and private luxury, perfect for families seeking a balance of togetherness and individuality.
Simonds Homes
Lot 653 Willowstone Estate, Cobblebank VIC 3338 Available
Bed  4 Bath  2 Car  2
Land Size: 464.00m²
Frontage: 13m
Depth: 34.06m
Floor Area: 36.61sq
Price: $988,921

Floor-plan for Lot 653: by Simonds Homes


Location & Map of Cobblebank

Loading...

Visit Display Villages near Cobblebank VIC 3338


More House and Land Packages by Simonds Homes (Home Builder)

Bed  3 Bath  2 Car  2
Land Size: 394.00m²
Frontage: 14m
Depth: 25.77m
Floor Area: 19.3sq
Thoughtfully designed for comfort, the Alberta offers modern open-plan family living.
Modern Family Living
From the moment you enter the Alberta, a long hallway guides you into a spacious open-plan living area that forms the heart of the home. With two bedrooms positioned around a central bathroom, a private master suite with an ensuite, and a double garage, the Alberta is thoughtfully designed for comfortable and contemporary family living.

Simonds Fixed Price Home & Land Package

Simonds have been Building Homes Since 1949, and every year, help thousands of Australian's realise their dream of owning a brand new home.

In choosing a builder, we believe that each buyer is looking for the best quality, the best service, and the best price.
Whilst it is impossible to have all three, Simonds have built our Fixed Price reputation on great quality and service, for what is often the largest investment in our clients lives.
As a National Builder with large buying power, our homes are very competitively priced, and most importantly, fantastic value for money.

With the transparency of an itemised quotation, a refundable initial deposit, and a Fixed Price contract at the end of the journey, why not enquire with one of the Simonds Sales team today!

This Attractive House and Land Package Includes:

Fixed price Site Costs
Developer & council requirements
Photovoltaic panels with inverter
Feature front entry door
Colorbond Sectional garage door & remote controls
Floor coverings to entire house
20mm Stone benchtops to kitchen
Quality stainless steel cooktop & oven
Towel Rails & Toilet Roll Holders
800mm Laundry Cabinet
Ducted Heating
Plus much more!


All Fixed Price Home and Land packages are subject to Developer and Council approval and is based on Simonds standard floor plan with preferred siting (without alterations). Package Price does not include stamp duty, government, legal or bank charges. Community Infrastructure Levy and Asset Protection Permit are not included in pricing and is to be arranged by the client directly with the Developer (if applicable). Any alterations may incur additional charges. Confirm land price and availability prior to purchase. Simonds reserves the right to withdraw or amend pricing, inclusions and promotion at any time without notice. Please refer to the terms and conditions at www.simonds.com.au/terms-and-conditions. This package applies to VIC - Aspirations range only. Please speak with your sales consultant for further details. Pricing is current at 03/03/2026.

Facade & Internal images are taken from a similar Simonds display home and are for illustration purposes only. Please talk to your sales consultant for more details
Price: $718,760
Bed  3 Bath  2 Car  2
Land Size: 350.00m²
Frontage: 12.5m
Depth: 28m
Floor Area: 19.3sq
Thoughtfully designed for comfort, the Alberta offers modern open-plan family living.
Modern Family Living
From the moment you enter the Alberta, a long hallway guides you into a spacious open-plan living area that forms the heart of the home. With two bedrooms positioned around a central bathroom, a private master suite with an ensuite, and a double garage, the Alberta is thoughtfully designed for comfortable and contemporary family living.

Simonds Fixed Price Home & Land Package

Simonds have been Building Homes Since 1949, and every year, help thousands of Australian's realise their dream of owning a brand new home.

In choosing a builder, we believe that each buyer is looking for the best quality, the best service, and the best price.
Whilst it is impossible to have all three, Simonds have built our Fixed Price reputation on great quality and service, for what is often the largest investment in our clients lives.
As a National Builder with large buying power, our homes are very competitively priced, and most importantly, fantastic value for money.

With the transparency of an itemised quotation, a refundable initial deposit, and a Fixed Price contract at the end of the journey, why not enquire with one of the Simonds Sales team today!

This Attractive House and Land Package Includes:

Fixed price Site Costs
Developer & council requirements
Photovoltaic panels with inverter
Feature front entry door
Colorbond Sectional garage door & remote controls
Floor coverings to entire house
20mm Stone benchtops to kitchen
Quality stainless steel cooktop & oven
Towel Rails & Toilet Roll Holders
800mm Laundry Cabinet
Ducted Heating
Plus much more!


All Fixed Price Home and Land packages are subject to Developer and Council approval and is based on Simonds standard floor plan with preferred siting (without alterations). Package Price does not include stamp duty, government, legal or bank charges. Community Infrastructure Levy and Asset Protection Permit are not included in pricing and is to be arranged by the client directly with the Developer (if applicable). Any alterations may incur additional charges. Confirm land price and availability prior to purchase. Simonds reserves the right to withdraw or amend pricing, inclusions and promotion at any time without notice. Please refer to the terms and conditions at www.simonds.com.au/terms-and-conditions. This package applies to VIC - Aspirations range only. Please speak with your sales consultant for further details. Pricing is current at 03/03/2026.

Facade & Internal images are taken from a similar Simonds display home and are for illustration purposes only. Please talk to your sales consultant for more details
Price: $657,248

Land Price Trend in Cobblebank VIC 3338

  • In Oct - Dec 24, the median price for vacant land in Cobblebank VIC 3338 was $1,467,100. *
  • From Oct - Dec 17 to Oct - Dec 24, the median price for vacant land in Cobblebank VIC 3338 has increased 652.36%. *
  • From 2011 to 2024, the median price for vacant land in Cobblebank VIC 3338 has increased 154.93%. *
* Price data comes from Valuer-General Victoria on 05/06/25

Vacancy Rate in Cobblebank VIC 3338

View full vacancy rate history in Cobblebank VIC 3338 via SQM Research.


Schools in Cobblebank VIC 3338

There are 0 schools registered in on ACARA 2025

Lot 653 Willowstone Estate by Simonds Homes
Willowstone Estate, Cobblebank VIC 3338
House & Land: 4 Bed | 2 Bath | 2 Car @ $988,921