LUMA Urban | Ikon

Designed for modern family life, Urban homes combine the flexibility of open plan living areas with generous outdoor space.

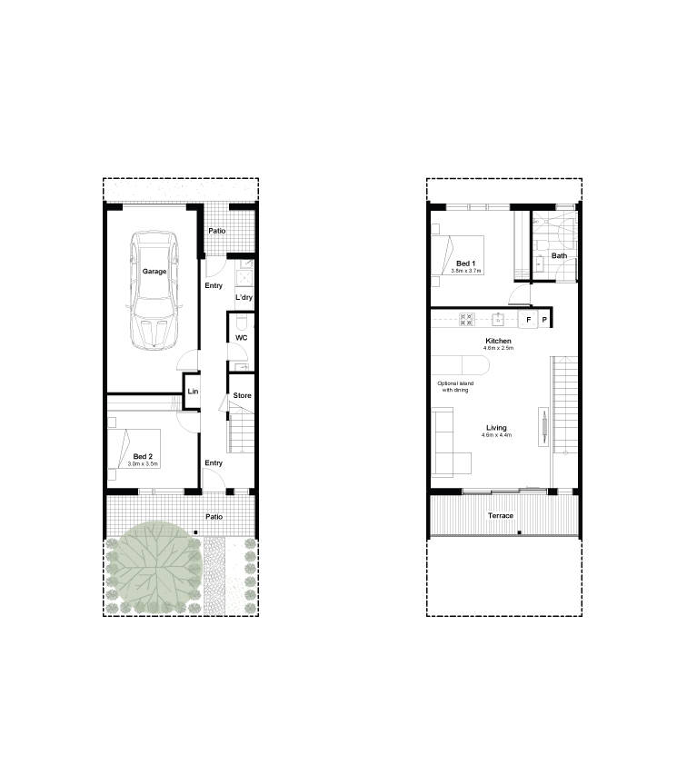
With a classic design, Ikon offers modern light-filled living spaces. Designed for people on the go, Ikon features an easily accessible internal garage entered via a private rear laneway. With a generous open-plan layout and spacious master bedroom on the first floor, Ikon combines plenty of space with enough room for everyone to find their own peace and quiet. A private ground floor bedroom looks out to a landscaped garden, while glazing opens the living and dining areas to the light and views of the upstairs outdoor terrace. Ikon provides a contemporary living solution.

Our sales office is open 11am- 5pm 7 days a week.

A project by Development Victoria.
Visit lumaliving.com.au
Lot 126 Ribbonwood Crescent Reserved
Bed  2 Bath  1 Car  1
Land Size: 104.00m²
Floor Area: 126sq
Price: $600,000

Floor-plan for Lot 126:


Development Info of Luma Estate - Sunshine North

Total new homes 300
Area size 12.49 hectares
Growth Region Melbourne West Growth Corridor
City council Brimbank City Council
Developer Development Victoria
Project marketer Oliver Hume Real Estate Group
Other names Luma Living
Distance to Melbourne Airport - 11 km south Melbourne CBD - 14 km north-west

Location & Map for Luma Estate - Sunshine North

Loading...

Visit Display Homes near Luma Estate - Sunshine North


More Townhouses in Luma Estate - Sunshine North

Bed  2 Bath  1 Car  1
Land Size: 124.54m²
Floor Area: 112sq
KEON | Urban | LUMA Living in a new light.
A modern home with a classic design, Keon is a two bedroom versatile residence designed for individuals to easily live together.

Looking out to a paved and landscaped courtyard Keon's spacious ground floor cleverly integrates kitchen and dining with light-filled family living and a convenient study nook.

With upgraded SMEG appliances, sleek glass splashback and pull-out pantry, Keon offers the complete kitchen package.

With plenty of space to entertain, a separate living room at the front of the home makes it an ideal retreat for a movie or to give the kids some space to spread out.

Upstairs, generously sized bedrooms provide room to grow and plenty of storage, as well as a private outdoor timber decked terrace to the master bedroom overlooking a landscaped front garden.

Adding further convenience, the carport is accessed by a private rear laneway.

This KEON is a chance to elevate your lifestyle. With over $11,000 in upgrades, your new home comes equipped with high-quality finishes and features designed to make your everyday living easier.

Look forward to a range of upgrades as standard, including:
-600mm SMEG appliance package
-ILVE fully integrated dishwasher
-Additional reverse cycle heating and cooling units to all bedrooms & secondary living room
-Engineered timber flooring to living, dining and kitchen areas
-20mm stone kitchen benchtop

Keon offers a range of sustainability initiatives including solar panels and battery storage system that will reduce your carbon footprint and help ease power bills.

Sustainability inclusions;
• 4kW solar panels with German Tech Sonnen battery system
• Electric Vehicle charging point
• Double glazing
• 2,000L rainwater tank

LUMA is a master planned community perfectly positioned within the thriving Sunshine North location. With an abundance of open parkland and a 3,600m2 central park large enough to host any activity.


FEATURES
• Walking distance to Albion and Ginifer Train station
• Easy access to the Western Ring Road
• Minutes to Sunshine Hospital
• 15km to Melbourne CBD

A project by Development Victoria.
Visit lumaliving.com.au
Price: $625,000
Bed  2 Bath  2 Car  1
Land Size: 102.34m²
Floor Area: 147sq
ABON | Urban | Collection 8 | LUMA Living in a new light.
With a classic design, LUMA's two-bedroom Abon home offers a modern twist with light-filled living spaces.

Specifically designed for people on the go, Abon features a light-filled stairwell and an easily accessible internal garage accessed via a private rear laneway.
With a generous open-plan layout, the kitchen offers Inalto appliances, a pull-out pantry and optional island bench as an upgrade.

Abon's expansive glazing opens up the living and dining areas to natural light and surrounding views from the upstairs outdoor timber decked terrace.
The spacious first-floor master bedroom has an accompanying bathroom, whilst the private ground floor bedroom looks out to a landscaped garden.
Throughout its carefully considered floorplan, Abon combines plenty of space with enough room for everyone to find their own peace and quiet.

Abon offers a range of sustainability initiatives including solar panels and battery storage system that will reduce your carbon footprint and help ease power bills.

Offering a choice of either the Daybreak or Nightfall interior scheme, Abon is a home you can truly make your own.

Sustainability inclusions:
• 4KW solar panel system with battery storage
• 7-star minimum NatHERS rating
• Electric Vehicle charging point
• Double glazing
• 2,000L rainwater tank

LUMA is a master-planned community perfectly positioned within the thriving Sunshine North location. With an abundance of open parkland and a 3,600m2 central park large enough to host any activity.

FEATURES
• Walking distance to Albion and Ginifer Train station
• Easy access to the Western Ring Road
• Minutes to Sunshine Hospital
• 15km to Melbourne CBD

For further information contact 03 8317 3725.

A project by Development Victoria.
Visit lumaliving.com.au
Price: $593,000
Bed  3 Bath  2 Car  1
Land Size: 329.00m²
Floor Area: 194sq
TISO | Tempo | Collection 5 | LUMA Living in a new light.
A home designed for modern family life, Tiso is a three bedroom residence combining the flexibility of open-plan living with generous outdoor space.

Timeless and open, Tiso features dual street frontages with patio tiled entrances and a secure attached garage offering convenient internal access. Generous living spaces include a first floor living and dining area, plus a downstairs rumpus room with a private courtyard garden, taking full advantage of the sun.

An ample-sized kitchen includes stone benchtops, marble look splashback and SMEG appliances, while glazing opens up family zones to an abundance of natural light.

A large outdoor terrace off the living room adds plenty of options for entertaining.

The master bedroom features an ensuite and walk-in robe to ensure privacy, while bathrooms include carefully chosen tapware.

Tiso offers a range of sustainability initiatives including solar panels and battery storage system that will reduce your carbon footprint and help ease power bills.

With the choice of either the Sunlight or Shadow interior scheme, Tiso is truly a timeless home.

Sustainability inclusions;
• 5KW solar panel system with battery storage
• 7-star minimum NatHERS rating
• Electric Vehicle charging point
• Double glazing
• 2,000L rainwater tank

LUMA is a master-planned community perfectly positioned within the thriving Sunshine North location. With an abundance of open parkland and a 3,600m2 central park large enough to host any activity.

FEATURES
• Walking distance to Albion and Ginifer Train station
• Easy access to the Western Ring Road
• Minutes to Sunshine Hospital
• 15km to Melbourne CBD

For further information contact 03 8317 3725.

A project by Development Victoria.
Visit lumaliving.com.au
Price: $807,000

Land Price Trend in Sunshine North VIC 3020

  • In Oct - Dec 24, the median price for vacant land in Sunshine North VIC 3020 was $535,000. *
  • From Oct - Dec 17 to Oct - Dec 24, the median price for vacant land in Sunshine North VIC 3020 has increased 44.09%. *
  • From 2008 to 2024, the median price for vacant land in Sunshine North VIC 3020 has increased 143.18%. *
* Price data comes from Valuer-General Victoria on 05/06/25

Vacancy Rate in Sunshine North VIC 3020

View full vacancy rate history in Sunshine North VIC 3020 via SQM Research.


Schools near Luma Estate - Sunshine North

Here are 6 schools near Luma Estate - Sunshine North:

Lot 126:
Luma Estate - Sunshine North