Lot 417/247: @ Luma Estate - Sunshine North VIC 3020
ELKO | Tempo | Collection 4 | LUMA Living in a new light.
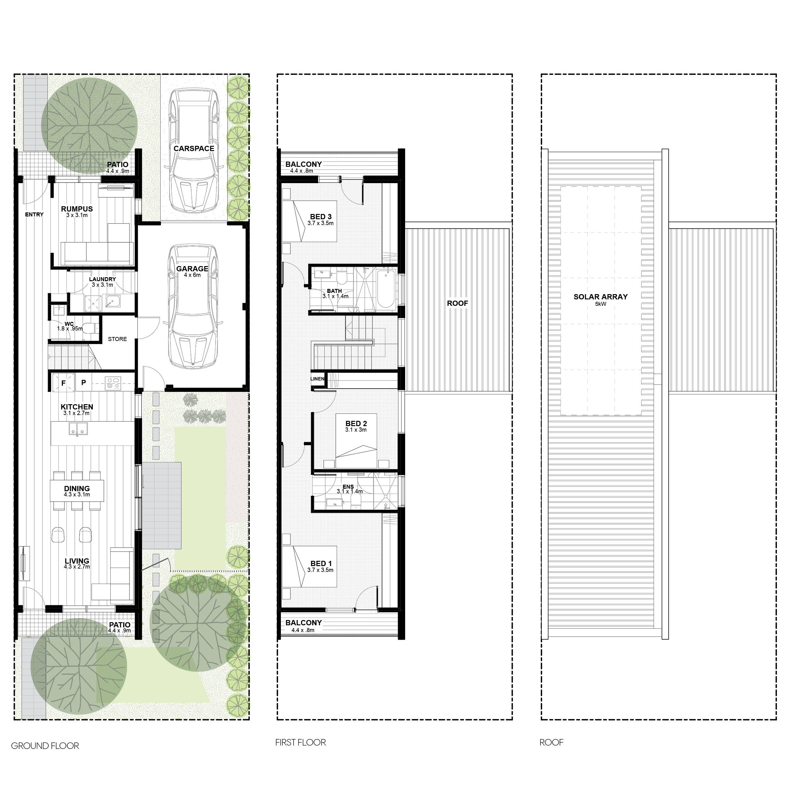
Ideal for active families, Elko's spacious ground floor features a generous-sized kitchen with stone benchtops, marble-look splashback, and SMEG appliances.
The living and dining area opens onto a large paved and landscaped courtyard garden perfect for relaxing and entertaining.
The ground floor also includes a separate rumpus room or retreat for both the young and old, a handy powder room, and internal garage access.
Upstairs, two of Elko's three bedrooms open onto private outdoor timber decked terraces. A stylish ensuite and built-in robes complete the large master bedroom, while a spacious main bathroom with elegant tapware and solid surface basin provides a buffer between the other two bedrooms.
Elko offers a range of sustainability initiatives including solar panels and battery storage system that will reduce your carbon footprint and help ease power bills.
With the choice of either the Sunlight or Shadow interior scheme, Elko is truly a timeless home.
Sustainability inclusions;
• 5KW solar panel system with battery storage
• 7-star minimum NatHERS rating
• Electric Vehicle charging point
• Double glazing
• 2,000L rainwater tank
LUMA is a master-planned community perfectly positioned within the thriving Sunshine North location. With an abundance of open parkland and a 3,600m2 central park large enough to host any activity.
FEATURES
• Walking distance to Albion and Ginifer Train station
• Easy access to the Western Ring Road
• Minutes to Sunshine Hospital
• 15km to Melbourne CBD
For further information contact 03 8317 3725.
A project by Development Victoria.
Visit lumaliving.com.au
3
2
1Development Info of Luma Estate - Sunshine North
This information is estimated by the OpenLot research team. Let us know here to provide up-to-date information about this development.
| Total new homes | 300 |
| Area size | 12.49 hectares |
| Growth Region | Melbourne West Growth Corridor |
| City council | Brimbank City Council |
| Developer | Development Victoria |
| Project marketer | Oliver Hume Real Estate Group |
| Other names | Luma Living |
| Distance to | Melbourne Airport - 11 km south Melbourne CBD - 14 km north-west |
Location & Map for Luma Estate - Sunshine North
Visit Display Homes near Luma Estate - Sunshine North
More Townhouses in Luma Estate - Sunshine North
Land Price Trend in Sunshine North VIC 3020
- In Oct - Dec 24, the median price for vacant land in Sunshine North VIC 3020 was $535,000. *
- From Oct - Dec 17 to Oct - Dec 24, the median price for vacant land in Sunshine North VIC 3020 has increased 44.09%. *
- From 2008 to 2024, the median price for vacant land in Sunshine North VIC 3020 has increased 143.18%. *
Vacancy Rate in Sunshine North VIC 3020
View full vacancy rate history in Sunshine North VIC 3020 via SQM Research.
Schools near Luma Estate - Sunshine North
Here are 6 schools near Luma Estate - Sunshine North:
Prep-6 Government Primary School
U Government Special School
U Government Special School
Prep-6 Government Primary School
Prep-6 Catholic Primary School
Prep-6 Independent Primary School
Popular Estates near Luma Estate - Sunshine North
Latest New Home Articles for You
01/Dec/2025 | OpenLot.com.au
Display Homes at Bushmead: Modern Living in Bushmead
If you love the peace and tranquillity of the Australian bush, you’ll fee...
27/Nov/2025 | OpenLot.com.au
Display Homes at Eden Beach: Premium Coastal Living in Jindalee
26/Nov/2025 | OpenLot.com.au
Display Homes Near Me (VIC): Your Complete Guide to Display Villages Across Victoria
Finding the right display home in Victoria has never been easier, with do...
24/Nov/2025 | OpenLot.com.au
🏡 New Neighbourhoods Season 1 Recap
From the outset, New Neighbourhoods sets out to explore Australia’s dynam...
24/Nov/2025 | OpenLot.com.au
🏡 Suburb Profile: Moss Vale
Moss Vale is a suburb of approximately 79.56 square kilometres within the...
21/Nov/2025 | OpenLot.com.au
Display Homes at Averley: Elevated Living in Nar Nar Goon North
Imagine a place where native bushland complements timeless architecture, ...
18/Nov/2025 | OpenLot.com.au
Display Homes at Exford Waters: True Riverside Living in Weir Views
Discover a lifestyle shaped by nature and connection at Exford Waters, wh...
17/Nov/2025 | OpenLot.com.au
Display Homes at Crownlea: A Lifestyle of Space in Warragul
Embrace the good life and enjoy the very best views in Warragul at Warrag...
13/Nov/2025 | OpenLot.com.au
Display Homes at Bluestone: A Showcase of Style and Innovation in Tarneit
Get ready to immerse yourself in a world of inspiration and design excell...











