USON | Urban | Collection 4 | LUMA Living in a new light.

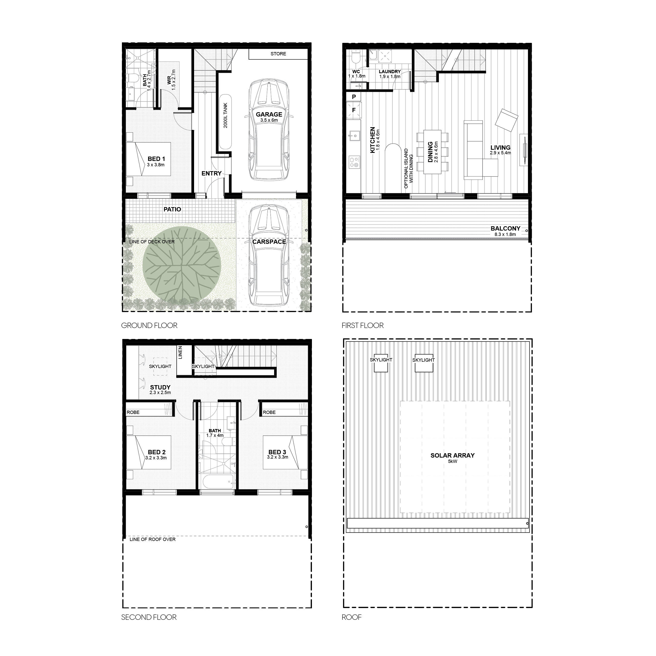
Uson offers modern and flexible family living set over three light-filled levels. A private ground floor master bedroom with walk-in robe and ensuite overlooks the landscaped front garden.

An expansive first floor living and dining area extends out to a large outdoor terrace with double height ceiling, offering plenty of options for entertaining. Upstairs a further two bedrooms, a bathroom and large dedicated study provide room to grow and plenty of storage. With easy internal access from the secure garage, plus space to park a second car, Uson epitomises convenient, contemporary living.

Uson offers a range of sustainability initiatives including solar panels and battery storage system that will reduce your carbon footprint and help ease power bills.

With the choice of either the Sunlight or Shadow interior scheme, Uson is truly a timeless home.

Sustainability inclusions;
• 5kW solar panel system with battery storage
• 7-star minimum NatHERS rating
• Electric Vehicle charging point
• Double glazing
• 2,000 litre rainwater tank

LUMA is a master planned community perfectly positioned within the thriving Sunshine North location, with an abundance of open parkland and a 3,600m2 central park large enough to host any activity.


FEATURES
• Walking distance to Albion and Ginifer Train station
• Easy access to the Western Ring Road
• Minutes to Sunshine Hospital
• 15km to Melbourne CBD

For further information we can be contacted on 03 8317 3725.

A project by Development Victoria.
Visit lumaliving.com.au
Lot 508/247 St Albans Road Sold
Bed  3 Bath  2 Car  1
Land Size: 105.35m²
Floor Area: 182sq
Price: $660,500

Floor-plan for Lot 508/247:


Development Info of Luma Estate - Sunshine North

Total new homes 300
Area size 12.49 hectares
Growth Region Melbourne West Growth Corridor
City council Brimbank City Council
Developer Development Victoria
Project marketer Oliver Hume Real Estate Group
Other names Luma Living
Distance to Melbourne Airport - 11 km south Melbourne CBD - 14 km north-west

Location & Map for Luma Estate - Sunshine North

Loading...

Visit Display Homes near Luma Estate - Sunshine North


More Townhouses in Luma Estate - Sunshine North

Bed  3 Bath  2 Car  1
Land Size: 231.00m²
Floor Area: 194sq
TISO | Tempo | Collection 10 | LUMA Living in a new light.
A home designed for modern family life, Tiso is a three bedroom residence combining the flexibility of open-plan living with generous outdoor space.

Timeless and open, Tiso features dual street frontages with patio tiled entrances and a secure attached garage offering convenient internal access. Generous living spaces include a first floor living and dining area, plus a downstairs rumpus room with a private courtyard garden, taking full advantage of the sun.

An ample-sized kitchen includes stone benchtops, marble look splashback and SMEG appliances, while glazing opens up family zones to an abundance of natural light.

A large outdoor terrace off the living room adds plenty of options for entertaining.

The master bedroom features an ensuite and walk-in robe to ensure privacy, while bathrooms include carefully chosen tapware.

Tiso offers a range of sustainability initiatives including solar panels and battery storage system that will reduce your carbon footprint and help ease power bills.

Sustainability inclusions;
• 5kW solar panel system with battery storage
• 7-star minimum NatHERS rating
• Electric Vehicle charging point
• Double glazing
• 2,000L rainwater tank

LUMA is a master-planned community perfectly positioned within the thriving Sunshine North location. With an abundance of open parkland and a 3,600m2 central park large enough to host any activity.

FEATURES
• Walking distance to Albion and Ginifer Train station
• Easy access to the Western Ring Road
• Minutes to Sunshine Hospital
• 15km to Melbourne CBD

A project by Development Victoria.
Visit lumaliving.com.au
Price: $826,000
Bed  3 Bath  2 Car  2
Land Size: 138.00m²
Floor Area: 189sq
ACON | Urban | Collection 8 | LUMA Living in a new light.
With a classic design, Acon offers modern light-filled living spaces. Designed for people on the go, Acon features a generous open-plan layout with an easily accessible internal garage entered via a private rear laneway. Acon combines plenty of space with enough room for everyone to find their own peace and quiet.

A spacious ground floor master bedroom looks out to a landscaped garden, while upstairs includes 2 large bedrooms and family bathroom. Glazing opens the living and dining areas to the light and views of the upstairs outdoor terrace. Acon provides a contemporary living solution.

Acon offers a range of sustainability initiatives including solar panels and battery storage system that will reduce your carbon footprint and help ease power bills.

Offering a choice 2 interior colour schemes, Acon is a home you can truly make your own.

Sustainability inclusions:
• 5KW solar panel system with battery storage
• 7-star minimum NatHERS rating
• Electric Vehicle charging point
• Double glazing
• 2,000L rainwater tank

LUMA is a master-planned community perfectly positioned within the thriving Sunshine North location. With an abundance of open parkland and a 3,600m2 central park large enough to host any activity.

FEATURES
• Walking distance to Albion and Ginifer Train station
• Easy access to the Western Ring Road
• Minutes to Sunshine Hospital
• 15km to Melbourne CBD

A project by Development Victoria.
Visit lumaliving.com.au
Price: $729,000
Bed  3 Bath  2 Car  0
Land Size: 235.00m²
Floor Area: 150sq
JEON | Urban | Collection 7 | LUMA Living in a new light.
Jeon is a three-bedroom, generous sized home designed to offer modern living.
With a formal sitting room or rumpus room looking out into the front garden, open-plan kitchen and living space to the rear, and a large entrance lobby, Jeon provides plenty of options for extended family living.
The large entertainer's kitchen features stainless steel appliances, sleek splashback, double door pantry and optional island bench upgrade.
Living and dining areas open directly onto a private paved and landscaped garden, with an abundance of natural light filtering into the home to offer brilliant flexibility for all seasons.
Upstairs, a generously sized master bedroom with ensuite is configured to let the sunlight stream in, whilst two large bedrooms at the rear, and a convenient study nook with skylight, complete this generous floorplan.
With 2 bathrooms, a ground floor powder room, plenty of storage, and a double carport accessed by a private rear laneway, Jeon is a home that presents scale, comfort and convenience in equal measure.

Jeon offers a range of sustainability initiatives including solar panels and battery storage system that will reduce your carbon footprint and help ease power bills.

Offering a choice of either the Daybreak or Nightfall interior scheme, Jeon is a home you can truly make your own.
Sustainability inclusions;
• 5KW solar panel system with battery storage
• 7-star minimum NatHERS rating
• Electric Vehicle charging point
• Double glazing
• 2,000L rainwater tank

LUMA is a master-planned community perfectly positioned within the thriving Sunshine North location. With an abundance of open parkland and a 3,600m2 central park large enough to host any activity.

FEATURES
• Walking distance to Albion and Ginifer Train station
• Easy access to the Western Ring Road
• Minutes to Sunshine Hospital
• 15km to Melbourne CBD

For further information contact 03 8317 3725.

A project by Development Victoria.
Visit lumaliving.com.au
Price: $785,000

Land Price Trend in Sunshine North VIC 3020

  • In Oct - Dec 24, the median price for vacant land in Sunshine North VIC 3020 was $535,000. *
  • From Oct - Dec 17 to Oct - Dec 24, the median price for vacant land in Sunshine North VIC 3020 has increased 44.09%. *
  • From 2008 to 2024, the median price for vacant land in Sunshine North VIC 3020 has increased 143.18%. *
* Price data comes from Valuer-General Victoria on 05/06/25

Vacancy Rate in Sunshine North VIC 3020

View full vacancy rate history in Sunshine North VIC 3020 via SQM Research.


Schools near Luma Estate - Sunshine North

Here are 6 schools near Luma Estate - Sunshine North:

Lot 508/247:
Luma Estate - Sunshine North