Lot RECIEVE UP TO $1050 PER WEEK RENT: Airlie Trinity @ Maplewood Estate - Melton South VIC 3338
UP TO $1050 PER WEEK RENT
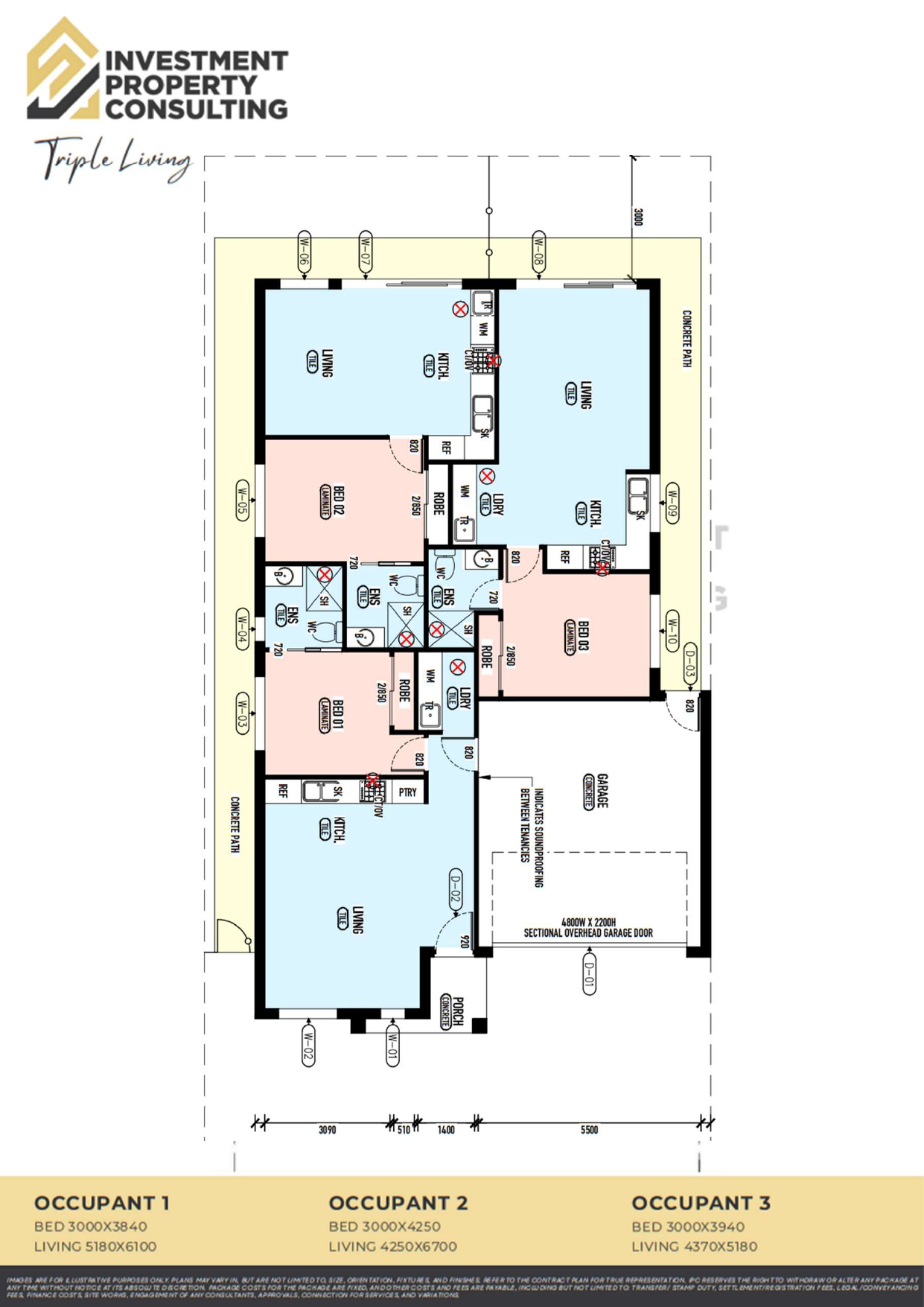
- Full Turnkey!
- 7* Energy Rating
- Fixed Site Cost
- 2740MM Ceiling Height
- Three Private Living areas
- Three Private Kitchens
- Three Private Laundries
- Stone Benchtops Throughout
- Laminate Flooring
- Front and Rear Landscaping
- Design Guidelines and Developer Approvals
- Infrastructure Levy
- Split System Heating & Cooling
- IL Upgrade Available at extra 10k
- Much Much Moreā¦..
3
3
2
Development Info of Maplewood Estate - Melton South
This information is estimated by the OpenLot research team. Let us know here to provide up-to-date information about this development.
| Total new homes | 706 |
| Area size | 50.00 hectares |
| Growth Region | Melbourne West Growth Corridor |
| City council | Melton City Council |
| Developer | Golden Group |
| Creative agency | Blackbox |
| Distance to | Melbourne Airport - 25 km west Melbourne CBD - 37 km west |
Location & Map for Maplewood Estate - Melton South
Visit Display Homes near Maplewood Estate - Melton South
More House and Land Packages in Maplewood Estate - Melton South
4
3
2
⢠Laminate flooring in living areas
⢠Led Downlights throughout the House
⢠2.6kw Solar System
⢠Double Glazed Windows.
⢠20mm Stone Benchtops Throughout.
⢠2590mm High Ceilings Throughout.
⢠Feature Cabinetry To Kitchen and Bathrooms.
⢠Glazed Porcelain Tiles To All Wet Areas (Including
Showerbase).
⢠Site Costs Included (Subject to T&C's).
⢠Soft Closing Drawers & Doors To All Cabinets.
⢠Ducted Heating & Cooling System: split system air-conditioner
⢠Dishwasher
⢠FULL TURN KEY - Front & Rear Landscaping, Coloured
Concrete Driveway, Letter box, Clothesline, Block Out Blinds &
Fencing Rebate
Land Price Trend in Melton South VIC 3338
- In Oct - Dec 24, the median price for vacant land in Melton South VIC 3338 was $305,000. *
- From Oct - Dec 17 to Oct - Dec 24, the median price for vacant land in Melton South VIC 3338 has increased 45.24%. *
- From 2008 to 2024, the median price for vacant land in Melton South VIC 3338 has increased 224.61%. *
Vacancy Rate in Melton South VIC 3338
View full vacancy rate history in Melton South VIC 3338 via SQM Research.
Schools near Maplewood Estate - Melton South
Here are 6 schools near Maplewood Estate - Melton South:
Prep-12 Independent Combined School
7-12 Government Secondary School
Prep-6 Catholic Primary School
Prep-12 Independent Combined School - School Head Campus
Prep-6 Government Primary School
Prep-6 Government Primary School
Popular Estates near Maplewood Estate - Melton South
Latest New Home Articles for You
10/Feb/2026 | OpenLot.com.au
Victoria: Top 30 Most Searched Housing Developments (January 2026)
If youāve been considering making a move in Victoria, January 2026 offere...
10/Feb/2026 | OpenLot.com.au
Queensland: Top 30 Most Searched Housing Developments (January 2026)
If youāve been considering making a move in Queensland, January 2026 offe...
09/Feb/2026 | OpenLot.com.au
Western Australia: Top 30 Most Searched Housing Developments (January 2026)
If youāve been considering making a move in Western Australia, January 20...
06/Feb/2026 | OpenLot.com.au
South Australia: Top 30 Most Searched Housing Developments (January 2026)
If youāve been considering making a move in South Australia, January 2026...
05/Feb/2026 | OpenLot.com.au
New South Wales: Top 30 Most Searched Housing Developments (January 2026)
If youāve been considering making a move in New South Wales, January 2026...
31/Jan/2026 | OpenLot.com.au
Five Estates. Five Futures. A New Way to Live.
Across New South Wales, a quiet but powerful transformation is underway. ...
27/Jan/2026 | OpenLot.com.au
Display Homes at Stockland Wildflower Estate: A Smart Community in Piara Waters
Welcome to Wildflower, a vibrant new neighbourhood nestled in the heart o...
16/Jan/2026 | OpenLot.com.au
South Australia Top 30 Most Searched Housing Developments (December 2025)
15/Jan/2026 | OpenLot.com.au
Queensland: Top 30 Most Searched Housing Developments (December 2025)
If youāve been tracking housing demand across Queensland, December 2025 p...