Lot 721 Hallray Road by Sherridon Homes - Mickleham
Unlock Your Dream Home When You Build With Sherridon Homes In This Prime Location!
- 7-star energy rated home
- Double-glazed awning windows and sliding doors to single-storey homes (where required)
- Double-glazed awning windows and sliding doors to double-storey homes throughout
- Colour-through concrete driveway (up to 36m2)
- Letterbox
- 3.5kw split system to living area
- 2590mm high ceilings throughout (ground floor of double storey homes only)
- Block out roller blinds throughout including 2 standard sliding doors
- Omega 60cm dishwasher ODW700X
- 20mm Caesarstone benchtop throughout (kitchen, bathroom & ensuite only)
- Downlights throughout
*Pricing Is Based On Developer Engineering Plans, Estate Guidelines And Plan Of Subdivision. Land Availability And Pricing Supplied By The Developer Are Subject To Change Without Notice. All House And Land Packages Are Subject To Developer Approval. Price Does Not Include Any Stamp Duty, Government, Legal Or Bank Charges. *Total Package Price Minus $10K FHOG (Subject To SRO Eligibility) The First Home Owners Grant Is A Government Incentive And Any Claims Will Be Lodged Externally. Photographs In This Flyer May Depict Fixtures, Finishes And Features Either Not Supplied Or Are Upgrade Options By Sherridon. All Floorplan, Facade Images And Photographs Have Been Used For Illustrative Purposes Only (Refer To Contract Documentation For Full Details) And May Not Represent The Final Product As Shown. Please Refer To Your Friendly New Home Consultant For An Exact List Of Inclusions With Detail. Sherridon Homes Reserves The Right To Amend Specification And Price Without Notice. VIC Builder's Licence: CDB-U 50039v
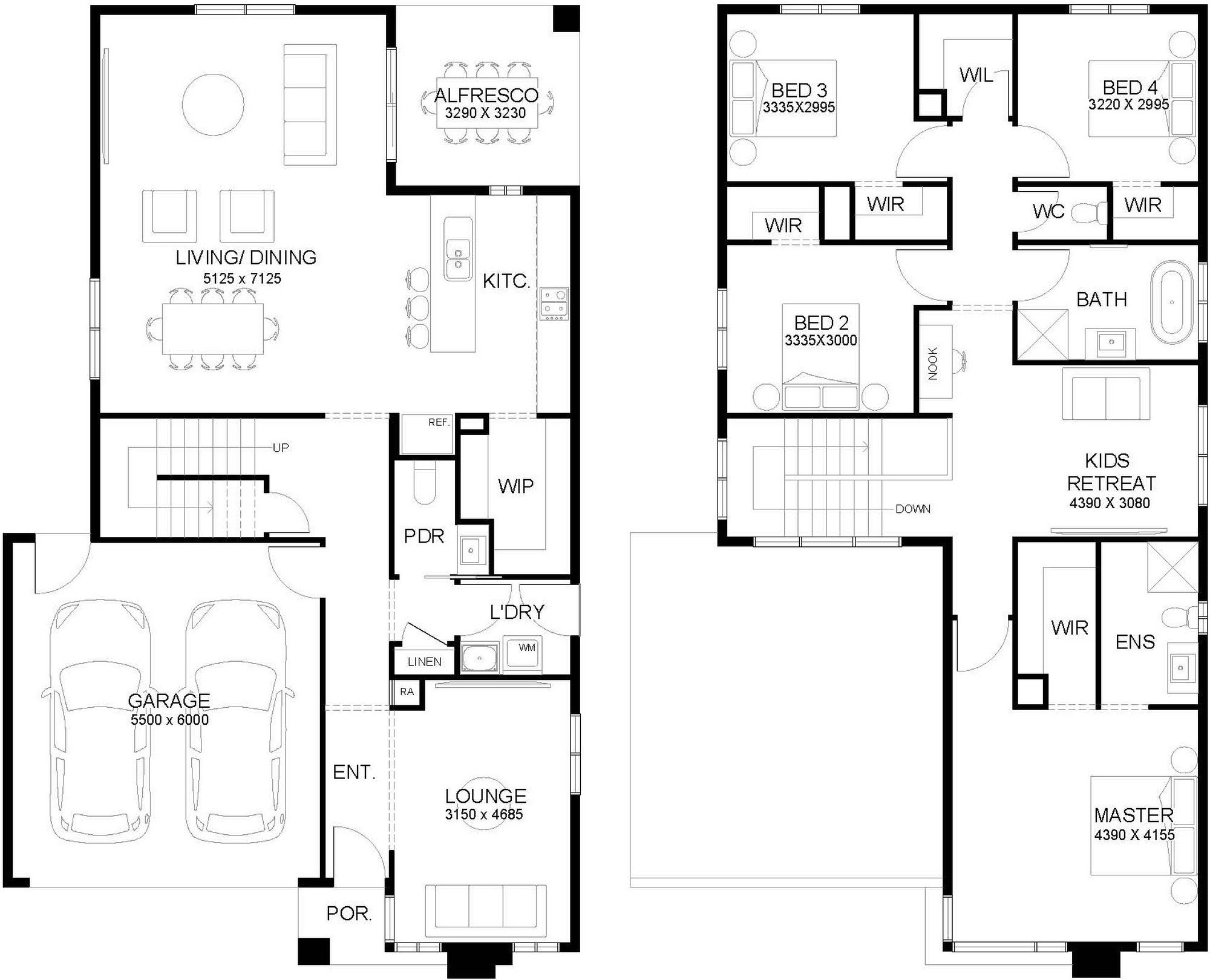
4
2
2
Location & Map of Mickleham
Visit Display Villages near Mickleham VIC 3064
More House and Land Packages by Sherridon Homes (Home Builder)
Land Price Trend in Mickleham VIC 3064
- In Oct - Dec 24, the median price for vacant land in Mickleham VIC 3064 was $218,800. *
- From Oct - Dec 17 to Oct - Dec 24, the median price for vacant land in Mickleham VIC 3064 has decreased 14.7%. *
- From 2010 to 2024, the median price for vacant land in Mickleham VIC 3064 has increased 153.38%. *
Vacancy Rate in Mickleham VIC 3064
View full vacancy rate history in Mickleham VIC 3064 via SQM Research.
Schools in Mickleham VIC 3064
There are 6 schools registered in on ACARA 2024
Prep-6 Government Primary School
Prep-12 Independent Combined School - School Head Campus
Prep-6 Government Primary School
Prep-6 Catholic Primary School
7-8 Government Secondary School
Prep-6 Government Primary School
Suburb Planning Review in Mickleham VIC 3064
Mickleham is approximately 54.7 square kilometres within the City of Hume, a semi-rural location to the north of Melbourne’s outer suburbs of the Urban Growth Boundary and logical expansion of the former Mickleham township. The suburb is located 29 kilometres north of Melbourne CBD. Mickleham enjoys a strategic location to the west of the Hume Highway.

The suburb boundary is located along property boundaries, Gunnes Gully Road and an unnamed dry creek corridor to the North. Deep Creek and Mt Ridley Road make up the western boundary. Mickleham Road, Mt Ridley Road, Craigieburn Road and Whites Lane provide the southern boundary, with property boundaries and Hume Highway providing the eastern boundary.
Mickleham Road and Old Sydney Road provide local road access (north to south), along with Bardwell Drive and Donnybrook Road provide local road access (East to West), which connect the local road network found throughout Mickleham linking to the Hume Highway interchange found to the eastern boundary of the township. An additional southbound off-ramp is found in the south-east suburb corner. The interchanges allow direct access for anyone travelling through the region.
The suburb of Mickleham provides a range of residential property sizes, mix of land uses and a large portion of rural land. Mount Ridley and a large Natural Conservation Reserve are located to the south-east, with a waterway corridor to the west and a series of lakes found scattered throughout the suburb. Mickleham slowly redeveloping, with local retail centres, supermarkets, services, schools and recreational areas being included to support the growth.

Melbourne 2030 (2008 Update) - Victorian Government
In 2002 the Victorian Government's blueprint for managing long-term growth in the surrounding region. The 2008 release of updated population projections in "Victoria in Future 2008" prompts a revaluation of development strategies, ensuring Melbourne remains adaptable. Acknowledging an inevitable population surge, "Melbourne @ 5 million" emphasises readiness and focuses on job creation and service provision in key areas.
The update prioritises preserving liveability and enhancing quality of life. It targets growth towards Melbourne's north and west while exploring expansion possibilities. Moreover, it encourages collaboration with councils to identify suitable redevelopment sites, underscoring the importance of community support for Melbourne's evolution as a top-tier city.
Key Facts:
Melbourne 2030 (2002): Established the Urban Growth Boundary (UGB) to manage expansion
UGB Purpose: Directs growth to areas with infrastructure while protecting land and environment.
2010 UGB Review: Accommodated 600,000 new dwellings, primarily in north and west
Environmental Assessment: rigorous studies and Commonwealth approval to protect natural features.
Funding Infrastructure: Introduction of Growth Areas Infrastructure Contribution (GAIC) and improved Development Contribution Plans (DCP).
2012 Expansion: Added 6,000 hectares to UGB based on recommendations
Outer Melbourne Northern Suburbs Upgrade
Infrastructure Australia in 2016 identified the need to improve urban transport networks between Melbourne's Outer Northern Suburbs and the CBD, marking it as crucial within a medium-term timeframe of 5-10 years. The proposal aims to address pressing transportation challenges due to rapid growth in the Northern Growth Corridor. With projections indicating significant population and employment increases by 2031, existing road and rail infrastructure faces strain, leading to anticipated congestion and delays along the Hume Freeway and the Seymour Line.
Recognising the urgency, the Victorian and Australian Governments are collaborating on a comprehensive strategy integrating road and rail network planning. Through various projects and proposed reforms outlined in Victoria’s infrastructure strategy 2021-2051, efforts are underway to alleviate congestion and enhance transportation services in the corridor. Emphasising the need to explore diverse options, including infrastructure upgrades and reforms, this proposal seeks to meet the transportation needs of Melbourne's outer northern suburbs' growing population and employment hub.

Growth Corridor Plans
The Precinct Structure Plans (PSPs) complement the broader land use framework outlined in the Growth Corridor Plans. PSPs are detailed planning documents that guide development within specific precincts, ensuring they align with the overarching goals of the Growth Corridor Plans. Developed through a consultative process involving stakeholders, PSPs provide a strategic blueprint for neighbourhood development.
In 2012, the Growth Areas Authority (GAA) in collaboration with local councils, PSPs define the pattern for neighbourhood growth, ensuring cohesion and sustainability over time. They play a crucial role in creating attractive, convenient, and sustainable local communities within the broader growth framework.

Northern Growth Corridor Plan (Mickleham)
Melbourne's north undergoes significant transformation, driven by a diverse socio-economic landscape and a burgeoning economy, supported by key infrastructure like Melbourne Airport and major transport arteries. The Northern Growth Corridor Plan aims to accommodate 260,000 residents and generate 83,000 jobs, focusing on advanced manufacturing, logistics, and the knowledge economy. The plan prioritizes preserving natural features, improving public transport, and developing new town centres to sustainably support the area's growth, alongside initiatives to provide diverse housing options for evolving community needs.

Precinct Structure Plans of Mickleham
The Growth Areas Authority, in collaboration with the Hume City Council, government agencies, service authorities, and key stakeholders, has developed the Precinct Structure Plans (PSP) for Mickleham. These plans are crafted to steer the redevelopment of designated land, creating interconnected neighbourhoods supported by diverse local town centres, schools, and community facilities. Additionally, measures to safeguard natural assets and conservation areas are incorporated to preserve habitats within the planned suburb.
PSP Relevant to Mickleham:
Craigieburn West PSP (September 2021) - updated August 2022
Craigieburn PSP (September 2010) – updated September 2021
Merrifield North (August 2024)
Merrifield West (2012) – New in January 2024
Lindum Vale (2018) – July 2019

Precinct Structure Plan:
Acts as a roadmap for creating a high-quality urban environment
Establishes a vision for land development, outlining future urban structure and development objectives
Identifies necessary projects to ensure timely access to services and transport infrastructure for residents, visitors, and workers
Specifies the form and conditions for future land use and development
Sets the framework for development controls in the Urban Growth Zone
Guides planning permits within the zone
Offers direction for developers, investors, and local communities regarding future development
Complies with the requirements of the EPBC Act 1999




Hume Regional Growth Plan
The Hume Regional Growth Plan was published in 2014 to offer a comprehensive approach to land use planning across the Council area. Accompanied by a background paper detailing considerations, the plan outlines strategies to foster growth and facilitate change over the next three decades. Building upon the Hume Strategy for Sustainable Communities 2010–2020, it aspires to realise a shared vision for the Hume Region. The plan outlines future development locations, preservation strategies for environmental and heritage assets, and regional infrastructure priorities to support growth.
Vision
The Hume Region will be resilient, diverse and thriving. It will capitalise on the strengths and competitive advantages of the four sub-regions, to harness growth for the benefit of the region and to develop liveable and sustainable communities.
Hume Council Planning Scheme (2024)
The council is responsible for ensuring adequate housing, facilities, infrastructure, and services for new residents and businesses. The city of Hume is experiencing rapid growth and to address this, the Council has continuously updated its planning scheme. The population will grow by more than 50% from just under 245,000 in 2021 to nearly 395,000 by 2041. When all current growth area land is developed the population will be around 420,000. Revisions to the plan may occur based on feedback and changes in circumstances, or new planning information.
New development has occurred in the growth areas, supported by the zoning applied by the Hume Planning Scheme and the precinct structure plans. The new urban areas are supported by new schools, parks, sporting grounds, local centres and transport infrastructure.

Mickleham Suburb Summary
References
Hume Council – PSP Locations Map
Melbourne 2030: A Planning Update
Melbourne Urban Growth boundary
Growth Corridor Plan – Managing Melbourne’s Growth
The North Growth Corridor Plan
Melbourne outer northern suburbs to CBD capacity upgrade
Hume-Regional-Growth-Plan-May-2014
Craigieburn West Precinct Structure Plan - VPA
Craigieburn R2 Precinct Structure Plan - VPA
Merrifield North Precinct Structure Plan - VPA
Merrifield West Precinct Structure Plan - VPA
Lindum Vale Precinct Structure Plan - VPA
Popular Estates near Lot 721 Hallray Road by Sherridon Homes
Latest New Home Articles for You
27/Jan/2026 | OpenLot.com.au
Display Homes at Stockland Wildflower Estate: A Smart Community in Piara Waters
Welcome to Wildflower, a vibrant new neighbourhood nestled in the heart o...
16/Jan/2026 | OpenLot.com.au
South Australia Top 30 Most Searched Housing Developments (December 2025)
15/Jan/2026 | OpenLot.com.au
Queensland: Top 30 Most Searched Housing Developments (December 2025)
If you’ve been tracking housing demand across Queensland, December 2025 p...
14/Jan/2026 | OpenLot.com.au
Victoria: Top 30 Most Searched Housing Developments (December 2025)
If you’ve been exploring housing opportunities in Victoria, December 2025...
14/Jan/2026 | OpenLot.com.au
Display Homes at Apsley Estate: A Masterplanned Community in Mandogalup
Apsley is a bold, 1,800-lot masterplanned community just 25 minutes south...
13/Jan/2026 | OpenLot.com.au
Western Australia: Top 30 Most Searched Housing Developments (December 2025)
If you’ve been keeping an eye on housing demand across Western Australia,...
12/Jan/2026 | OpenLot.com.au
New South Wales: Top 30 Most Searched Housing Developments (December 2025)
If you’ve been considering making a move in New South Wales, December 202...
07/Jan/2026 | OpenLot.com.au
🏡 Top 30 Most Searched Estates by State - December
06/Jan/2026 | OpenLot.com.au
Display Homes Near Me (WA): Your Complete Guide to Display Villages Across Western Australia
Finding the right display home in Western Australia has never been easier...