Lot 4: Mapleton 30 @ Red Gum Views Estate - Yea VIC 3717

Set amongst the scenic hills of Yea, Red Gum Views is in the most desired location of this thriving town.

Red Gum Views is offering stunning lifestyle blocks only a stone’s throw from the vibrant community of Yea. These rare blocks have all the amenities you need at your fingertips, including reputable schools, hospitals, a dentist, ample retail options and a myriad of dining choices.

All blocks will enjoy all town services available including water, electricity, sewer and telecommunications.

The Mapleton 30 from Metricon includes:
Lifetime Structural guarantee
7-star energy rating
Double glazed windows & sliding doors
PV solar system
2700mm high ceilings
Floor coverings throughout
Ducted heating & reverse cycle cooling
20mm zenith stone benchtops to kitchen
20mm zenith stone benchtops to bathrooms
2340 flush panel doors (Excludes robe doors)
900mm Kitchen Appliances
Dishwasher
Driveway (Up to 35m2)
Bushfire Upgrades

Contact the Sales Team today on 1300 739 638 today to secure your future at Red Gum Views.

*When you contact the number in this listing, your number, enquiry, call duration and time will be collected on behalf of realestate.com.au and provided to Core Projects Pty Ltd (Core Projects) to respond to your enquiry. For further details, see our Privacy Policy.

Prices are subject to change without notice and are exclusive of GST. Dates for Titles are estimated only and are subject to change. While every care is taken in preparing this listing, Core Projects makes no representations or warranties as to the currency or accuracy of the information which is subject to change at any time. The recipient must make its own independent enquiries to verify the content of this document. Core Projects will not be liable for any reliance the recipient makes on the content.
Metricon Homes
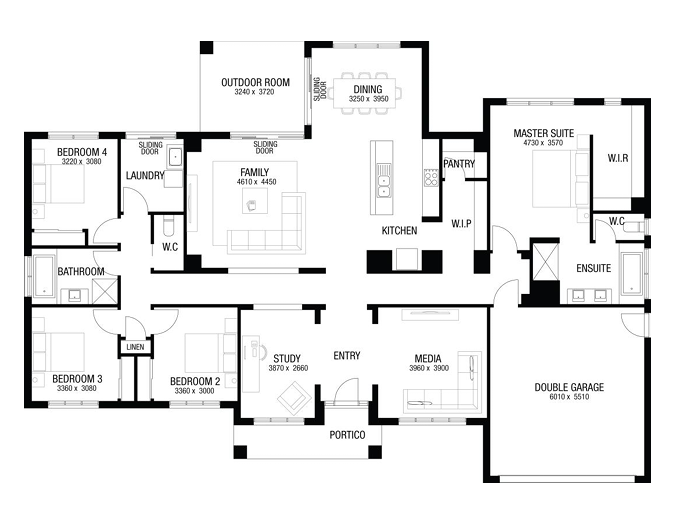
Lot 4: Mapleton 30 Available
Bed  4 Bath  2 Car  2
Home Design: Mapleton 30
Land Size: 4,282.00m²
Floor Area: 30sq
Price: $950,480

Development Info of Red Gum Views Estate - Yea

Total new homes 49
Area size 38.00 hectares
City council Murrindindi Shire Council
Developer TW Projects
Project marketer Core Projects
Creative agency Three Names Creative
Distance to Melbourne CBD - 77 km north-east

Location & Map for Red Gum Views Estate - Yea

Loading...

More House and Land Packages in Red Gum Views Estate - Yea

Bed  4 Bath  2 Car  2
Land Size: 4,083.00m²
Floor Area: 32.23sq
Set amongst the scenic hills of Yea, Red Gum Views is in the most desired location of this thriving town.

Red Gum Views is offering stunning lifestyle blocks only a stone’s throw from the vibrant community of Yea. These rare blocks have all the amenities you need at your fingertips, including reputable schools, hospitals, a dentist, ample retail options and a myriad of dining choices.

All blocks will enjoy all town services available including water, electricity, sewer and telecommunications.

This JG King "Delta 32” House and Land Package includes:

• Truecore Steel House Frame
• Colorbond Steel Roof (with Sarking)
• High Performance (uPVC) Double Glazed Safety Glass Windows & Doors
• 7 Star Energy Efficient to all orientations
• 7 x 440w Panels & 3KW Inverter (single phase)
• Bushfire Compliance to BAL 12.5
• 50 Year Structural Guarantee
• 2550mm Ceiling Heights
• Stone Benchtops to Kitchen
• 900mm Rangehood & Upright Cooker
• 2700mm Ceiling Height
• 900mm Appliances
• All Electric
• Big 40th Birthday Sale
• Downlight Allowance
• Laminate Flooring & Carpet Throughout

Contact the Sales Team today on 1300 739 638 today to secure your future at Red Gum Views.

*When you contact the number in this listing, your number, enquiry, call duration and time will be collected on behalf of realestate.com.au and provided to Core Projects Pty Ltd (Core Projects) to respond to your enquiry. For further details, see our Privacy Policy.

Prices are subject to change without notice and are exclusive of GST. Dates for Titles are estimated only and are subject to change. While every care is taken in preparing this listing, Core Projects makes no representations or warranties as to the currency or accuracy of the information which is subject to change at any time.
Price: $919,035
Bed  4 Bath  2 Car  2
Land Size: 4,117.00m²
Floor Area: 36sq
Set amongst the scenic hills of Yea, Red Gum Views is in the most desired location of this thriving town.

Red Gum Views is offering stunning lifestyle blocks only a stone’s throw from the vibrant community of Yea. These rare blocks have all the amenities you need at your fingertips, including reputable schools, hospitals, a dentist, ample retail options and a myriad of dining choices.

All blocks will enjoy all town services available including water, electricity, sewer and telecommunications.

The Mapleton 36 from Metricon includes:
Lifetime Structural guarantee
7-star energy rating
Double glazed windows & sliding doors
PV solar system
2700mm high ceilings
Floor coverings throughout
Ducted heating & reverse cycle cooling
20mm zenith stone benchtops to kitchen
20mm zenith stone benchtops to bathrooms
2340 flush panel doors (Excludes robe doors)
900mm Kitchen Appliances
Dishwasher
Driveway (Up to 35m2)
Bushfire Upgrades

Contact the Sales Team today on 1300 739 638 today to secure your future at Red Gum Views.

*When you contact the number in this listing, your number, enquiry, call duration and time will be collected on behalf of realestate.com.au and provided to Core Projects Pty Ltd (Core Projects) to respond to your enquiry. For further details, see our Privacy Policy.

Prices are subject to change without notice and are exclusive of GST. Dates for Titles are estimated only and are subject to change. While every care is taken in preparing this listing, Core Projects makes no representations or warranties as to the currency or accuracy of the information which is subject to change at any time. The recipient must make its own independent enquiries to verify the content of this document. Core Projects will not be liable for any reliance the recipient makes on the content.
Price: $1,054,480
Bed  4 Bath  2 Car  2
Land Size: 5,164.00m²
Set amongst the scenic hills of Yea, Red Gum Views is in the most desired location of this thriving town.

Red Gum Views is offering stunning lifestyle blocks only a stone’s throw from the vibrant community of Yea. These rare blocks have all the amenities you need at your fingertips, including reputable schools, hospitals, a dentist, ample retail options and a myriad of dining choices.

All blocks will enjoy all town services available including water, electricity, sewer and telecommunications.

This Montville 327 from G.J Gardner includes:

+ Double Glazed windows and sliding doors
+ 2.5 Ceiling heights, LED Down Lights, Data Point, TV point, NBN
Cabinet
+ Caesarstone Benchtops to Kitchen & Bathrooms with soft close
laminate doors & draws
+ Local Trades and Local Suppliers

Contact the Sales Team today on 1300 739 638 today to secure your future at Red Gum Views.

*When you contact the number in this listing, your number, enquiry, call duration and time will be collected on behalf of realestate.com.au and provided to Core Projects Pty Ltd (Core Projects) to respond to your enquiry. For further details, see our Privacy Policy.

Prices are subject to change without notice and are exclusive of GST. Dates for Titles are estimated only and are subject to change. While every care is taken in preparing this listing, Core Projects makes no representations or warranties as to the currency or accuracy of the information which is subject to change at any time.
Price: $1,356,314

More House and Land Packages by Metricon Homes (Home Builder)

Bed  4 Bath  2 Car  2
Land Size: 2,000.00m²
Floor Area: 343sq
More Home for Less
At Metricon, we understand that great design is the sum of many parts, and for over 47 years, our mission has been to create homes where you truly love to live.
From the moment you step inside, you can’t help but be impressed by the sleek modern design and wide-open, light-filled spaces of our 7 -Star energy efficient home.
We build beautiful and sustainable designed homes without the architect-designed price, our package includes:

• Lifetime Structural guarantee
• 7-star energy rating
• Double glazed windows & sliding doors
• PV solar system
• 2550mm Ceilings
• Floor Coverings Throughout
• Ducted Heating & Evaporative cooling
• 20mm zenith stone benchtops to kitchen
• 20mm zenith stone benchtops to bathrooms
• BAL 12.5 bushfire requirements
• 900mm Kitchen Appliances
• Dishwasher
• Driveway (Up to 35m2)

At Metricon, we aim to provide you with innovative yet practical home designs that are designed to grow with your family's requirements well into the future. Since 1976, our design philosophy has remained the same - to design stunning homes where you'd love to live and which celebrate the diversity of Australian family life.

*Price excludes upgrade items above standard specification such as feature render and bricks, front entrance timber decking, front entry door, brick infills above garage, external lighting, fencing, concrete paths and driveway. Facade Image may also contain items not supplied by Metricon, namely landscaping and planter boxes. Aluminium double glazed windows are subject to specific home design, refer to plans.
Floorplan may not reflect developer guidelines and depicts the base Facade.
Package is correct at time of publication, availability, images, inclusions and prices are subject to change due to circumstances that may affect the price as set out in the building contract (including the land registration date not being met), changes in local, state or federal government laws and developer approval.Land is supplied by developer,land prices and availability are subject to change without notice.Advertised Package Price is based on Metricon's Freedom standard inclusions, any additional inclusions listed, Metricon's preferred siting of the home and the expected land titling date as notified by the developer and is subject to Metricon's price hold expiry date by which the owner must include essential information to Metricon to commence construction, including land title. Package price excludes customer account opening fees, stamp duty on land, legal fees and conveyancing costs including titles and property report. Typical site costs allowance is included in the price, additional site costs may apply if site survey and soil tests indicate footings and site works different to those expected for the location. Additional costs may incur if there are bushfire, wind rating or acoustic requirements. For more information on pricing and inclusions please speak with a Metricon New Home Advisor.
Newfield Real Estate Pty Ltd ACN 159 312 722, Licence number 028051L. VIC Builder's Licence: CDB-U 52967
#For details on our Lifetime structural guarantee and other terms and conditions visit www.metricon.com.au/terms-and-conditions
Price: $843,715
Bed  4 Bath  2 Car  2
Land Size: 392.00m²
Floor Area: 209sq
Fixed Price Home & Land. More Home for Less
AMIRA 22, KINGSTON FAÇADE, LOT 61520 SHEEP STREET, BEVERIDGE, CLOVERTON

If you're an eligible first home buyer, then you can apply for the First Home Owners' Grant, which is $10,000<, to this home and land package. At Metricon, we've helped thousands of first home buyers realise their new home dreams, and we can help you too.
At Metricon, we understand that great design is the sum of many parts, and for over 47 years, our mission has been to create homes where you truly love to live.
From the moment you step inside, you can't help but be impressed by the sleek modern design and wide-open, light-filled spaces of our 7 -Star energy efficient home.

• FREE Fully rendered home
• FREE Steel COLORBOND® roof
• FREE Refrigerated cooling
• FREE $5k spend on Studio upgrades
• 7 star energy rating
• Fixed site costs (no more to pay)
• Quality tiles to bathrooms, ensuite and laundry
• Tiled shower base
• Stylish stainless steel appliances
• Aluminium double glazed windows
• All electric home
• Lifetime Structural Guarantee#
• PLUS so much more!
Cloverton in Kalkallo stands as a vast, master-planned community, blending urban convenience with natural landscapes.

At Metricon, we aim to provide you with innovative yet practical home designs that are designed to grow with your family's requirements well into the future. Since 1976, our design philosophy has remained the same - to design stunning homes where you'd love to live and which celebrate the diversity of Australian family life.

*Price excludes upgrade items above standard specification such as feature render and bricks, front entrance timber decking, front entry door, brick infills above garage, external lighting, fencing, concrete paths and driveway. Facade Image may also contain items not supplied by Metricon, namely landscaping and planter boxes. Aluminium double glazed windows are subject to specific home design, refer to plans.
Floorplan may not reflect developer guidelines and depicts the base Facade.
Package is correct at time of publication, availability, images, inclusions and prices are subject to change due to circumstances that may affect the price as set out in the building contract (including the land registration date not being met), changes in local, state or federal government laws and developer approval.Land is supplied by developer,land prices and availability are subject to change without notice.Advertised Package Price is based on Metricon's Freedom standard inclusions, any additional inclusions listed, Metricon's preferred siting of the home and the expected land titling date as notified by the developer and is subject to Metricon's price hold expiry date by which the owner must include essential information to Metricon to commence construction, including land title. Package price excludes customer account opening fees, stamp duty on land, legal fees and conveyancing costs including titles and property report. For more information on pricing and inclusions please speak with a Metricon New Home Advisor.
Newfield Real Estate Pty Ltd ACN 159 312 722, Licence number 028051L. VIC Builder's Licence: CDB-U 52967
#For details on our Lifetime structural guarantee and other terms and conditions visit www.metricon.com.au/terms-and-conditions
<State government conditions and eligibility criteria will apply. To see if you qualify visit www.sro.vic.gov.au/first-home-owner.
Price: $753,848
Bed  4 Bath  2 Car  2
Land Size: 350.00m²
Floor Area: 180sq
Fixed Price Home & Land. More Home for Less
CARLIN 19A, EDISON FAÇADE, LOT 3059 SLIDER ROAD, MICKLEHAM 3064, BOTANICAL

If you're an eligible first home buyer, then you can apply for the First Home Owners' Grant, which is $10,000<, to this home and land package. At Metricon, we've helped thousands of first home buyers realise their new home dreams, and we can help you too.
At Metricon, we understand that great design is the sum of many parts, and for over 47 years, our mission has been to create homes where you truly love to live.
From the moment you step inside, you can't help but be impressed by the sleek modern design and wide-open, light-filled spaces of our 7 -Star energy efficient home.

• SAVE thousands on your new home
• BONUS Fully rendered home#
• BONUS roof made with COLORBOND® steel#
• BONUS Refrigerated cooling#
• BONUS Solar & Battery pack#
• 7 star energy rating
• Fixed site costs (no more to pay)
• Quality tiles to bathrooms, ensuite and laundry
• Tiled shower base
• Stylish stainless steel appliances
• Aluminium double glazed windows
• Lifetime Structural Guarantee#
• PLUS so much more!

Botanical in Mickleham offers a serene community, featuring lush gardens and open spaces perfect for families looking for tranquility
{
• SAVE thousands on your new home
• BONUS Fully rendered home#
• BONUS roof made with COLORBOND® steel#
• BONUS Refrigerated cooling#
• BONUS Solar & Battery pack#
• 7 star energy rating
• Fixed site costs (no more to pay)
• Quality tiles to bathrooms, ensuite and laundry
• Tiled shower base
• Stylish stainless steel appliances
• Aluminium double glazed windows
• Lifetime Structural Guarantee#
• PLUS so much more!


At Metricon, we aim to provide you with innovative yet practical home designs that are designed to grow with your family's requirements well into the future. Since 1976, our design philosophy has remained the same - to design stunning homes where you'd love to live and which celebrate the diversity of Australian family life.

*Price excludes upgrade items above standard specification such as feature render and bricks, front entrance timber decking, front entry door, brick infills above garage, external lighting, fencing, concrete paths and driveway. Facade Image may also contain items not supplied by Metricon, namely landscaping and planter boxes. Aluminium double glazed windows are subject to specific home design, refer to plans.
Floorplan may not reflect developer guidelines and depicts the base Facade.
Package is correct at time of publication, availability, images, inclusions and prices are subject to change due to circumstances that may affect the price as set out in the building contract (including the land registration date not being met), changes in local, state or federal government laws and developer approval.Land is supplied by developer,land prices and availability are subject to change without notice.Advertised Package Price is based on Metricon's Freedom standard inclusions, any additional inclusions listed, Metricon's preferred siting of the home and the expected land titling date as notified by the developer and is subject to Metricon's price hold expiry date by which the owner must include essential information to Metricon to commence construction, including land title. Package price excludes customer account opening fees, stamp duty on land, legal fees and conveyancing costs including titles and property report. For more information on pricing and inclusions please speak with a Metricon New Home Advisor.
Newfield Real Estate Pty Ltd ACN 159 312 722, Licence number 028051L. VIC Builder's Licence: CDB-U 52967
#For details on our Lifetime structural guarantee and other terms and conditions visit www.metricon.com.au/terms-and-conditions
<State government conditions and eligibility criteria will apply. To see if you qualify visit www.sro.vic.gov.au/first-home-owner.
Price: $753,483

Land Price Trend in Yea VIC 3717

  • In Jul - Sep 23, the median price for vacant land in Yea VIC 3717 was $275,300. *
  • From Oct - Dec 17 to Jul - Sep 23, the median price for vacant land in Yea VIC 3717 has increased 69.42%. *
  • From 2008 to 2024, the median price for vacant land in Yea VIC 3717 has increased 439.47%. *
* Price data comes from Valuer-General Victoria on 05/06/25

Vacancy Rate in Yea VIC 3717

View full vacancy rate history in Yea VIC 3717 via SQM Research.


Schools near Red Gum Views Estate - Yea

Here are 6 schools near Red Gum Views Estate - Yea:

Lot 4: Mapleton 30 by Metricon Homes
Red Gum Views Estate - Yea