Stockland Banksia - Armstrong Creek Logo

Lot 853: Gordon 24 @ Stockland Banksia - Armstrong Creek VIC 3217

Build Ready Lot

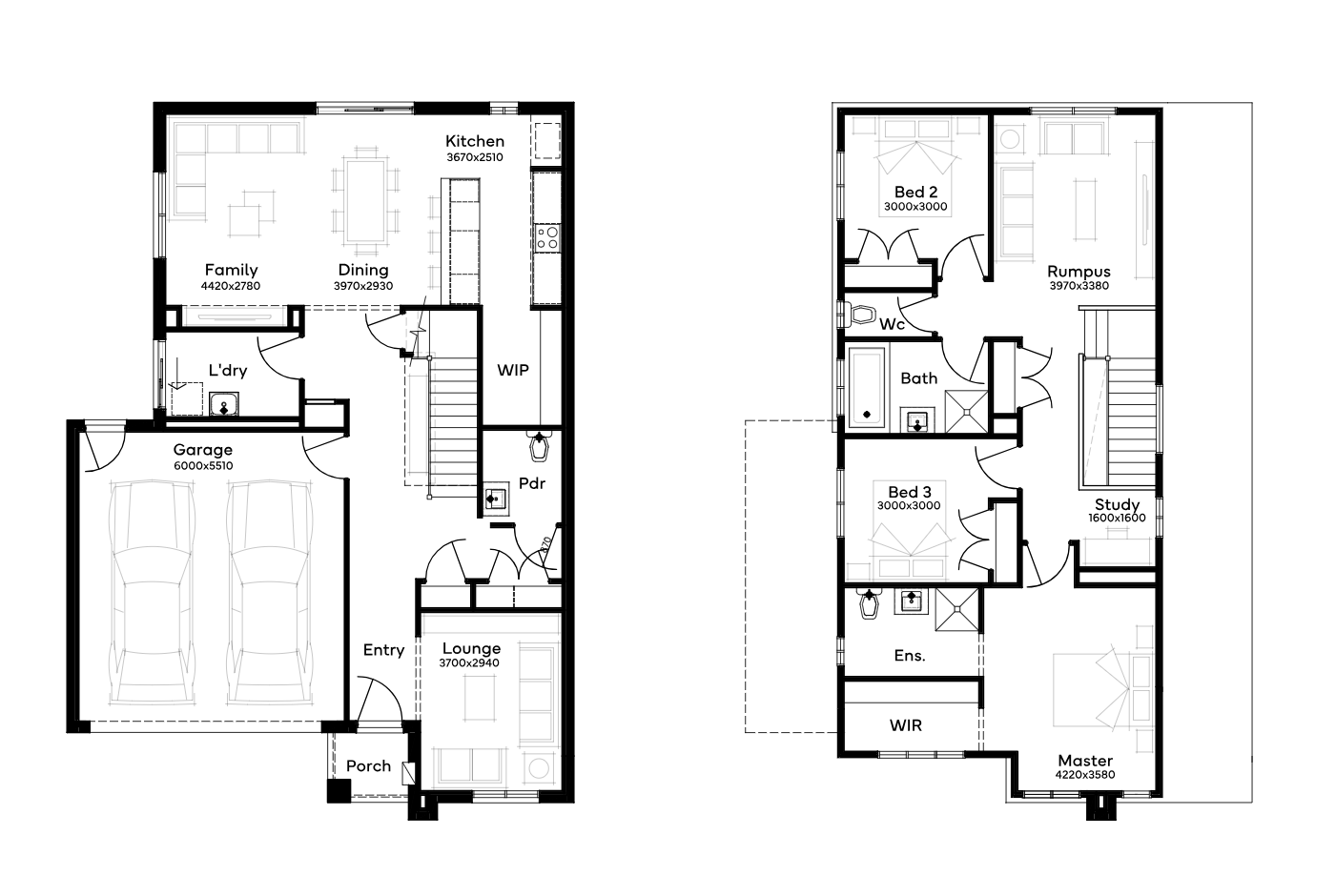
The Gordon 24, a 3-bedroom, 3-bathroom home with a 2-car garage, caters to a 10.5m+ block over double-storeys. The floor plan features a central passage that opens into a shared living area with a sleek kitchen, dining, and family areas. Sliding doors connect to the garden, enhancing light and airflow. Upstairs, the luxurious master suite, a study, two additional bedrooms, a rumpus room, and a central bathroom complete this family-oriented design.

Builder Inclusions
20mm Caesarstone arris edge benchtop in Builders range of colours. Benchtop into window subject to kitchen design
600mm stainless steel electric underbench oven and gas cooktop
Floor coverings to entire house
Colorbond Sectional garage door & remote controls
Ducted Heating

Stockland Banksia will consist of approximately 500 lots that will inspire authentic, simple and sustainable living, so that you can live life, as you like it. Well connected to Geelong CBD, the Bellarine Peninsula and the Surf Coast, with transport links to Melbourne, this thriving suburb is also surrounded by beautiful beaches, hiking tracks, wineries, stylish cafes and plenty more.

A scenic waterway also runs through the community creating a natural space and fitness trail for families to walk, cycle and connect with nature.

About the Developer - The Stockland Story

Delivered by Stockland, Australia’s largest diversified property group for 70 years, you can rest assured that the future of this thriving new community is in good hands.

Our purpose - a better way to live - is central to everything we do.

*Price correct at time of publication and is subject to change without notice or obligation. Applies to selected House & Land Package only. Subject to availability. Stockland is only responsible for the sale of the land. Price is based on the Builder’s standard plans and specifications, standard inclusions and preferred building surveyor. Price does not include stamp duty, registration fees, additional costs that may be incurred under the Building Contract (e.g. due to delays in titling the lot) or any other incidental fees associated with the acquisition of land or a home or the construction of a home. The images on this web page are for illustrative purposes only and may depict features (such as landscaping, fencing and faƧade elements), items or inclusions which are excluded from the price. For more information, speak to a Stockland Sales Professional.
Simonds Homes
8: Lot 853 Bluewater Drive: Gordon 24 Available
Bed  3 Bath  2 Car  2
Home Design: Gordon 24
Land Size: 533.00m²
Floor Area: 224.7m²
Orientation: East
Price: $815,104 *

Development Info of Stockland Banksia - Armstrong Creek

Total new homes 500
Area size 30.60 hectares
Growth Region Greater Geelong Growth Areas
City council City Of Greater Geelong
Developer Stockland
Distance to Geelong CBD - 8 km south Melbourne CBD - 70 km south-west

Location & Map for Stockland Banksia - Armstrong Creek

Loading...

More House and Land Packages in Stockland Banksia - Armstrong Creek

Bed  3 Bath  2 Car  2
Land Size: 476.00m²
Floor Area: 226.25m²
Orientation: West
Build Ready Lot
The Vasse 24, featuring 3 bedrooms and 3 bathrooms with a 2-car garage over double-storeys, is designed for a 12.5m+ block. The front sitting room and study provide peaceful escapes, while the kitchen, dining, and living areas form the vibrant hub of the home. Upstairs, the spacious master bedroom with an ensuite and walk-in robe overlooks the street, offering a serene haven. The additional bedrooms with walk-in robes are thoughtfully designed, especially for families with teenagers or tenants.

Builder Inclusions
20mm Caesarstone arris edge benchtop in Builders range of colours. Benchtop into window subject to kitchen design
Floor coverings to entire house
Colorbond Sectional garage door & remote controls
Ducted Heating

Stockland Banksia will consist of approximately 500 lots that will inspire authentic, simple and sustainable living, so that you can live life, as you like it. Well connected to Geelong CBD, the Bellarine Peninsula and the Surf Coast, with transport links to Melbourne, this thriving suburb is also surrounded by beautiful beaches, hiking tracks, wineries, stylish cafes and plenty more.

A scenic waterway also runs through the community creating a natural space and fitness trail for families to walk, cycle and connect with nature.

About the Developer - The Stockland Story

Delivered by Stockland, Australia’s largest diversified property group for 70 years, you can rest assured that the future of this thriving new community is in good hands.

Our purpose - a better way to live - is central to everything we do.

*Price correct at time of publication and is subject to change without notice or obligation. Applies to selected House & Land Package only. Subject to availability. Stockland is only responsible for the sale of the land. Price is based on the Builder’s standard plans and specifications, standard inclusions and preferred building surveyor. Price does not include stamp duty, registration fees, additional costs that may be incurred under the Building Contract (e.g. due to delays in titling the lot) or any other incidental fees associated with the acquisition of land or a home or the construction of a home. The images on this web page are for illustrative purposes only and may depict features (such as landscaping, fencing and faƧade elements), items or inclusions which are excluded from the price. For more information, speak to a Stockland Sales Professional.
Price: $851,369 *
Bed  5 Bath  4 Car  2
Land Size: 400.00m²
Floor Area: 383m²
The Granada is the perfect family home, offering four separate living areas, open-plan kitchen and living zone and luxurious master suite complete with huge walk-in robe and grand ensuite. You will love coming home to the Granada.

Builder Inclusions
Fixed price site costs and connections
Developer and council requirements
20mm Caesarstone to kitchen benchtop
Westinghouse kitchen appliances
Clear glass splashback or tiles to kitchen

Life at Banksia places you within minutes of the Geelong CBD and the iconic Surf Coast with established retail, dining, wineries, public transport and more on your doorstep. You can truly have the best of both worlds at Banksia.

Stockland Banksia will consist of approximately 500 lots that will inspire authentic, simple and sustainable living, so that you can live life, as you like it. There is also an onsite future childcare centre planned for the community, as well as a beautiful waterway reserve running through the community with shared walking paths and native landscaping design. Even the streets are named after the local flora!

---
*Price correct at time of publication and is subject to change without notice or obligation. Applies to selected House and Land Package only. Subject to availability. Stockland is only responsible for the sale of the land. Price is based on the Builder's standard plans and specifications, standard inclusions and preferred building surveyor. Price does not include stamp duty, registration fees, additional costs that may be incurred under the Building Contract (e.g. due to delays in titling the lot) or any other incidental fees associated with the acquisition of land or a home or the construction of a home. The images on this web page are for illustrative purposes only and may depict features (such as landscaping, fencing and facade elements), items or inclusions which are excluded from the price. For more information, speak to a Stockland Sales Professional.
Price: $947,386 *
Bed  4 Bath  3 Car  2
Land Size: 400.00m²
Floor Area: 287.99m²
Orientation: North
Build Ready Lot
The Mayfield effortlessly captures attention with its stunning and stylish design, an ideal double storey floorplan. The ground floor hosts a family room, open plan kitchen, meals area, and a dedicated study room, showcasing thoughtful design and flexibility for modern family living. The Mayfield ensures an accommodating, comfortable, and inviting atmosphere for every family member and guest.

Builder Inclusions
Up to 5.0kw solar PV system and Inverter
2590mm ceilings to ground floor
20mm Quantum Zero Benchtops to Kitchen, Ensuite, Bathroom and Powder Room
Downlights to Entry, Kitchen, Family and Meals
900mm Upright Stainless Steel oven and cooktop
Choice of Laminate or Tiled flooring to Entry, Kitchen, Family and Meals.
Carpet to the remaining areas

Life at Banksia places you within minutes of the Geelong CBD and the iconic Surf Coast with established retail, dining, wineries, public transport and more on your doorstep. You can truly have the best of both worlds at Banksia.

Stockland Banksia will consist of approximately 500 lots that will inspire authentic, simple and sustainable living, so that you can live life, as you like it. There is also an onsite future childcare centre planned for the community, as well as a beautiful waterway reserve running through the community with shared walking paths and native landscaping design. Even the streets are named after the local flora!

---
*Price correct at time of publication and is subject to change without notice or obligation. Applies to selected House and Land Package only. Subject to availability. Stockland is only responsible for the sale of the land. Price is based on the Builder's standard plans and specifications, standard inclusions and preferred building surveyor. Price does not include stamp duty, registration fees, additional costs that may be incurred under the Building Contract (e.g. due to delays in titling the lot) or any other incidental fees associated with the acquisition of land or a home or the construction of a home. The images on this web page are for illustrative purposes only and may depict features (such as landscaping, fencing and facade elements), items or inclusions which are excluded from the price. For more information, speak to a Stockland Sales Professional.
Price: $834,887 *

More House and Land Packages by Simonds Homes (Home Builder)


Land Price Trend in Armstrong Creek VIC 3217

  • In Oct - Dec 24, the median price for vacant land in Armstrong Creek VIC 3217 was $315,000. *
  • From Oct - Dec 17 to Oct - Dec 24, the median price for vacant land in Armstrong Creek VIC 3217 has increased 51.81%. *
  • From 2010 to 2024, the median price for vacant land in Armstrong Creek VIC 3217 has increased 100.28%. *
* Price data comes from Valuer-General Victoria on 05/06/25

Vacancy Rate in Armstrong Creek VIC 3217

View full vacancy rate history in Armstrong Creek VIC 3217 via SQM Research.


Schools near Stockland Banksia - Armstrong Creek

Here are 6 schools near Stockland Banksia - Armstrong Creek:

Lot 853: Gordon 24 by Simonds Homes
Stockland Banksia - Armstrong Creek