Taylors Rise Estate - Deanside Logo
North-Facing 5-Bedroom G.J. Gardner Home – Perfect for Family Living & Entertaining.

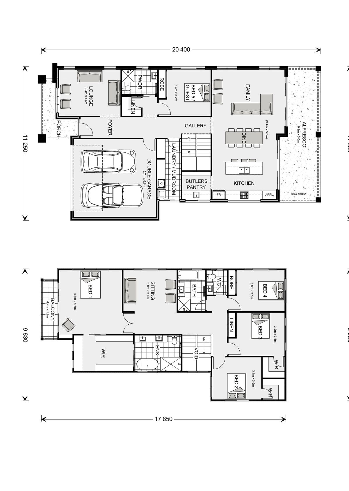
Designed for modern family living, this beautiful 5-bedroom G.J. Gardner home sits on a 451m² north-facing lot with a 14.01m frontage and 32m depth, offering space, style, and turnkey convenience. Set within the heart of Caroline Springs, this home provides the perfect blend of comfort, functionality, and elegance, ideal for families and those who love to entertain.

Enjoy the nearby parks, peaceful walking trails, and a planned new school and sports reserve within the estate. Just a short drive away, the established communities of Caroline Springs and Taylors Hill provide a wealth of shopping, dining, and recreational options.

Everything you need is within easy reach, including high-quality childcare, schools, retail, and dining, with reliable public transport connections via bus routes and nearby train stations. Located just five minutes from Caroline Springs and Taylors Hill shopping centres, this home offers an unmatched combination of convenience, lifestyle, and family-friendly living.

Whether it’s hosting friends, enjoying time with family, or exploring the local area, this home is the perfect place to create your next chapter.
G.J. Gardner Homes
1B: Lot 152 Aille Lane Available
Bed  5 Bath  3 Car  2
Land Size: 451.00m²
Floor Area: 340m²
Price: $1,246,835

Development Info of Taylors Rise Estate - Deanside

Total new homes 921
Area size 64.00 hectares
Growth Region Melbourne West Growth Corridor
City council Melton City Council
Developer Lawport Property Group
Project marketer Latitude Real Estate
Creative agency Tomorrow Agency
Distance to Melbourne Airport - 12 km south-west Melbourne CBD - 23 km north-west

Location & Map for Taylors Rise Estate - Deanside

Loading...

Visit Display Homes near Taylors Rise Estate - Deanside


More House and Land Packages in Taylors Rise Estate - Deanside

Bed  4 Bath  2 Car  2
Builder: Orbit Homes
Land Size: 448.00m²
Floor Area: 28sq
Orientation: North
Contemporary Family Living – Stylish 4-Bedroom Orbit Home on a Prime North-Facing Block.

Set on a generous 448m² north-facing allotment with a 14-metre frontage and 32-metre depth, this beautifully designed four-bedroom Orbit Home offers a perfect combination of modern style, functional living, and lifestyle convenience. Located in the heart of the sought-after Taylors Rise estate, this home is ideal for families and buyers seeking space, comfort, and connection to nature and community.

With quality finishes and a practical, light-filled layout, this home delivers effortless living across multiple zones. Whether you’re entertaining, relaxing, or spending quality time with family, the design caters to every need, offering a seamless flow between indoor and outdoor spaces.

Surrounded by established amenities, the home is just moments from green open spaces, peaceful walking trails, and a future planned school and sports reserve. You’re also just a short drive from Caroline Springs and Taylors Hill, where an abundance of shopping, dining, and entertainment options await.

Families will love the close proximity to quality childcare centres and reputable schools, while commuters will appreciate the easy access to public transport, including local bus routes and nearby train stations. Everything you need is within reach, making daily life convenient and stress-free.

Only five minutes from Taylors Hill and Caroline Springs shopping centres, this home delivers the perfect balance of relaxed suburban living and urban convenience. Whether you're upsizing, relocating, or looking to secure your place in one of Melbourne's fastest-growing communities, this Orbit Home in Taylors Rise ticks every box.
Price: $942,723
Bed  4 Bath  2 Car  2
Land Size: 448.00m²
Floor Area: 20sq
Orientation: North
Modern Comfort Meets Lifestyle Convenience – Stunning 4-Bedroom Madison Home in Taylors Rise.

Situated on a spacious 448m² north-facing lot with a 14m frontage and 32m depth, this beautifully designed four-bedroom residence by Madison Property offers the perfect balance of style, space, and serenity. Located in the highly sought-after Taylors Rise estate, this home is ideal for families and those looking to enjoy elegant, low-maintenance living in a peaceful yet connected community.

Step inside and experience quality craftsmanship, a well-thought-out floorplan, and sunlit interiors that create a warm and welcoming atmosphere. Whether you're relaxing with family or entertaining friends, this home delivers on both comfort and functionality.

Set within a growing estate surrounded by established amenities, you’ll enjoy access to nearby parks, peaceful walking trails, and the exciting future addition of a local school and sports reserve. Just a short drive away, Caroline Springs and Taylors Hill provide a vibrant mix of shopping, dining, and leisure options.

With high-quality childcare and schools close by, along with reliable public transport—including bus services and nearby train stations—everything you need is within easy reach. Whether it’s a quick commute or a weekend outing, life here is simple and stress-free.

Only five minutes from Caroline Springs and Taylors Hill shopping centres, this is your chance to secure a modern family home in one of the west’s most promising and well-connected neighbourhoods. Taylors Rise offers more than just a place to live—it’s a lifestyle waiting to be enjoyed.
Price: $837,600
Bed  4 Bath  2 Car  2
Land Size: 448.00m²
Floor Area: 24sq
Orientation: North
Elegant Family Living – 4-Bedroom Grand Design Home on a Prime North-Facing Block.

Set on a generous 448m² north-facing lot with a wide 14m frontage and 32m depth, this beautifully crafted four-bedroom home by Grand Design Melbourne Group offers timeless appeal, thoughtful design, and a lifestyle of comfort and convenience. Positioned in the heart of the sought-after Taylors Rise estate, this is the perfect setting for families or those looking to enjoy a refined, low-maintenance lifestyle in a peaceful and well-connected neighbourhood.

From the moment you arrive, the home exudes quality and sophistication, with spacious living areas, abundant natural light, and premium finishes throughout. Designed for modern family living, the layout provides the perfect balance of open-plan spaces and private retreats, making everyday living and entertaining effortless.

Surrounded by established amenities, you'll enjoy the tranquillity of nearby parks and walking trails, along with the future benefit of a planned new school and sports reserve within the estate. Just minutes away, the vibrant communities of Caroline Springs and Taylors Hill provide a wealth of shopping, dining, and recreational options to enjoy.

Families will appreciate the easy access to quality childcare and schools, while public transport options—including local bus routes and nearby train stations—make commuting simple and efficient.

Only five minutes from Caroline Springs and Taylors Hill shopping centres, this home delivers the ideal mix of suburban peace and urban convenience. Whether you're starting a new chapter or upgrading your lifestyle, this stunning Grand Design home is an opportunity not to be missed.
Price: $818,900

More House and Land Packages by G.J. Gardner Homes (Home Builder)

Bed  3 Bath  2 Car  2
Suburb: Darley VIC 3340
Land Size: 398.00m²
Floor Area: 176m²
With the beauty of the natural landscape as a backdrop, Darley balances town and country, busy and quiet, and modern living with proud history. Big backyards, friendly neighbours and a lively local area give Darley its warm atmosphere and unique, family-friendly lifestyle.

Darling Darley offers the best of both worlds – a country town lifestyle just a 45-minute drive from Melbourne's City Centre.

All land at Darling Darley is build ready, making it easier to get into your dream home sooner.

Darling Darley’s location provides residents with the perfect blend of rural charm and city convenience, with close proximity to several schools and only a 10-minute drive to Woodgrove Shopping Centre, with over 170+ major retailers and specialty stores.

The Nova 176 from GJ Gardner Homes includes:
+ Westinghouse Appliances
+ Quality Reece Fittings And Fixtures
+ Flooring Throughout Home
+ Metal Roof As Standard
+ Laminex Cabinetry
+ Ducted Heating

Contact the Sales Team today on 1300 739 638 today to secure your future at Darling Darley.

*When you contact the number in this listing, your number, enquiry, call duration and time will be collected on behalf of realestate.com.au and provided to Core Projects Pty Ltd (Core Projects) to respond to your enquiry. For further details, see our Privacy Policy. Prices are subject to change without notice and are exclusive of GST. Dates for Titles are estimated only and are subject to change. While every care is taken in preparing this listing, Core Projects makes no representations or warranties as to the currency or accuracy of the information which is subject to change at any time. The recipient must make its own independent enquiries to verify the content of this document. Core Projects will not be liable for any reliance the recipient makes on the content.
Price: $613,279
Bed  3 Bath  2 Car  1
Suburb: Darley VIC 3340
Land Size: 391.00m²
Floor Area: 150m²
With the beauty of the natural landscape as a backdrop, Darley balances town and country, busy and quiet, and modern living with proud history. Big backyards, friendly neighbours and a lively local area give Darley its warm atmosphere and unique, family-friendly lifestyle.

Darling Darley offers the best of both worlds – a country town lifestyle just a 45-minute drive from Melbourne's City Centre.

All land at Darling Darley is build ready, making it easier to get into your dream home sooner.

Darling Darley’s location provides residents with the perfect blend of rural charm and city convenience, with close proximity to several schools and only a 10-minute drive to Woodgrove Shopping Centre, with over 170+ major retailers and specialty stores.

The Amandari 150 from GJ Gardner Homes includes:
+ Westinghouse Appliances
+ Quality Reece Fittings And Fixtures
+ Flooring Throughout Home
+ Metal Roof As Standard
+ Laminex Cabinetry
+ Ducted Heating

Contact the Sales Team today on 1300 739 638 today to secure your future at Darling Darley.

*When you contact the number in this listing, your number, enquiry, call duration and time will be collected on behalf of realestate.com.au and provided to Core Projects Pty Ltd (Core Projects) to respond to your enquiry. For further details, see our Privacy Policy. Prices are subject to change without notice and are exclusive of GST. Dates for Titles are estimated only and are subject to change. While every care is taken in preparing this listing, Core Projects makes no representations or warranties as to the currency or accuracy of the information which is subject to change at any time. The recipient must make its own independent enquiries to verify the content of this document. Core Projects will not be liable for any reliance the recipient makes on the content.
Price: $570,476

Land Price Trend in Deanside VIC 3336

  • In Oct - Dec 24, the median price for vacant land in Deanside VIC 3336 was $352,500. *
  • From Jul - Sep 19 to Oct - Dec 24, the median price for vacant land in Deanside VIC 3336 has increased 7.96%. *
  • From 2017 to 2024, the median price for vacant land in Deanside VIC 3336 has decreased 0.43%. *
* Price data comes from Valuer-General Victoria on 05/06/25

Vacancy Rate in Deanside VIC 3336

View full vacancy rate history in Deanside VIC 3336 via SQM Research.


Schools near Taylors Rise Estate - Deanside

Here are 6 schools near Taylors Rise Estate - Deanside:

Lot 152: by G.J. Gardner Homes
Taylors Rise Estate - Deanside