Experience elevated townhouse living in this architecturally designed residence at 102–104 White Street, Mordialloc. TH08 spans three beautifully appointed levels, offering the ideal balance of functionality, luxury and style in a boutique development of only 13.

Crafted by award-winning Ewert Leaf Architects and developed by the respected LDS Property, this townhome is tailored for modern living just moments from the coast.

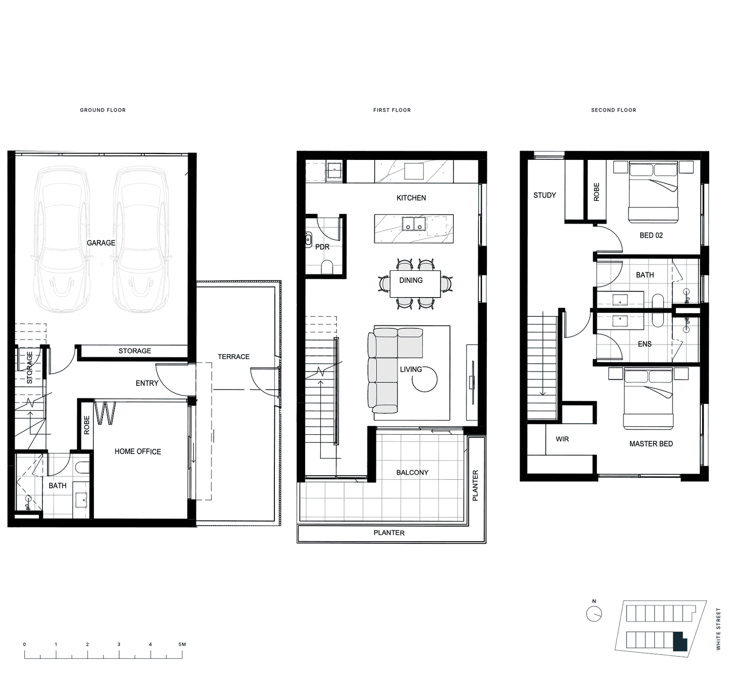
Key Features:
• 3 spacious bedrooms, including a flexible ground floor guest suite or home office
• Dedicated study zone – ideal for working from home
• 3 designer bathrooms including master ensuite and full main bathroom and a powder room
• Light-filled open-plan living and dining area with seamless indoor-outdoor flow
• Gourmet kitchen with island bench and premium Bosch appliances
• Private entertainer’s balcony perfect for morning coffee or evening wine
• Euro laundry and excellent internal storage throughout
• Secure double garage with internal access
• Total area: 226sqm (approx.)
• Boutique development of just 13 residences
• Prime Mordialloc location opposite Woodlands Golf Club and minutes to the beach

This is your opportunity to secure an intelligently designed, low-maintenance home in one of Bayside’s most sought-after pockets.
Lot 8 102-104 White Street Available
Bed  3 Bath  3 Car  2
Floor Area: 226sq

Floor-plan for Lot 8:


Development Info of WM Residences - Mordialloc

Total new homes 13
Area size 0.16 hectares
Growth Region Melbourne South East Growth Corridor
City council Kingston City Council
Developer LDS Property
Project marketer Tomassi & Co
Distance to Melbourne CBD - 24 km south-east Melbourne Airport - 43 km south-east

Location & Map for WM Residences - Mordialloc

Loading...

More Townhouses in WM Residences - Mordialloc

Bed  3 Bath  3 Car  2
Floor Area: 193sq
TH01 | 3-Bedroom Corner Townhouse with Private Street Access
North/West Facing | 193m² of Total Space | 3 Levels | 2-Car Garage

Positioned at the front of the development with exclusive street frontage and its own private pedestrian entrance, TH01 is the signature home in the boutique WM Residences collection — a premium offering of just 13 architect-designed townhomes by Ewert Leaf, delivered by respected developer LDS and proudly built by RISER

This impressive three-level residence is intelligently planned and beautifully appointed, featuring:

Ground Floor
• Private entry from White Street
• Flexible bedroom 3 / study / rumpus room with built-in robe and direct terrace access
• Fully tiled bathroom
• Double lock-up garage with internal access
• Under-stair storage

Level One
• Expansive, open-plan living and dining area
• Designer kitchen with oversized island bench, Bosch appliances,
• Separate laundry and powder room (PDR)
• Sliding doors to north-west facing balcony

Level Two
• Private master suite with walk-in robe and ensuite
• Second bedroom with built-in robe
• Main bathroom with floor-to-ceiling tiling
• Dedicated study nook

Outdoor Areas
• 10m² ground-level terrace — perfect for entertaining or relaxing
• 9m² balcony off the first-floor living area

Every aspect of TH01 has been carefully considered — with zoned living, generous storage, and an abundance of natural light from its corner aspect.

A unique opportunity to own a front-facing, house-like residence in the heart of Mordialloc, moments from the beach, Woodlands Golf Club, local cafés, schools, and transport.

Land Price Trend in Mordialloc VIC 3195

  • In Jan - Mar 22, the median price for vacant land in Mordialloc VIC 3195 was $478,400. *
  • From Oct - Dec 21 to Jan - Mar 22, the median price for vacant land in Mordialloc VIC 3195 has increased 0%. *
  • From 2021 to 2021, the median price for vacant land in Mordialloc VIC 3195 has increased 0%. *
* Price data comes from Valuer-General Victoria on 05/06/25

Vacancy Rate in Mordialloc VIC 3195

View full vacancy rate history in Mordialloc VIC 3195 via SQM Research.


Schools near WM Residences - Mordialloc

Here are 6 schools near WM Residences - Mordialloc:

Lot 8:
WM Residences - Mordialloc