Lot 319 Oaklands Estate by Simonds Homes - Bonnie Brook

A testament to contemporary design, maximising style and space for urban living.

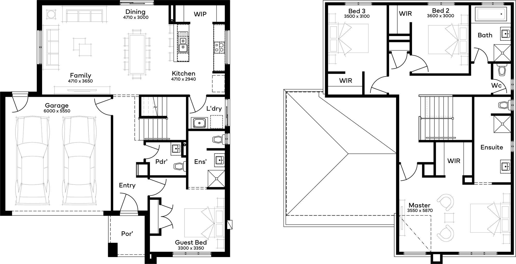
The Jackalope 25, suited for a 14m+ block, features 4 bedrooms and 3 bathrooms with a 2-car garage. The light-filled living zone spans the rear with an entertainer?s kitchen at its core. The home includes a downstairs guest suite, an opulent master bedroom upstairs with a lavish ensuite, and two sizeable family bedrooms. A double garage completes this modern double-storey urban home.
Simonds Homes
Lot 319 Oaklands Estate, Bonnie Brook VIC 3335 Available
Bed  4 Bath  3 Car  2
Land Size: 290.00m²
Frontage: 14m
Floor Area: 25.56sq
Price: $773,207

Floor-plan for Lot 319: by Simonds Homes


Location & Map of Bonnie Brook

Loading...

Visit Display Villages near Bonnie Brook VIC 3335


More House and Land Packages by Simonds Homes (Home Builder)

Bed  3 Bath  2 Car  2
Land Size: 350.00m²
Frontage: 12.5m
Depth: 28m
Floor Area: 19.3sq
Thoughtfully designed for comfort, the Alberta offers modern open-plan family living.
Modern Family Living
From the moment you enter the Alberta, a long hallway guides you into a spacious open-plan living area that forms the heart of the home. With two bedrooms positioned around a central bathroom, a private master suite with an ensuite, and a double garage, the Alberta is thoughtfully designed for comfortable and contemporary family living.

Simonds Fixed Price Home & Land Package

Simonds have been Building Homes Since 1949, and every year, help thousands of Australian's realise their dream of owning a brand new home.

In choosing a builder, we believe that each buyer is looking for the best quality, the best service, and the best price.
Whilst it is impossible to have all three, Simonds have built our Fixed Price reputation on great quality and service, for what is often the largest investment in our clients lives.
As a National Builder with large buying power, our homes are very competitively priced, and most importantly, fantastic value for money.

With the transparency of an itemised quotation, a refundable initial deposit, and a Fixed Price contract at the end of the journey, why not enquire with one of the Simonds Sales team today!

This Attractive House and Land Package Includes:

Fixed price Site Costs
Developer & council requirements
Photovoltaic panels with inverter
Feature front entry door
Colorbond Sectional garage door & remote controls
Floor coverings to entire house
20mm Stone benchtops to kitchen
Quality stainless steel cooktop & oven
Towel Rails & Toilet Roll Holders
800mm Laundry Cabinet
Ducted Heating
Plus much more!


All Fixed Price Home and Land packages are subject to Developer and Council approval and is based on Simonds standard floor plan with preferred siting (without alterations). Package Price does not include stamp duty, government, legal or bank charges. Community Infrastructure Levy and Asset Protection Permit are not included in pricing and is to be arranged by the client directly with the Developer (if applicable). Any alterations may incur additional charges. Confirm land price and availability prior to purchase. Simonds reserves the right to withdraw or amend pricing, inclusions and promotion at any time without notice. Please refer to the terms and conditions at www.simonds.com.au/terms-and-conditions. This package applies to VIC - Aspirations range only. Please speak with your sales consultant for further details. Pricing is current at 16/03/2026.

Facade & Internal images are taken from a similar Simonds display home and are for illustration purposes only. Please talk to your sales consultant for more details
Price: $657,248

Land Price Trend in Bonnie Brook VIC 3335

  • In Oct - Dec 24, the median price for vacant land in Bonnie Brook VIC 3335 was $385,000. *
  • From Jul - Sep 20 to Oct - Dec 24, the median price for vacant land in Bonnie Brook VIC 3335 has increased 22.22%. *
  • From 2020 to 2024, the median price for vacant land in Bonnie Brook VIC 3335 has increased 25.2%. *
* Price data comes from Valuer-General Victoria on 05/06/25

Vacancy Rate in Bonnie Brook VIC 3335

View full vacancy rate history in Bonnie Brook VIC 3335 via SQM Research.


Schools in Bonnie Brook VIC 3335

There are 0 schools registered in on ACARA 2025

Lot 319 Oaklands Estate by Simonds Homes
Oaklands Estate, Bonnie Brook VIC 3335
House & Land: 4 Bed | 3 Bath | 2 Car @ $773,207