
Lloyd by Australian Building Co. (ABC Homes)
DISPLAY HOME
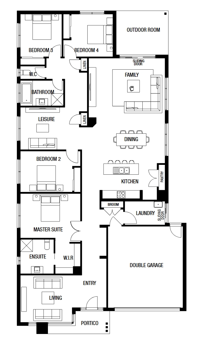
Our most popular home series – The Lloyd, designed for modern day family living! Our Lloyd 29 is not short on space and offers versatility for the growing family. Including 4 large bedrooms, the gorgeous master suite with WIR and ensuite, you’re sure to feel right at home. The crown jewel is without a doubt, the modern open plan kitchen, meals, and family area with two additional separate living spaces. This is a home built for modern open plan living that is innovative living at its best.
Display Homes & 3D Tours for Lloyd by Australian Building Co. (ABC Homes)
Loading...
Lloyd 29 By Australian Building Co. (ABC Homes)
Newhaven Estate - Tarneit
Lloyd 29 By Australian Building Co. (ABC Homes)
Peppercorn Hill Estate - Donnybrook
Lloyd 25 | Vista Façade By Australian Building Co. (ABC Homes)
Alluvium Estate - Winter Valley
Lloyd 29 | Polo Façade By Australian Building Co. (ABC Homes)
Berwick Waters Estate - Clyde North
Lloyd 29 | Cove Façade By Australian Building Co. (ABC Homes)
Kaduna Park Estate - Officer South
Lloyd 25 | Airlie Façade By Australian Building Co. (ABC Homes)
Stockland Banksia - Armstrong Creek
Lloyd 23MR | Yarragul Façade By Australian Building Co. (ABC Homes)
Stockland Evergreen - Clyde
Lloyd 25 | Airlie Façade By Australian Building Co. (ABC Homes)
Flagstone Estate - Flagstone
Lloyd 25 | Airlie Façade By Australian Building Co. (ABC Homes)
Stockland Cloverton - Kalkallo
Lloyd 23 By Australian Building Co. (ABC Homes)
St Yves Estate - Roseworthy
Lloyd 26S | Vista Façade By Australian Building Co. (ABC Homes)
Vista Estate - Seaford Heights
Lloyd 29 | Yarragul Façade By Australian Building Co. (ABC Homes)
Lucas Ballarat - Lucas
Lloyd 29MR | Yarragul Façade By Australian Building Co. (ABC Homes)
Dawn Estate - Walloon
Lloyd 29MR | Airlie Façade By Australian Building Co. (ABC Homes)
Woodlea Estate - Aintree
Lloyd 29MR | Polo Façade By Australian Building Co. (ABC Homes)
Seven Creeks Estate - Kialla
Lloyd 23 | Airlie Façade By Australian Building Co. (ABC Homes)
Seascape Encounter Bay Estate - Waitpinga
4