Lot 515 Silverwood Estate by Simonds Homes - Traralgon

A 5-bedroom house design, offers luxury and space with well-zoned bedrooms.

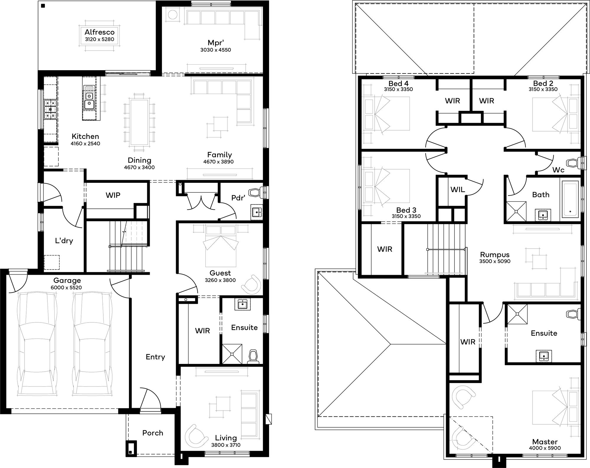
Suited for 14m+ blocks, the Armidale 38 includes 5 bedrooms, 3 bathrooms, and a 2-car garage over two floors. The ground floor features an open-plan living space with a large kitchen and walk-in pantry. A guest bedroom with an ensuite, walk-in wardrobe, and a spare lounge cater to hosting needs. Upstairs houses three bedrooms with walk-in closets, a rumpus room, and a resort-style master suite, providing a luxurious retreat for every family member.
Simonds Homes
Lot 515 Silverwood Estate, Traralgon VIC 3844 Available
Bed  5 Bath  3 Car  2
Land Size: 647.00m²
Floor Area: 37.94sq
Price: $869,297

Floor-plan for Lot 515: by Simonds Homes


Location & Map of Traralgon

Loading...

Nearby Display Homes from Simonds Homes (Home Builder)


Visit Display Villages near Traralgon VIC 3844


More House and Land Packages by Simonds Homes (Home Builder)

Bed  4 Bath  2 Car  2
Land Size: 512.00m²
Frontage: 16m
Depth: 32m
Floor Area: 26.55sq
Seamless indoor-outdoor flow and a zoned layout make the Jansen perfect for entertaining.
Effortless Entertaining, Easy Living
The Jansen is a home that welcomes you from the moment you step inside. At its heart is a well-connected open-plan living zone that flows seamlessly to the alfresco - ideal for entertaining family and friends. When it?s time to unwind, the master suite at the front of the home offers a private escape, while the secondary bedrooms are thoughtfully tucked away in their own wing. Designed with balance and lifestyle in mind, the Jansen truly has it all.

Simonds Fixed Price Home & Land Package

Simonds have been Building Homes Since 1949, and every year, help thousands of Australian's realise their dream of owning a brand new home.

In choosing a builder, we believe that each buyer is looking for the best quality, the best service, and the best price.
Whilst it is impossible to have all three, Simonds have built our Fixed Price reputation on great quality and service, for what is often the largest investment in our clients lives.
As a National Builder with large buying power, our homes are very competitively priced, and most importantly, fantastic value for money.

With the transparency of an itemised quotation, a refundable initial deposit, and a Fixed Price contract at the end of the journey, why not enquire with one of the Simonds Sales team today!

This Attractive House and Land Package Includes:

Fixed price Site Costs
Developer & council requirements
Photovoltaic panels with inverter
Feature front entry door
Colorbond Sectional garage door & remote controls
Floor coverings to entire house
20mm Stone benchtops to kitchen
Quality stainless steel cooktop & oven
Towel Rails & Toilet Roll Holders
800mm Laundry Cabinet
Ducted Heating
Plus much more!


All Fixed Price Home and Land packages are subject to Developer and Council approval and is based on Simonds standard floor plan with preferred siting (without alterations). Package Price does not include stamp duty, government, legal or bank charges. Community Infrastructure Levy and Asset Protection Permit are not included in pricing and is to be arranged by the client directly with the Developer (if applicable). Any alterations may incur additional charges. Confirm land price and availability prior to purchase. Simonds reserves the right to withdraw or amend pricing, inclusions and promotion at any time without notice. Please refer to the terms and conditions at www.simonds.com.au/terms-and-conditions. This package applies to VIC - Aspirations range only. Please speak with your sales consultant for further details. Pricing is current at 30/01/2026.

Facade & Internal images are taken from a similar Simonds display home and are for illustration purposes only. Please talk to your sales consultant for more details
Price: $835,736

Land Price Trend in Traralgon VIC 3844

  • In Oct - Dec 24, the median price for vacant land in Traralgon VIC 3844 was $294,000. *
  • From Oct - Dec 17 to Oct - Dec 24, the median price for vacant land in Traralgon VIC 3844 has increased 100%. *
  • From 2008 to 2024, the median price for vacant land in Traralgon VIC 3844 has increased 178.1%. *
* Price data comes from Valuer-General Victoria on 05/06/25

Vacancy Rate in Traralgon VIC 3844

View full vacancy rate history in Traralgon VIC 3844 via SQM Research.


Schools in Traralgon VIC 3844

There are 9 schools registered in on ACARA 2024

Lot 515 Silverwood Estate by Simonds Homes
Silverwood Estate, Traralgon VIC 3844
House & Land: 5 Bed | 3 Bath | 2 Car @ $869,297