Verve Estate - Clyde North Logo_0

Lot 634: Empire 29 @ Verve Estate - Clyde North VIC 3978

Inclusions
7 Star energy rating
Exposed aggregate driveway
Traditional faƧade included
Quality floor coverings throughout
Low E double glazed windows and
sliding doors
3.5kW solar PV system
Tiled kitchen splashback
Westinghouse stainless steel
appliances
Choice of matt black or chrome
tapware
Brick infills over windows
25 year structural guarantee
12 month service warranty
Fibre optic pack
Recycled water connection
Rainwater Tank 3,000L
2550mm Ceiling height
Category two roof tiles

Contact
Ben May
New Homes Consultant
0437 774 666
bmay@homebuyers.com.au
Homebuyers Centre VIC
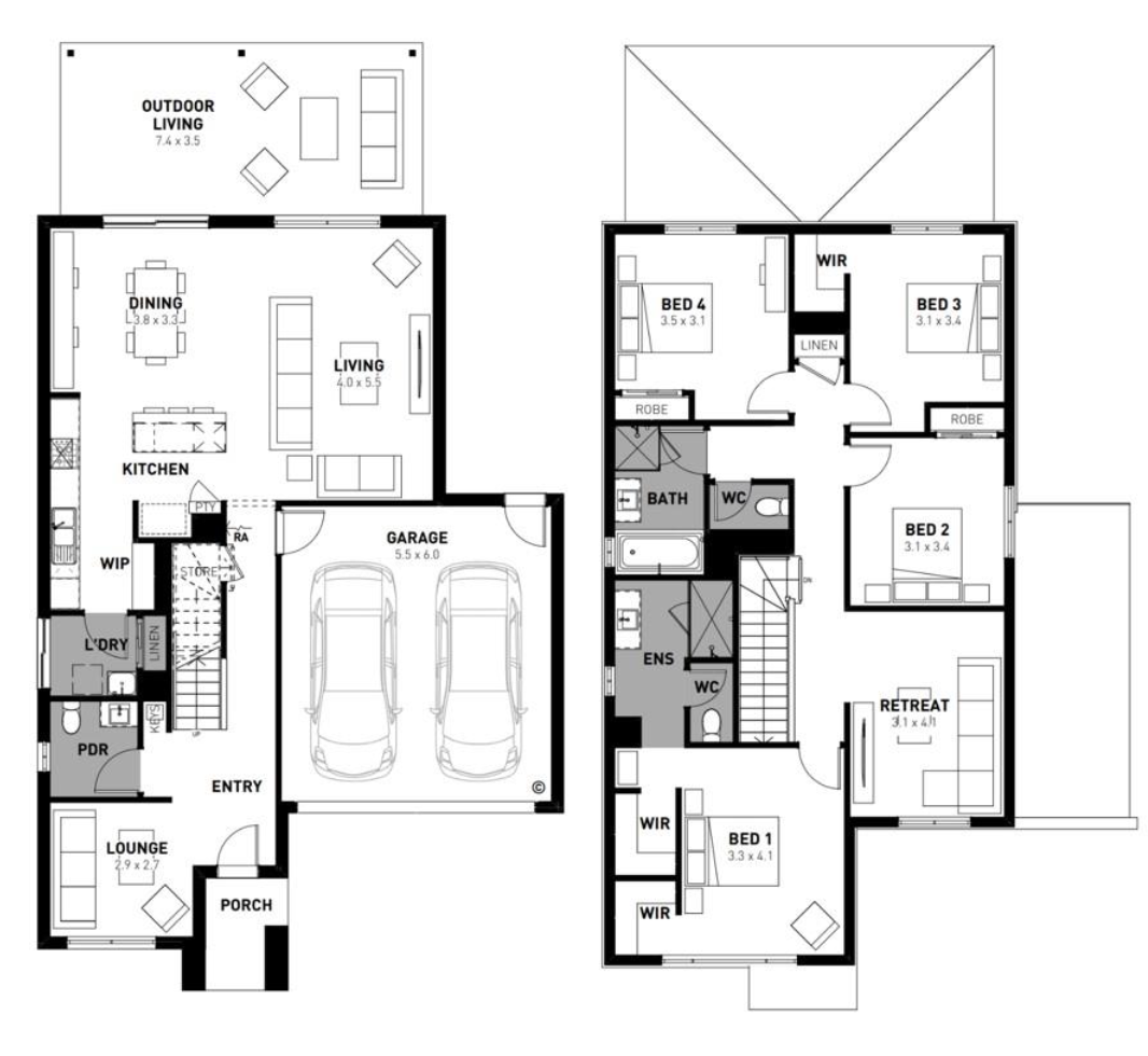
Stage 6: Lot 634 Calamint Avenue: Empire 29 Available
Bed  4 Bath  2.5 Car  2
Home Design: Empire 29
Land Size: 350.00m²
Orientation: West
Est. Land Registration: Oct 2026
Price: From $859,100

Floor-plan for Lot 634: Empire 29


Development Info of Verve Estate - Clyde North

Total new homes 1,100
Area size 70.00 hectares
Growth Region Melbourne South East Growth Corridor
City council Casey City Council
Developer Goldfields Group
Project marketer KaiKura Land Sales
Creative agency Hoyne
Other names Grossi Farm
Distance to Melbourne CBD - 48 km south-east

Location & Map for Verve Estate - Clyde North

Loading...

Visit Display Homes near Verve Estate - Clyde North


More House and Land Packages in Verve Estate - Clyde North

Bed  4 Bath  2 Car  2
Land Size: 312.00m²
Floor Area: 184.5m²
Est. Land Registration: Est Q4 2026
INCLUSIONS:
ā–Ŗ Stainless Steel 600mm Underbench Oven
ā–Ŗ Stainless Steel 600mm Gas Hotplates
ā–Ŗ Stainless Steel 600mm Canopy Rangehood
ā–Ŗ Ducted Heating to 6 Points
ā–Ŗ Instantaneous Hot-Water Unit
ā–Ŗ Grey-Water connection to Toilets & Laundry
where available
ā–Ŗ Dishwasher & Microwave Space
ā–Ŗ Melamine Kitchen and Vanities
ā–Ŗ 20mm Stone Benchtops
ā–Ŗ Overhead Cupboards
ā–Ŗ Walk in Pantry with Melamine shelving
ā–Ŗ Square Mixer taps throughout
ā–Ŗ White Bathroom and Ensuite products
ā–Ŗ 900 x 900 Tiled Shower to Ens & Bathroom
ā–Ŗ Modern Square Vanity Basins
ā–Ŗ Mirrors in Bathroom and Ensuite
ā–Ŗ Clear and Pivot Shower screens
ā–Ŗ Exhaust fans to Bathroom and Ensuite
ā–Ŗ Walk in Robes to Master Bedroom
ā–Ŗ Built in Robes to Balance of Bedrooms
ā–Ŗ Spacious Walk in Linen cupboard
ā–Ŗ Corinthian Front Door PMAD 104 Clear Glass
with Aluminum sidelight
ā–Ŗ Flush Internal doors
ā–Ŗ Chrome Door Furniture
ā–Ŗ Painted Skirts and Architrave
ā–Ŗ 10 x LED Downlights Included, Bayonet
socket fittings to each room (globes not
supplied)
ā–Ŗ Alfresco with plain concrete flooring
ā–Ŗ Floor Tiles to Entry, Hallways, Kitchen, Family,
Living and Wet Areas
ā–Ŗ Carpet from Builders Range
ā–Ŗ Render to Garage Front
ā–Ŗ Locking aluminum windows throughout
ā–Ŗ Tiled Roof
ā–Ŗ Colorbond Fascia and gutter
ā–Ŗ All Plans and Specifications
ā–Ŗ Soil Report
ā–Ŗ Engineer Class M Slab, engineered edge
beams at 200mm
ā–Ŗ Fall Allowance 300mm
ā–Ŗ Gas and Electrical underground works only
ā–Ŗ Sewer up to 45 meters
ā–Ŗ Storm water up to 60 meters
ā–Ŗ Concrete pump and temporary fencing as
required
ā–Ŗ Circuit Breaker and Smoke Detector
ā–Ŗ Garden Taps Front and Rear
ā–Ŗ Termite Protection
ā–Ŗ Solid Pine Frame
ā–Ŗ Insulation as per 7 star energy rating report
ā–Ŗ 3.5kw Solar Power
ā–Ŗ Ten Year Structural Guarantee
ā–Ŗ Double garage with automated front Panel Lift
Door

BATT PACK INCLUDED
TICKLED-PINK PACK INCLUDED
KNOCKOUT PACK INCLUDED

NOT INCLUDED
Display Home Lighting, Downlights, Landscaping,
Concrete Driveway, Alarm, Cooling, Security Doors,
Display Furniture and Office Fittings
Price: $641,100

More House and Land Packages by Homebuyers Centre VIC (Home Builder)

Bed  4 Bath  2 Car  2
Land Size: 395.00m²
Frontage: 11.9m
Depth: 20.8m
Floor Area: 213.68m²
Relax in the spacious open plan living area featuring an entertainers kitchen with island bench or the dedicated dining space and outdoor living zone. Escape to the master bedroom with its walk-in robe and oversized ensuite, or head to the rear of the home to discover three not-so-minor bedrooms that each feature built-in robes.
Your new home will come standard with quality inclusions, industry leading guarantees/warranties and brand names that you can trust:
Site costs allowance
Facade included
7 Star energy rating
Exposed aggregate driveway
Brick infills over windows
Quality floor coverings throughout
Low E double glazed windows and sliding doors
3.5kW solar PV system
Westinghouse stainless steel appliances
Choice of matt black or chrome tapware
12 month maintenance period
25 year structural guarantee

Act quickly! This package won't be around for long. For more info or to book an appointment, call or click 'Get in Touch' today!

**********************************************************************************
DISCLAIMER*Lower end of price range displayed is subject to your eligibility for the Victorian First Home Owner Grant (FHOG). Upper end of price range displayed does not take into account any government grants.

The First Home Owner Grant and Home Buyer Schemes Act generally requires applicants for the Grant to be an Australian citizen or permanent resident of at least 18 years of age. Applicants and their partner or spouse must not have previously owned a residential property, or received a first home owner's grant, in any state or territory in Australia. Applicants must occupy the home for a continuous period of at least 12 months, commencing within 12 months of settlement or completion of construction. Contract price for the home must be $750,000 or less. For further information on Grant eligibility, please click here. Information on this page is accurate as at August 2024.

All plans are protected by copyright and are owned by ABN Group (Vic) Pty Ltd. The building practitioner is ABN Group (Vic) Pty Ltd trading as Homebuyers Centre, registration number CDB-U 49215. Images are for illustrative purposes only and may depict items not supplied by Homebuyers Centre. Homebuyers Centre reserves the right to change home design measurements and design options without notice. For more information on pricing, facades or specifications, please contact your New Homes Consultant. All information contained within this document is accurate at time of printing (August 2023). #Inclusions listed in this document are not exhaustive. For a complete list of inclusions, please contact your New Homes Consultant and refer to your HIA New Homes Contract. ^Homebuyers Centre is responsible for providing the connection point only. It is the owner's responsibility to arrange for connection services (gas, NBN, water, etc.).
Ā© The copyright in this house design (including the floorplan, faƧade, rooflines and elevations) is owned by Homebuyers CentreĀ®. Homebuyers Centre specifically prohibits any reproduction, communication to the public, publication, or any other use of this house design or a substantial part of it for any purpose other than for the building of houses by Homebuyers Centre without its express written consent.Terms and conditions apply. The offer of the ā€˜Home Starter Range’ is limited to customers who sign a Preliminary Works Contract (PWC), between 8 October, 2025 to 31 December 2025. From price is based on the Homebuyers Centre Essence 17 floorplan with Hudson facade in Metro Melbourne. Images are for illustrative purposes only and may depict items not included in the price. This offer cannot be modified, substituted or redeemed for cash. Homebuyers Centre reserves the right to update, change or cease this offer. Not to be used in conjunction with any other offer (discounts, incentives or promotions). See vic.homebuyers.com.au for full terms and conditions. The building practitioner is ABN Group (Vic) Pty Ltd trading as Homebuyers Centre CDB-U49215.
Bed  4 Bath  2 Car  2
Land Size: 420.00m²
Floor Area: 176.52m²
The Harper captures the essence of contemporary design and space. The master bedroom, complete with walk-in robe and ensuite bathroom is toward the front, with the minor bedrooms, each with a built-in robe, toward the rear of the home.
Your new home will come standard with quality inclusions, industry leading guarantees/warranties and brand names that you can trust:
Facade included
Fixed site costs
7 Star energy rating
Exposed aggregate driveway
Brick infills over windows
Quality floor coverings throughout
Low E double glazed windows and sliding doors
3.5kW solar PV system
Westinghouse stainless steel appliances
Choice of matt black or chrome tapware
12 month maintenance period
25 year structural guarantee

Act quickly! This package won't be around for long. For more info or to book an appointment, call or click 'Get in Touch' today!

**********************************************************************************
DISCLAIMER*Lower end of price range displayed is subject to your eligibility for the Victorian First Home Owner Grant (FHOG). Upper end of price range displayed does not take into account any government grants.

The First Home Owner Grant and Home Buyer Schemes Act generally requires applicants for the Grant to be an Australian citizen or permanent resident of at least 18 years of age. Applicants and their partner or spouse must not have previously owned a residential property, or received a first home owner's grant, in any state or territory in Australia. Applicants must occupy the home for a continuous period of at least 12 months, commencing within 12 months of settlement or completion of construction. Contract price for the home must be $750,000 or less. For further information on Grant eligibility, please click here. Information on this page is accurate as at August 2024.

All plans are protected by copyright and are owned by ABN Group (Vic) Pty Ltd. The building practitioner is ABN Group (Vic) Pty Ltd trading as Homebuyers Centre, registration number CDB-U 49215. Images are for illustrative purposes only and may depict items not supplied by Homebuyers Centre. Homebuyers Centre reserves the right to change home design measurements and design options without notice. For more information on pricing, facades or specifications, please contact your New Homes Consultant. All information contained within this document is accurate at time of printing (August 2023). #Inclusions listed in this document are not exhaustive. For a complete list of inclusions, please contact your New Homes Consultant and refer to your HIA New Homes Contract. ^Homebuyers Centre is responsible for providing the connection point only. It is the owner's responsibility to arrange for connection services (gas, NBN, water, etc.).
Ā© The copyright in this house design (including the floorplan, faƧade, rooflines and elevations) is owned by Homebuyers CentreĀ®. Homebuyers Centre specifically prohibits any reproduction, communication to the public, publication, or any other use of this house design or a substantial part of it for any purpose other than for the building of houses by Homebuyers Centre without its express written consent.Terms and conditions apply. The offer of the ā€˜Home Starter Range’ is limited to customers who sign a Preliminary Works Contract (PWC), between 13 January, 2026 to 31 March 2026. From price is based on the Homebuyers Centre Essence 17 floorplan with Hudson facade in Metro Melbourne. Images are for illustrative purposes only and may depict items not included in the price. This offer cannot be modified, substituted or redeemed for cash. Homebuyers Centre reserves the right to update, change or cease this offer. Not to be used in conjunction with any other offer (discounts, incentives or promotions). See vic.homebuyers.com.au for full terms and conditions. The building practitioner is ABN Group (Vic) Pty Ltd trading as Homebuyers Centre CDB-U49215.
Land Size: 339.00m²
Floor Area: 18sq
Available in four- or three-bedroom variations, the single storey Levi floorplan is cleverly designed to maximise all the space on your block.

The main bedroom is positioned to the front of the home and features a sizeable ensuite and walk in robe, with three minor bedrooms and a centralised bathroom positioned further down the passage.

At the rear of the home, you’ll find an entertainers kitchen complete with walk in pantry and a large kitchen bench. The light filled dining and living areas look onto the backyard with an e-zone cleverly tucked away in the back corner.
Your new home will come standard with quality inclusions, industry leading guarantees/warranties and brand names that you can trust:
Facade included
Fixed site costs
7 Star energy rating
Exposed aggregate driveway
Brick infills over windows
Quality floor coverings throughout
Low E double glazed windows and sliding doors
3.5kW solar PV system
Westinghouse stainless steel appliances
Choice of matt black or chrome tapware
12 month maintenance period
25 year structural guarantee

Act quickly! This package won't be around for long. For more info or to book an appointment, call or click 'Get in Touch' today!

**********************************************************************************
DISCLAIMER*All plans are protected by copyright and are owned by ABN Group (Vic) Pty Ltd. The building practitioner is ABN Group (Vic) Pty Ltd trading as Homebuyers Centre, registration number CDB-U 49215. Images are for illustrative purposes only and may depict items not supplied by Homebuyers Centre. Homebuyers Centre reserves the right to change home design measurements and design options without notice. For more information on pricing, facades or specifications, please contact your New Homes Consultant. All information contained within this document is accurate at time of printing (August 2023). #Inclusions listed in this document are not exhaustive. For a complete list of inclusions, please contact your New Homes Consultant and refer to your HIA New Homes Contract. ^Homebuyers Centre is responsible for providing the connection point only. It is the owner's responsibility to arrange for connection services (gas, NBN, water, etc.).
Price: $647,300

Land Price Trend in Clyde North VIC 3978

  • In Oct - Dec 24, the median price for vacant land in Clyde North VIC 3978 was $433,000. *
  • From Oct - Dec 17 to Oct - Dec 24, the median price for vacant land in Clyde North VIC 3978 has increased 27.73%. *
  • From 2008 to 2024, the median price for vacant land in Clyde North VIC 3978 has increased 226.92%. *
* Price data comes from Valuer-General Victoria on 05/06/25

Vacancy Rate in Clyde North VIC 3978

View full vacancy rate history in Clyde North VIC 3978 via SQM Research.


Schools near Verve Estate - Clyde North

Here are 6 schools near Verve Estate - Clyde North:

Lot 634: Empire 29 by Homebuyers Centre VIC
Verve Estate - Clyde North