
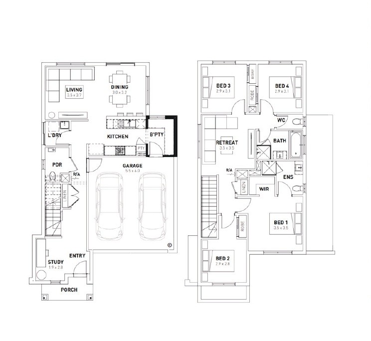
Lot 2706: Onyx Boost 21 @ Kinbrook - Donnybrook VIC 3064
Inclusions:
# Fixed site costs
# Exposed aggregate driveway
# Urban facade included
# Quality floor coverings throughout
# 2550mm high ceilings to ground floor
# 20mm crystalline silica-free benchtops
# Westinghouse 900mm wide stainless-steel oven, cooktop and rangehood
# 400mm X 600mm niche to showers
# Up to thirty 8w LED downlights to entry, kitchen, dining, living and bedrooms
# Five additional double power points, additional
TV point and data point
# Roller blockout blinds (excluding wet areas and entry door sidelight)
# 25 year structural guarantee & 12 month service

4
2
2Development Info of Kinbrook - Donnybrook
This information is estimated by the OpenLot research team. Let us know here to provide up-to-date information about this development.
| Total new homes | 1,100 |
| Area size | 62.00 hectares |
| Growth Region | Melbourne North Growth Corridor |
| City council | Whittlesea City Council |
| Developer | Moremac Property Group |
| Project marketer | Australian Land Corporation |
| Other names | Grenville Collection, The Glide, Lavender Rain |
| Distance to | Melbourne Airport - 17 km north-east Melbourne CBD - 30 km north |
Location & Map for Kinbrook - Donnybrook
Nearby Display Homes from Homebuyers Centre (Home Builder)


4
2.5
2
2Visit Display Homes near Kinbrook - Donnybrook
More House and Land Packages in Kinbrook - Donnybrook
More House and Land Packages by Homebuyers Centre (Home Builder)
Land Price Trend in Donnybrook VIC 3064
- In Oct - Dec 24, the median price for vacant land in Donnybrook VIC 3064 was $378,000. *
- From Oct - Dec 17 to Oct - Dec 24, the median price for vacant land in Donnybrook VIC 3064 has increased 98.95%. *
- From 2014 to 2024, the median price for vacant land in Donnybrook VIC 3064 has increased 86.26%. *
Vacancy Rate in Donnybrook VIC 3064
View full vacancy rate history in Donnybrook VIC 3064 via SQM Research.
Schools near Kinbrook - Donnybrook
Here are 6 schools near Kinbrook - Donnybrook:
Prep-6 Government Primary School
Prep-6 Government Primary School
Prep-12 Independent Combined School - School Head Campus
Prep-6 Catholic Primary School
Prep-6 Government Primary School
Prep-12 Government Combined School
Suburb Planning Review in Donnybrook VIC 3064
Donnybrook is located in the Shire of Mitchell, a semi-rural location to the north of Melbourneās outer suburbs of the Urban Growth Boundary and logical expansion of the former Donnybrook township. Donnybrook growth area is 1,026ha and forms part of the new 1,786ha suburb area (Woodstock and Donnybrook) that is located on either side of Cameron Street.

The new suburb is bounded by a possible future high-speed rail investigation area and Outer Metropolitan Ring Reservation (OMR / E6) for future road and rail transport links.
The Donnybrook-Woodstock Precinct Structure Plan (PSP) was prepared to guide the redevelopment of the released land for a mix of residential neighbourhoods linked by a variety of local town centres, schools and other community facilities. Protection of natural assets along the creek corridor and conservation area are provided to protect the Growling Grass Frog habitat from the planned suburb.

The Donnybrook-Woodstock PSP was prepared by Victorian Planning Authority (VPA) in consultation with the Whittlesea City Council and was approved by the Minister for Planning in November 2017. The decision was officially gazetted on 3 November 2017 under Amendment GC28 of the Whittlesea Planning Scheme.
The Vision of Donnybrook
āDevelopment will have a strong emphasis on the retention of natural features and high quality landscaping in an urban environment supported by strong connections to transport and community facilities. Development of the precinct will create a diverse mix of residential neighbourhoods linked by a variety of local town centres, schools and other community facilities.
The distribution of local centres which serve a variety of roles and functions will promote self-sufficiency for residents of the precinct in meeting daily retail and convenience shopping needs. Residential and business development will capitalise on the precinctās proximity to the existing Donnybrook train station, as well as the future Lockerbie Principal Town Centre and potential future Lockerbie Train Station. The development of the existing Donnybrook Cheese Farm into an agricultural, historical and cultural learning hub will provide new residents with connections to the history of the areaā.

Benefits of Donnybrook
The Structure Plan also supports new schools, local community hubs, local centres to provide employment and services to the new suburb. The amendments provide a new residential community, protection of natural features, parks, and sports and recreation areas. The existing zoning will be amended to provide for Rural Conservation and Urban Growth Zones, providing a series of greenfield sites in proximity to natural water corridors and reserves.
Transportation in Donnybrook
Donnybrook is well connected to public passenger transport, with a future train station to be in Lockerbie and an existing train station located in Donnybrook train station outside the new suburb boundary. The passenger train service connects Melbourne to Sydney and is being considered for a high speed rail project.
The suburb will include a network of shared paths linking the local parks and a new road network. Donnybrook Road and a new future state arterial road will provide access to the Hume Freeway, providing a direct connection to Melbourne CBD or northern Victoria.
Donnybrook Suburb Summary
References
City of Whittlesea - Donnybrook
Victoria Planning Authority ā Planning Schemes
Victoria Planning Authority ā Donnybrook ā Woodstock PSP
Popular Estates near Kinbrook - Donnybrook
Latest New Home Articles for You
28/Oct/2025 | OpenLot.com.au
š„ New Neighbourhoods Episode 9: Melbourne South East
The ninth and final episode of New Neighbourhoods by OpenLot.com.au takes...
27/Oct/2025 | OpenLot.com.au
2025 National ABS Housing Data Report by OpenLot.com.au.
According to the latest ABS Housing Data Report 2025 by OpenLot.com.au, c...
20/Oct/2025 | OpenLot.com.au
š„ New Neighbourhoods Episode 8: Gippsland
The eighth episode of New Neighbourhoods by OpenLot.com.au heads east to ...
13/Oct/2025 | OpenLot.com.au
š„ New Neighbourhoods Episode 7: Melbourne North West
The seventh episode of New Neighbourhoods by OpenLot.com.au heads to Sunb...
07/Oct/2025 | OpenLot.com.au
š” Suburb Profile: Denman Prospect
Denman Prospect is a suburb of approximately 107 hectares within the Aust...
07/Oct/2025 | OpenLot.com.au
š” Suburb Profile: Googong
Googong is a suburb of approximately 780 hectares within the Queanbeyan-P...
07/Oct/2025 | OpenLot.com.au
š” Suburb Profile: Central Coast
Central Coast is a regional area, located in New South Wales on the coast...
07/Oct/2025 | OpenLot.com.au
š” Suburb Profile: Toowoomba
Toowoomba is a regional city, located on the crest of the Great Dividing ...
07/Oct/2025 | OpenLot.com.au
š” Suburb Profile: Cairns (Far North Queensland Region)
Cairns is a regional city, located along the north-eastern coastline betw...





















