Lot Boneo: Boneo @ Stockland Evergreen - Clyde VIC 3978
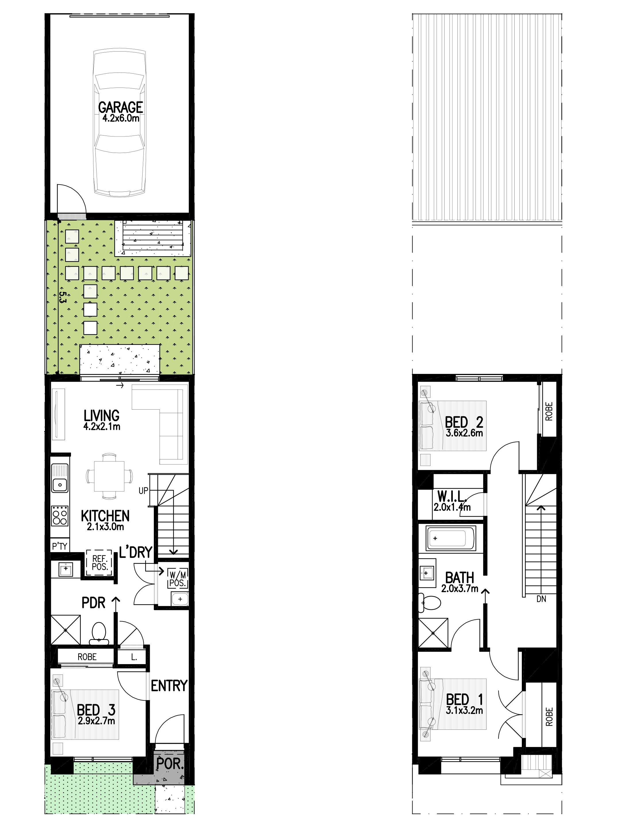
This cosy and intelligently designed three-bedroom townhome is perfectly suited for family life or the savvy investor. The Boneo Mid features beautiful, wide windows that flood the internal spaces with natural light, enhancing the premium feel. On the ground floor, a clever hallway guides you into a spacious open-plan living and kitchen area that flows seamlessly into your private backyard. Upstairs, you'll find the main sleeping quarters, including two generously sized bedrooms and a well-appointed main bathroom, creating a perfect sanctuary for your family to unwind and thrive.
Builder Inclusions:
Fixed price - no surprises
Landscaping to front yard
Timber look flooring to living areas
20mm stone composite benches to kitchen
Modern kitchen cooktop, oven and rangehood
Split system to main living
About Stockland Evergreen - Turn your dreams into reality in Clyde
Evergreen is a vibrant Stockland community in the thriving south-east suburb of Clyde in Victoria. Living at Evergreen, you can have it all – now and into the future. Everything you need for a lifestyle like no other is right here. With great schools, shops and community facilities nearby, you can build the life you want. And that’s just the beginning. Evergreen is an evolving community, set to welcome plenty of new amenities to make everyday life even more convenient and relaxed.
Create your dream home in a community designed to nurture growth and wellbeing. Evergreen by name and evergreen by nature. Experience the extraordinary at Evergreen.
About the Developer - The Stockland Story
For more than 70 years, we have been creating and curating communities with people at the heart of the places we create.
As one of Australia’s largest diversified property groups, we are building on our legacy, helping more Australians achieve the dream of home ownership and creating places and spaces full of energy, soul and life - from residential and land lease communities, through to retail town centres, workplaces and logistics assets.
Our purpose - a better way to live - is central to everything we do.
--
*Price correct at time of publication and subject to change. Price is based on the Builder’s standard plans and specifications, standard inclusions and preferred building surveyor. Price does not include stamp duty, registration fees, additional costs that may be incurred under the Building Contract (eg due to delays in titling the lot) or any other incidental fees. Applies to selected House & Land Package only. Subject to availability. Stockland only responsible for sale of land. Subject to availability. All floor plans are indicative only. All areas are approximate. Cars, furniture, decorative items, plants and the like are shown for indicative purposes only and are not included in the sale. The contract for sale should be reviewed in relation to dimensions, areas, sale inclusions and specifications. Changes to the indicative floor plan may occur in accordance with the terms of the contract for sale. Information and images relating to landscaping are indicative only and may show mature plantings which may not be mature at settlement. The content of this listing is based on the intention of, and information available to, Stockland as at the time of publication and may change due to future circumstances. The images on this web page are for illustrative purposes only and may depict features (such as landscaping, fencing and façade elements), items or inclusions which are excluded from the price. For more information, speak to a Stockland Sales Professional.
3
2
1
Development Info of Stockland Evergreen - Clyde
This information is estimated by the OpenLot research team. Let us know here to provide up-to-date information about this development.
| Total new homes | 1,400 |
| Area size | 130.70 hectares |
| Growth Region | Melbourne South East Growth Corridor |
| City council | Casey City Council |
| Developer | Stockland |
| Distance to | Melbourne CBD - 50 km south-east |
Location & Map for Stockland Evergreen - Clyde
More Townhouses in Stockland Evergreen - Clyde
More House and Land Packages in Stockland Evergreen - Clyde
More Townhouses by TownLiving by Metricon (Home Builder)
Land Price Trend in Clyde VIC 3978
- In Oct - Dec 24, the median price for vacant land in Clyde VIC 3978 was $365,500. *
- From Oct - Dec 17 to Oct - Dec 24, the median price for vacant land in Clyde VIC 3978 has increased 17.9%. *
- From 2010 to 2024, the median price for vacant land in Clyde VIC 3978 has increased 66.98%. *
Schools near Stockland Evergreen - Clyde
Here are 6 schools near Stockland Evergreen - Clyde:
Prep-4 Independent Primary School
7-9 Government Secondary School
Prep-6 Government Primary School
U, Prep-6 Government Primary School - School Head Campus
Prep-6 Government Primary School
Prep-6 Government Primary School
Suburb Planning Review in Clyde VIC 3978
Clyde is with the City of Casey located 48 kilometres South-East of Melbourne, which contains a rural-residential township that forms part of the Urban Growth Boundary. The Clyde growth area is approximately 1,154 ha, which is located on either side of the Pattersons Road.
The new suburb is bounded by Clyde-Five Ways Road to the west, Pound Road and Bells Road extension to the east, Hardys Road to the north and Ballarto Road to the south.

The Clyde Creek Precinct Structure Plan (PSP) was prepared to guide the future community, visitors and workers within the area. The PSP seeks to provide access to services, recreation, employment, shopping and transport infrastructure necessary to support quality of lifestyle and a mix of affordable housing.
The conservation and enhancement of the significant biodiversity area of the Clyde Creek corridor have been recognised, which integrates the stormwater design and open space. A protected species of the Growling Grass Frog has been provided ponds and foraging areas along the Clyde Creek corridor and cultural heritage sites.
Clyde also has other Precinct Structure Plan areas to the north of the existing township. The Victorian Planning Authority (VPA) has prepared a Clyde North PSP that was approved by Minister for Planning in November 2011 through Amendment C186 to the Casey Planning Scheme.

The Clyde Creek Precinct Structure Plan PSP was prepared by Victorian Planning Authority (VPA) in consultation with the Casey City Council and was approved by the Minister for Planning in November 2014. The decision was officially gazetted in October 2014 under Amendment C186 to the Casey Planning Scheme, then further amended in October 2015.
The Vision of Clyde Creek
“Clyde Creek is planned to be a community where a distinct urban form, characterised by a grid of high quality streets, is complemented by an extensive natural creek environment and park network. The Clyde Major Town Centre, planned immediate to the north of the potential future Clyde railway station, will deliver extensive services and facilities to the surrounding residential area.”
“Clyde Creek will be a place that residents and businesses are proud to call home, a place of significant housing choice, catering for a diversity of people, and a connected community through public transport, road-trail networks and integrated community hubs.”
“Significant biodiversity within the Clyde Creek corridor has been recognised through the conservation and enhancement of the Growing Grass Frog Category 1 habitat area. The prominent landform of the precinct, Clyde Creek, will form the key environmental, recreational and community spine of the future suburb. The topography of the precinct provides for attractive views and vistas.”
“Heritage values - both aboriginal and cultural heritage and post-contact heritage sites - have been identified and incorporated into the future urban structure of Clyde Creek Precinct.”

Benefits of Clyde Creek
The existing zoning will be amended to provide for Urban Growth Zones, that will provide for a future urban structure and future development. The Clyde Creek Precinct Structure Plan provides for a diversity of streetscape, open space, local character and protection of the Clyde Creek Conservation Area that traverses the precinct.
Existing and proposed sports fields and parks are strategically located within the new residential areas. The major and minor town centre areas provide for social, retail and community infrastructure, with the largest located to the south west corner of the Precinct Structure Plan.
The Precinct Structure Plan provides the planning framework to facilitate the new mixed use community, new schools, sports and recreation areas and protect Clyde Creek.
Transportation in Clyde Creek
Clyde Creek will be connected to public passenger transport, with a future train station to be built in proximity to the south west of the Clyde Township and the passenger train service will connect to Melbourne CBD.
The suburb will include a network of shared paths, linking the local parks and a new road network. A road network including a 6 lane (primary arterial) road along Pattersons Road and 4 lane (second arterial) road along Tuckers Road to facilitate vehicle access to the surrounding growth areas and Clyde North. Access to Berwick – Cranbourne Road to the west will provide a direct connection to the Princes Freeway, access to Melbourne CBD or eastern Victoria.

Clyde Creek Suburb Summary
References
Victoria Planning Authority – Planning Schemes
Victoria Planning Authority – Clyde Creek PSP
Popular Estates near Stockland Evergreen - Clyde
Latest New Home Articles for You
27/Jan/2026 | OpenLot.com.au
Display Homes at Stockland Wildflower Estate: A Smart Community in Piara Waters
Welcome to Wildflower, a vibrant new neighbourhood nestled in the heart o...
16/Jan/2026 | OpenLot.com.au
South Australia Top 30 Most Searched Housing Developments (December 2025)
15/Jan/2026 | OpenLot.com.au
Queensland: Top 30 Most Searched Housing Developments (December 2025)
If you’ve been tracking housing demand across Queensland, December 2025 p...
14/Jan/2026 | OpenLot.com.au
Victoria: Top 30 Most Searched Housing Developments (December 2025)
If you’ve been exploring housing opportunities in Victoria, December 2025...
14/Jan/2026 | OpenLot.com.au
Display Homes at Apsley Estate: A Masterplanned Community in Mandogalup
Apsley is a bold, 1,800-lot masterplanned community just 25 minutes south...
13/Jan/2026 | OpenLot.com.au
Western Australia: Top 30 Most Searched Housing Developments (December 2025)
If you’ve been keeping an eye on housing demand across Western Australia,...
12/Jan/2026 | OpenLot.com.au
New South Wales: Top 30 Most Searched Housing Developments (December 2025)
If you’ve been considering making a move in New South Wales, December 202...
07/Jan/2026 | OpenLot.com.au
🏡 Top 30 Most Searched Estates by State - December
06/Jan/2026 | OpenLot.com.au
Display Homes Near Me (WA): Your Complete Guide to Display Villages Across Western Australia
Finding the right display home in Western Australia has never been easier...